1-к, Заозерное Показать на карте
Заозерное
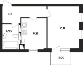
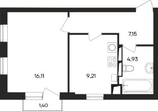
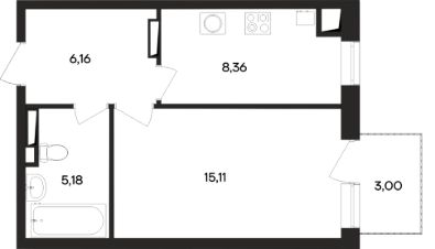
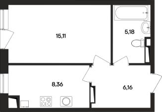
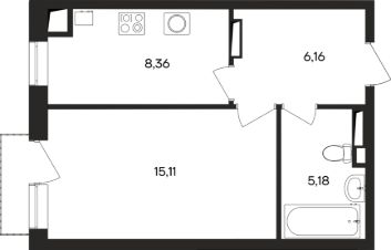
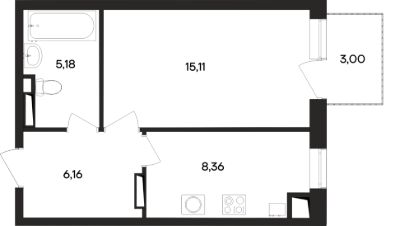
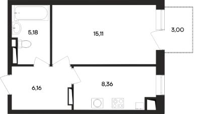
Переуступаю крайние апартаменты-студию на втором этаже корпуса 3 комплекса ''Новая Керкинитида''. Студия с большим балконом и видом во внутренний двор с бассейном. Помещение приобретено по договору долевого участия. Здание вводится в эксплуатацию в мае 2026 года. В апартаментах будет предчистовая отделка - двери, французские окна в пол, радиатор, выводы воды и электричества, стяжка на полу. Находится невысоко - удобно выходить гулять и наблюдать за детьми во дворе, нет зависимости от лифта. Место тихое, тёплое, без суеты. На балконе достаточно пространства, чтобы сушить вещи после купания. Или попить утренний кофе за беседой с подругой. Территория закрытая и охраняемая. До моря 5 минут пешком. С другой стороны от моря большой торговый центр и магазины с доставкой продуктов. Относительно недалеко Евпатория со всеми необходимыми видами лечения и рекреации.О самом комплексе Новая Керкинитида информацию можно посмотреть на сайте.
26 м2
2 / 8 этаж
Кирпич - монолит
- Показать контакты
- Добавить в избранное
26 м2
2 / 8 этаж
Кирпич - монолит
8 500 000
323 317 /м2
Новостройка,
III-2026
III-2026
