1-к, Олимпийская, 2 корп. 4 Показать на карте
Заозерное
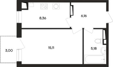
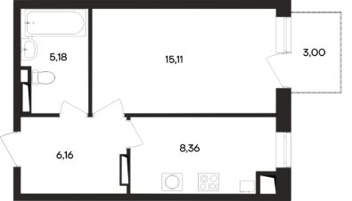
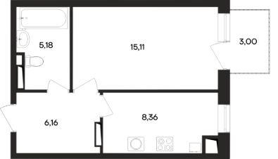
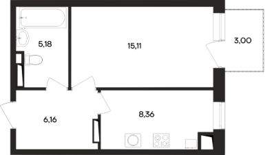
Продаётся 1-комнатная квартира в сданном доме (Корпус 3), срок сдачи: III-кв. 2025, общей площадью 40.4 кв.м., на 2 этаже. Новый жилой комплекс ''Кубики'' от застройщика ''ИнтерСтрой'' расположен по адресу: Россия, Республика Крым, городской округ Евпатория, посёлок городского типа Заозёрное, Олимпийская улица, 2
40 м2
2 / 4 этаж
Монолит
- Показать контакты
- Добавить в избранное
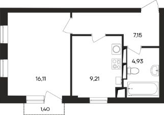
40 м2
2 / 4 этаж
Монолит
12 160 400
301 000 /м2
Новостройка,
дом сдан
дом сдан
