1-к, Олимпийская, 2 корп. 10 Показать на карте
Заозерное
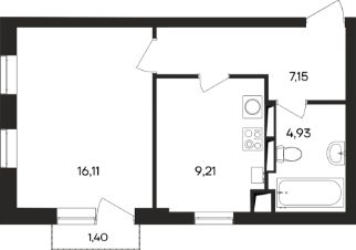
Продаётся 1-комнатная квартира в сданном доме (Корпус 9), срок сдачи: III-кв. 2025, общей площадью 37.81 кв.м., на 4 этаже. Новый жилой комплекс ''Кубики'' от застройщика ''ИнтерСтрой'' расположен по адресу: Россия, Республика Крым, городской округ Евпатория, посёлок городского типа Заозёрное, Олимпийская улица, 2
37 м2
4 / 4 этаж
Монолит
- Показать контакты
- Добавить в избранное
37 м2
4 / 4 этаж
Монолит
11 380 810
301 000 /м2
Новостройка,
дом сдан
дом сдан
