2-к, Наташинская, 2ж Показать на карте
Восход
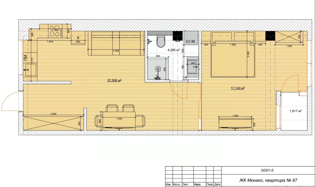
Лучшее предложение Ялты! Видовая квартира с двумя изолированными спальнями и огромной гостиной в Жилом комплексе Бизнес-класса ''Монако'' . Планировка квартиры позволяет сделать две видовые изолированные спальни с видом на море. У спальни1 будет своё собственное панорамное окно и выход на балкон. Вид из окон настолько роскошный, что проснувшись видно море из кровати даже не поднимая головы с подушки, и это самая лучшая опция при жизни у моря ''Проснувшись видеть море, даже не подняв головы с подушки''. Далее в квартире предусмотрена кухня-гостиная с окном и видом на скалистые горы и один из двух самых элитных горных районов Ялты. Из окна гостиной просматривается один из самых элитных ресторанов Ялты и несколько элитных особняков. В квартире предусмотрен просторный совмещённый санузел. Предложение уникально тем что это самая выгодная двухкомнатная квартира всего Жилого комплекса ''Монако''. Из окон апартаменты открывается панорамный вид на бескрайнее Чёрное море, на красивый горный хребет, по которому проходят множество троп, что позволяет резидентам наслаждаться прогулкой по лесу усаженному реликтовыми деревьями, а так же из окон вокруг комплекса расположился сосновый лес.Проживание в данной квартире примечательно тем что сам комплекс является маленьким роскошным отелем своей внутренней пятизвёздочной инфраструктурой. Пребывание в комплексе гарантирует всё необходимое для комфортабельного отдыха даже не выходя за территорию комплекса.Планировка :Спальня 1 17 м2Спальня2 12 м2Балкон 6 м2Санузел 6,5 м2Гардеробная 3 м2Кухня-гостиная 40 м2 Жилой комплекс бизнес-класса ''MONACO'' — это один из самых ярчайших Жилых Комплексов Ялты с пятизвёздочной 5* инфраструктурой! Архитектура здания выполнена в ''Восточно-средиземноморском стиле''. Это здание входит в двадцатку самых красивых новостроек Южного Берега Крыма на 2021 год! Здание строится по 214-ФЗ, ввод в эксплуатацию - декабрь 2022 года.Жилой комплекс включает в себя пятизвёздочную инфраструктуру: • Закрытая охраняемая территория. Шлагбаумы на въезде и выезде• Видео наблюдение по периметру комплекса• Зона ресепшн площадью 270 кв. м. с панорамным видом на море• Детская закрытая комната в зоне ресепшн• Две диванных зоны в зоне ресепшн• Кафетерий с Фреш-баром• Два уровня подземного паркинга с автоматическими подъёмными воротами• Бассейн с видом на море• SPA-зона с баней и зонами загара• Продуктовый магазин на первом этаже здания• Коммерческие и офисные помещения на первом этаже• Зона Барбекю• Три крытые беседки во дворе• Спортивная площадка• Две детские площадки• Lounge-терраса во дворе площадью в 400 кв. м.• Две панорамные Lounge -террасы на крыше здания с ротанговой мебелью• Скоростные современные лифты поднимаются с нижнего уровня паркинга до террас на крыше• Двухуровневые пентхаусы на верхнем этаже• Консьерж-сервис• Собственный ботанический сад из красно книжных деревьев во двореРАСПОЛОЖЕНИЕ Жилой комплекс бизнес-класса ''MONACO'' расположился неподалеку от Никитско
84 м2
2 / 8 этаж
Монолит
- Показать контакты
- Добавить в избранное
84 м2
2 / 8 этаж
Монолит
15 800 000
187 872 /м2
