2-к, Заозерное Показать на карте
Заозерное
Апартаменты у моря Новая Керкинтида с гарантированной доходностью и рассрочкой.Надёжный способ сохранить капитал и получать пассивный доход — курортная недвижимость на первой линии у моря.Апарт-комплекс в экологически чистом районе Евпатории — это инвестиция, которая работает круглый год.Главные преимущества: Первая береговая линия Гарантированный пассивный доход Возможность отдыха в собственных апартаментах Рассрочка до 90% — без переплат Безопасная сделка через эскроу-счётПочему это выгодно: Район с высоким спросом на аренду — Евпатория стабильно входит в топ направлений семейного и оздоровительного туризма. Цены на курортную недвижимость в Крыму растут — вы успеваете купить до следующей волны удорожания. Формат ''отдых плюс доход'' — апартаменты можно сдавать через управляющую компанию или использовать самостоятельно. Полностью готовая среда — магазины, кафе, рестораны, прогулочные зоны, ландшафтный парк, двор без машин, спортивные и детские площадки. Вид на море уже с 4 этажа — ощущение курорта не только в инфраструктуре, но и в каждом окне.Для спокойной старости или будущего семьи:Комплекс подойдёт тем, кто хочет иметь надёжный резерв на случай любых сценариев — для себя, детей, внуков или просто как подушку безопасности.Срок сдачи: IV квартал 2026 года.Покупка без скрытых комиссий, с понятной рассрочкой и прозрачными условиями.
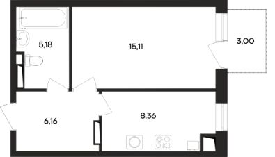
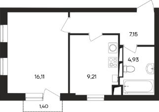
73 м2
8 / 8 этаж
Кирпич - монолит
- Показать контакты
- Добавить в избранное
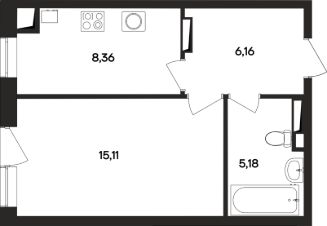
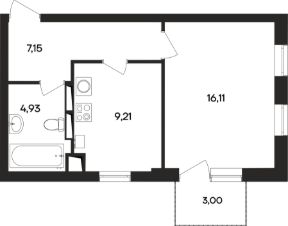
73 м2
8 / 8 этаж
Кирпич - монолит
23 265 846
315 042 /м2
Новостройка,
III-2026
III-2026
