1-к, Заозерное Показать на карте
Заозерное
ЗВОНИТЕ ПРЯМО СЕЙЧАС, ЧТОБЫ ПОЛУЧИТЬ ВЫГОДУ ДО 650 000 руб!Цена указана со скидкой 5% при условии 100% оплаты либо ипотека.АКЦИИ:* Ипотека от 14,7%* ТРАНШЕВАЯ ИПОТЕКА - ПВ от 20%, платежи от 31000 в месяц* Рассрочка 0% до 2028г. ПВ от 20%* Скидка 5%* Бронь на 30 дней* 5 мин до моря пешком, планировки от 30 кв.м.* Высота потолков 3 м , предчистовая и чистовая отделка* Ипотека от СБЕРБАНКА* Доходность инвестиций от 30% годовых. * Сдача в аренду от управляющей компании (доверительное управление) позволяет получать доход от сдачи апартаментов без вашего участия* Безопасная сделка по ФЗ-214/эскроу-счёта''Аллея Дружбы'' — это комплекс апартаментов бизнес-класса в Евпатории, расположенный в 5 минутах прогулки от золотистых пляжей Чёрного моря. Два современных 12-этажных корпуса с панорамными видами на море объединены стильным стилобатом с центральным входом и бутиковыми retail-площадями, а закрытая территория и подземный паркинг обеспечивает приватность и безопасность.АРХИТЕКТУРА И КОНСТРУКТИВНЫЕ ОСОБЕННОСТИ:•12-этажное здание в авторском архитектурном стиле•Высота потолков (от 2,9 м до 3,1 м) •Эксклюзивное решение для первых этажей (высота потолков 3,4м)•Евро планировки с террасами и гардеробными•Панорамное ламинированное остекление •Индивидуальные келлеры•Видовые лоты на море•Высокоскоростные лифты по концепции 5* отеля•Предусмотрено резервное электроснабжение•По проекту предусмотрено место для кондиционера и практическое решение для маскировки коммуникацийЛОКАЦИЯ И ОКРУЖЕНИЕ:•До центра Евпатории - 7 минут на машине •Пляж - всего 5 минут пешком •Рядом с комплексом развитая инфраструктура (рестораны, магазины, кафе, медицинские учреждения, санатории) ГОСТЕПРИИМСТВО И БЕЗУПРЕЧНЫЕ СЕРВИСЫ: •Управляющая компания премиум-класса•Консъерж-сервис 24/7•Доставки продуктов и готовой еды•Зона ресепшн оформлена в стилистике комплекса•Лобби с атмосферным кафе и зонами для чтения•Премиальное решение для мест общего пользования•Интерактивная детская комната для самых маленьких •Пункты выдачи товаров от маркетплейсов•Гостевые парковочные места•Организовано место для хранения колясок ваших малышей•Ремонт на выбор ''Комфорт-формат'' и ''Гранд-формат''БЕЗОПАСНОСТЬ И ТЕХНОЛОГИИ СПОКОЙСТВИЯ:•Закрытая территория, двор без машин•Система контроля доступа (строго по электронным пропускам)•Подземный паркинг с тремя типами машиномест •Выделенные места для велосипедов•Камеры видеонаблюдения •Круглосуточный ресепшн •Телеметрия - автоматический сбор и передача данных с приборов учета апартамента минимизирует ошибки и мошенничество•Система умного апартамента с дистанционным управлением БЛАГОУСТРОЙСТВО ТЕРРИТОРИИ: •Ландшафтный дизайн по проекту (2 334 м² озеленения) •Прогулочные аллеи и зоны отдыха для расслабления и медитации•Коворкинг-зоны с высокоскоростным Wi-Fi для бизнес-переговоров•Детские и спортивные площадки •В апарт-комплексе вас ждут мини-маркет и магазин повседневных товаров
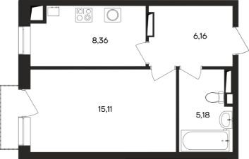
30 м2
2 / 12 этаж
Кирпич - монолит
- Показать контакты
- Добавить в избранное
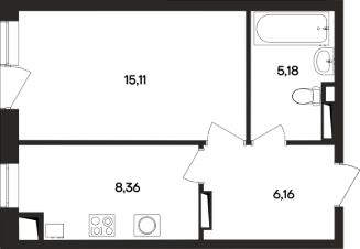
30 м2
2 / 12 этаж
Кирпич - монолит
7 699 150
250 705 /м2
Новостройка,
II-2028
II-2028
