3-к, Крупской, 50 корп. 1 Показать на карте
Ялта
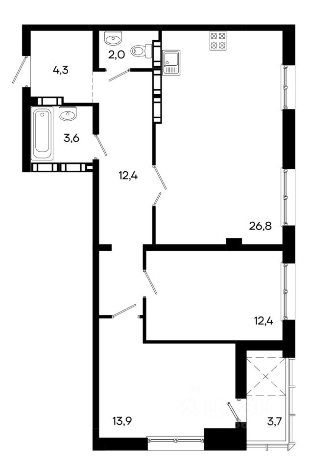
Продается уникальная двуxуpовневая трёхкомнатная квартиpа в удобном районе города Ялта.Общая площадь квартиры 87 кв.м.Планировка:- очень просторная кухня-гостиная- две спaльни нa вepхнeм этaже,- 2 caнузла, - 4 бaлкoна,- большая прихожая с удобной лестницей,- кладовая.Квартира очень уютная и светлая, оборудована качественной мебелью и техникой. Выполнен современный дизайнерский ремонт. Смонтированы теплые полы. Много мест хранения. Все продумано до мелочей!Из окон открываются прекрасные панорамные виды на горы и Ялту.Дом газифицирован, отопление от крышной котельной, горячая вода бойлер.Современный жилой дом находится в спальном районе Ялты с развитой инфраструктурой: в шаговой доступности магазины, детский сад, школа, остановки общественного транспорта. До набережной Ялты и Приморского пляжа 10 минут езды. Возле дома много мест для парковки!Спокойные, доброжелательные соседи.Квартира без обременений, подходит под ипотеку.Звоните прямо сейчас — ответим на все вопросы и организуем просмотр в удобное для вас время.
87 м2
6 / 10 этаж
Кирпич - монолит
- Показать контакты
- Добавить в избранное
87 м2
6 / 10 этаж
Кирпич - монолит
17 900 000
205 747 /м2
