1-к, Батурина Показать на карте
Центральный
Симферополь
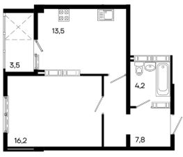
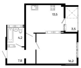
1-комн. квартира от застройщика с предчистовой отделкой в ЖМ ''Город Мира'' на 9 этаже. Общая площадь: 40.44 кв.м., жилая: 9.92 кв.м., площадь просторной кухни-столовой: 17.25 кв.м. Все окна выходят на одну сторону. В квартире один балкон, один совмещенный санузел. Высота потолков 2.7 м. ''Город Мира'' это масштабный жилой комплекс, созданный для тех, кто ценит комфорт, безопасность и гармонию с природой. Здесь продумана каждая деталь от удобной инфраструктуры до эргономичных планировок квартир. ''Город Мира'' победил в номинации ''Лучший экологический проект года в сфере строительства'' по версии премии Сrimеа Urbаn Аwаrds. Способы приобретения недвижимости в ''Городе Мира'':1. Ипотека: семейная от 5,5%, военная, IT-ипотека, базовая ипотечная программа и комбо-ипотека. Одобрение заявки проходит сразу в отделе продаж. 2. Материнский капитал на первый взнос.3. Рассрочка от застройщика - до июня 2028 года! Первоначальный взнос от 30%.4. Военная ипотека. Участники НИС могут приобрести квартиры по спец.цене. Ключевые преимущества комплекса:удачное расположение зеленый район с благоприятным микроклиматомпродуманное зонирование жилые кварталы, зоны отдыха и коммерческие объектыкомфорт-класс высокое качество строительства и современные инженерные решения Почему выбирают ''Город Мира'': Образование и досуг: 2 детских сада (по 260 мест каждый) планируется строительство общеобразовательной школы детские и спортивные площадки в каждом дворе беседки для отдыха, зоны для выгула собак Ритейл и сервис: магазины, аптеки, медицинские центры фитнес-клубы, салоны красоты детские развивающие центры Парковки: гостевые парковки наземные и подземные паркинги Квартиры с продуманным комфортом: просторные планировки с гардеробными и 2-мя санузлами лоджии с остеклением автономное отопление выполнена стяжка пола Благоустройство территории: ландшафтный дизайн с зонами отдыха современные детские площадки стильные холлы с дизайнерской отделкой система видеонаблюдения для безопасности ''Город Мира'' это место, где созданы все условия для комфортной жизни. Выбирайте качество и продуманность в каждой детали! Дом монолитно-блочный, двухподъездный, высотой 9 этажей. Квартира находится во 2-й секции в корпусе 1. На этаже 5 квартир. В подъезде 1 пассажирский и 1 грузовой лифт. Окончание строительства - 1 квартал 2028 года. Оформление сделки по договору долевого участия. #2me9ZS
40 м2
9 / 9 этаж
Монолит
- Показать контакты
- Добавить в избранное
40 м2
9 / 9 этаж
Монолит
7 170 000
177 300 /м2
Новостройка,
II-2028
II-2028
