1-к, Ленина проспект, 60 Показать на карте
Евпатория
''Западный Проспект 82'' — альянс жилых домов бизнес-класса в центре Евпатории, формирующий новое качество жизни у моря.Проект объединяет преимущества современной городской среды и курортного образа жизни: здесь можно работать, развиваться и отдыхать, не теряя привычного уровня комфорта.Комплекс представляет собой архитектурный ансамбль из трёх 23-этажных башен с панорамным остеклением, объединённых стилобатом с деловой, торговой и развлекательной инфраструктурой. Продуманная концепция формирует полноценную экосистему жизни, где все необходимые сценарии — от работы до отдыха — доступны внутри проекта.В основе — идея жизни без компромиссов: сочетание приватности, сервиса и насыщенной городской среды в непосредственной близости к морю.Ключевые преимущества проекта:• уникальное расположение в историческом центре Евпатории — в 10 минутах от побережья Чёрного моря,• современная архитектура с панорамным остеклением и выразительной подсветкой фасадов,• более 20 типов планировок — от функциональных студий до просторных квартир с террасами и видовыми характеристиками,• развитая внутренняя инфраструктура: торгово-развлекательный центр, рестораны, винотека, коворкинг и сервисные пространства,• собственный центр культурного развития для детей с концертным залом,• масштабная спортивная инфраструктура: тренажёрный зал, зоны фитнеса, воркаут-пространства, корт, йога и пилатес,• благоустроенные дворы с ландшафтным дизайном, прогулочными зонами и общественными пространствами,• более 3000 м² приватной территории на эксплуатируемой кровле с зонами для отдыха, спортивной и детской инфраструктурой,• двухуровневый подземный паркинг с детейлинг сервисом и зарядками для электромобилей,• широкий спектр сервисов уровня 5: консьерж-сервис 24/7, рум-сервис, клининг и техническое обслуживание, валет-паркинг, доставка и цифровые сервисы управления,• благоустроенный пляж для резидентов комплекса.''Западный Проспект 82'' создаёт среду, в которой высокий уровень жизни сохраняется независимо от локации — пространство, где каждый день ощущается как баланс работы, отдыха и личного комфорта.Запишитесь на персональную консультацию в Ателье недвижимости ''Западный Проспект 82'', чтобы подобрать квартиру, соответствующую вашему ритму жизни и ожиданиям от комфортного проживания у моря.
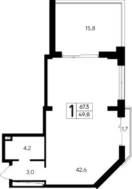
39 м2
7 / 21 этаж
Бетонные блоки
- Показать контакты
- Добавить в избранное
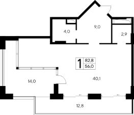
39 м2
7 / 21 этаж
Бетонные блоки
13 616 085
341 341 /м2
Новостройка,
IV-2028
IV-2028
