Евпатория
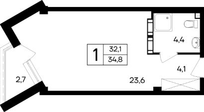
Продаётся 3-комнатная квартира в строящемся доме (Дом 1), срок сдачи: IV-кв. 2028, общей площадью 80.15 кв.м., на 6 этаже. Новый жилой комплекс ''Сезоны'' от застройщика ''ИнтерСтрой'' расположен по адресу: Республика Крым, Евпатория, проспект Победы
80 м2
6 / 9 этаж
Кирпич - монолит
- Показать контакты
- Добавить в избранное
80 м2
6 / 9 этаж
Кирпич - монолит
12 022 500
150 000 /м2
Новостройка,
IV-2028
IV-2028
