1-к, Трубаченко, 21 Показать на карте
Центральный
Симферополь
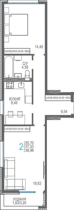
Продаётся 1-комнатная квартира в строящемся доме (Дом 1), срок сдачи: II-кв. 2026, общей площадью 45.2 кв.м., на 12 этаже. ЖК Поэма - это территория вдохновения и творческих идейЗдесь Вы ощутите внутреннюю свободу, простор для новых планов и реализации возможностей, став автором своей собственной поэмы.Объект комфорт-класса великолепно расположен в центре Симферополя на улице Трубаченко. Два монолитно-каркасных дома возводятся в сдержанном, изысканном стиле, сочетая в себе эстетику и надёжность.Большие площади остекления подчёркивают современную архитектуру здания. Собственная крышная котельная и актуальные технические решения обеспечат будущим собственникам исключительный комфорт.Территория дома благоустроена по самым актуальным стандартам:закрытый дворвидеодомофоны с функцией распознавания лицпомещение для размещения консьерж-сервиса, который позаботится о комфорте, безопасности проживающих, уюте и чистотеландшафтное озеленение с редкими видами растений и системой автополивадетская площадка с инновационным оборудованиемсовременный воркаут и зона для занятий йогойlounge - зона с гамакамихоллы с ремонтом по индивидуальному дизайнерскому проектуместа для стоянки велосипедов и колясок (во дворе)система видеонаблюдениявыделенная зона для парковки транспортных средств площадью более 2200 кв. м. с возможностью выезда на ул. Трубаченко и ул. Крымских Партизан.В жилом комплексе Поэма Вы сможете наслаждаться потрясающими видами на город, живописными рассветами и незабываемыми закатами прямо из окна своей квартиры.Локация объекта привлекает также и развитой инфраструктурой. Это район с транспортной доступностью по всем направлениям. Поблизости расположены супермаркеты, торговые центры, банки, детские сады и школы, спортивный клуб, аптеки, химчистка, кафе и рестораны.В нескольких минутах ходьбы парк им. Шевченко - один из старейших в Симферополе. Это любимое место отдыха для многих поколений, где приятно проводить время в гармонии с природой.Жилой комплекс Поэма - свободный ритм, достижимая высота.
45 м2
12 / 16 этаж
Кирпич - монолит
- Показать контакты
- Добавить в избранное
45 м2
12 / 16 этаж
Кирпич - монолит
9 175 600
203 000 /м2
Новостройка,
II-2026
II-2026
