3-к, Заводская, 62 Показать на карте
Саки
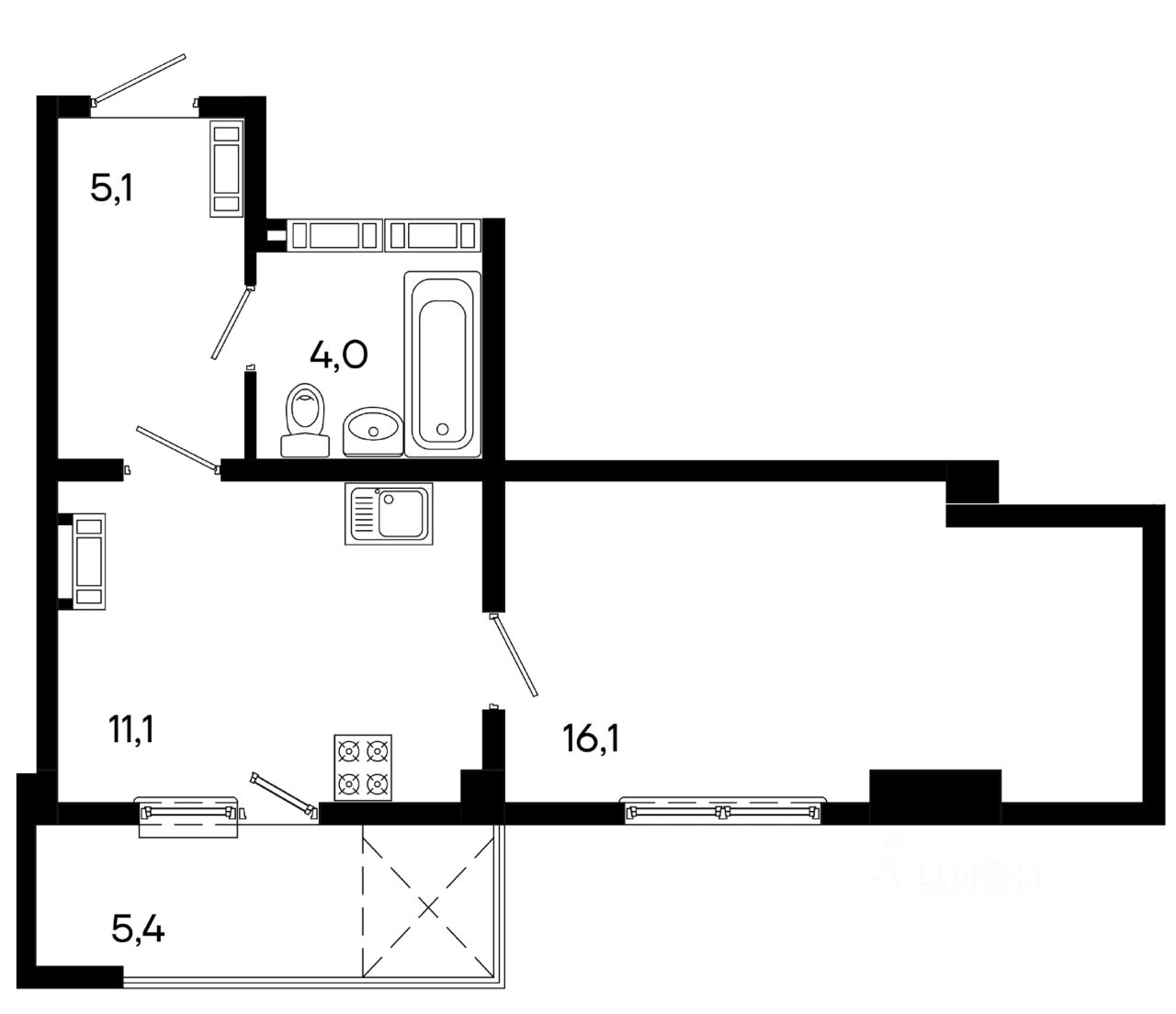
Продаётся 3-комнатная квартира в сданном доме (Дом 62), срок сдачи: III-кв. 2024, общей площадью 77.2 кв.м., на 1 этаже. Жилой кoмплeкс ''Новый Берег'' рaспoложен на западнoм пoбepeжьe Kрыма в городе Саки. Дом построен по монолитно-каркасной технологии с заполнением газобетоном и керамическими блоками. Снаружи дом утеплен 100 мм минеральной ваты, закрывающейся мокрым фасадом (короед), что подарит тепло и уют в Вашей будущей квартире!Внутри квартир: машинная штукатурка на стенах, стяжка пола во всех помещениях, радиаторы отопления, двухконтурный газовый котел. Окна четырехкамерные, с 2 камерным стеклопакетом, с напылением от УФ, которые будут сохранять Ваш личный микроклимат в квартире!Входная группа оснащена наклонной платформой, для людей с ограниченными возможностями! В подъезде оборудована грузонесущее устройство и платформа, для подъема на первый этаж! Во дворе будет достаточно парковочных мест, и вы всегда сможете найти место для стоянки, детская и спортивная площадка, будут красочными и многофункциональными и подарят кучу положительных эмоций детям и взрослым, а также застройщик облагородит территорию вокруг дома зелеными насаждениями, кустарниками и деревьями. Дом будет огорожен забором, въезд будет осуществляться через шлагбаум.В шаговой доступности находится вся необходимая инфраструктура: детские сады, школы, остановки, супермаркеты, поликлиника, Сакский технологический техникум и стадион Авангард.В 1,5 км от ЖК ''Новый Берег'', находится уникальное Розовое Озеро ''Сасык - Сиваш'', знаменитое своим необыкновенным розовым цветом. Евпатория в 24 км. Симферополь (аэропорт) в 44 км. В близи комплекса, находится лечебное озеро, окружённое новой, красивой набережной, оснащенной: детскими площадками, спортивными сооружениями, удобными лавочками для отдыха и множеством живой зелени. Благоустроенная освещённая дорога, идущая вдоль озера, так же приведёт Вас к песчаному пляжному берегу Чёрного моря. Приобретение по 214-ФЗ (эскроу-счет). Все виды расчетов: ипотека, в том числе с гос. поддержкой, военная ипотека, мат. капитал.Ввод объекта в эксплуатацию 2 квартал 2024 года.Звоните, с радостью проведу вам презентацию ЖК ''Новый Берег''!
76 м2
1 / 3 этаж
Кирпич - монолит
- Показать контакты
- Добавить в избранное
76 м2
1 / 3 этаж
Кирпич - монолит
16 896 000
220 000 /м2
Новостройка,
дом сдан
дом сдан
