2-к, Севастопольская, 41 Показать на карте
Центральный
Симферополь
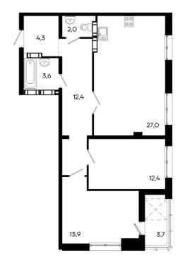
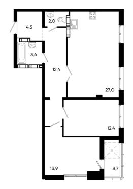
Продаётся 2-комнатная квартира в строящемся доме (Корпус 1), срок сдачи: III-кв. 2026, общей площадью 79.1 кв.м., на 10 этаже. Клубный дом ''Моне'' от группы компаний ''ИнтерСтрой'' Образ клубного дома ''Моне'' в сердце крымской столицы вдохновлен творчеством гениального основоположника импрессионизма, живописца Клода Моне. Будучи необычайно талантливым художником, он работал в особом стиле, главная цель которого передать впечатление, характер, атмосферу... Локация клубного дома ''Моне'' - удивительна. Рядом находится живописное озеро. Прогулки здесь позволят резидентам насладиться красотой природы, расслабиться, вдохновиться прекрасными пейзажами, словно сошедшими с картин Клода Моне. Клубный дом ''Моне'' отличается многофункциональностью, стильным архитектурным обликом. Он станет архитектурной доминантой города и его украшением. Объект имеет великолепное расположение - это центральная часть столицы Крыма, где есть абсолютно вся инфраструктура. Монолитно-каркасный 16-этажный дом выполнен в современном стиле. Фасад из керамогранита светлых тонов с витражными системами остекления подчеркивает непринуждённый и гармоничный внешний вид здания. В клубном доме комфорт-класса представлены наиболее востребованные планировки квартир: - компактные студии от 34,9 м - универсальные однокомнатные от 38,9 м - удобные двухкомнатные от 64,6 м - просторные трёхкомнатные - 87,7 м Из окон откроются панорамные виды на городские пейзажи, парковую зону, озеро. Дом отделен от окружающей застройки стилобатной частью, что вместе с небольшим количеством квартир и локацией у озера, создает особенную атмосферу и обеспечивает оазис спокойствия загородного дома в самой центральной части города... - закрытая территория - приватность, безопасность и Ваш комфорт - охраняемый паркинг, в котором жильцы могут приобрести машиноместо для своего автомобиля - места для мототранспорта, велосипедов и самокатов - современная спортивная площадка - яркая детская игровая зона - дизайнерские холлы - система умный дом - уютный, благоустроенный двор - ландшафтное озеленение территории На первом этаже предусмотрены встроенные коммерческие помещения. В шаговой доступности находится всё необходимое для комфортной жизни: - остановки общественного транспорта и отделения банков - два торговых центра, супермаркеты, магазины, кафе, и кинотеатр - фермерские лавки - детские сады и школы - аптеки и медицинский центр - спортивная школа - досуговый клуб - конный клуб - парк имени Тренева Объект расположен в центральном районе города с великолепной транспортной развязкой. От клубного дома ''Моне'' удобно добираться как в центральную часть, так и на выезд из города.
79 м2
10 / 16 этаж
Кирпич - монолит
- Показать контакты
- Добавить в избранное
79 м2
10 / 16 этаж
Кирпич - монолит
15 029 000
190 000 /м2
Новостройка,
III-2026
III-2026
