Виноградное
COSMOS STAY HIDDEN YALTA - это комплекс апартаментов из 5 корпусов для отдыха с собственной развитой инфраструктурой. Находится в Ялте у подножья горы Могаби на южном берегу Крыма, вблизи с живописным горно-лесным заповедником. Из апартаментов комплекса открываются завораживающие виды на горные вершины и Чёрное море. В шаговой доступности могабинские озера. Находится на подножии Ай-Петри, что позволяет комфортно добраться до горных склонов. До центра Ялты 10 минут на машине, как и до моря. Концепция апарт-комплекса предполагает круглогодичный комфортный отдых в формате retreat, с заботой о ментальном и физическом здоровье. Всё для Вашего восстановления и перезагрузки, для размеренной и комфортной жизни. Целебный морской воздух и благодатный климат. В комплексе создана атмосфера респектабельной среды для жизни: - собственная инфраструктура, - свой зеленый двор, - безопасность, - детские пространства, - собственная инфраструктура, - свой зеленый двор, - безопасность, - детские пространства, - лаунж-зоны, - будет присвоен статус 3 звезды и работать отельный оператор, - пространства для медитаций и занятий йогой, - ресторан, - индивидуальные келлеры для габаритного инвентаря, - всесезонный бассейн, Консьерж-сервис полного цикла обслуживания с опцией управления недвижимостью - разрешит любой возникающий вопрос. Строительство ведется при проектном финансировании СБЕРБАНКА, ФЗ-214. Продажа через эскроу-счет без комиссий. Завершение строительства - 3 квартал 2026 годаПередача ключей до 31.12.2026Ремонт и оснащение апартаментов: декабрь 2026-апрель 2027Запуск апарт-отеля в управление - июнь 2027
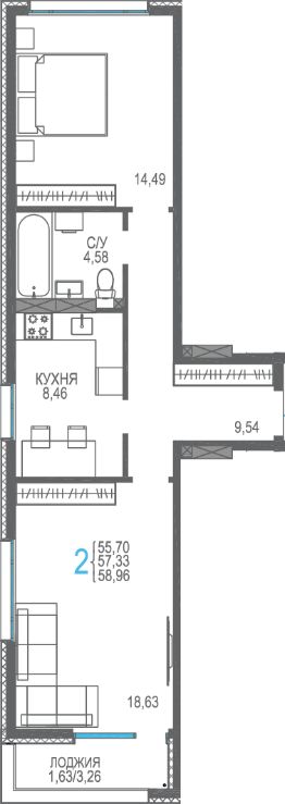
59 м2
3 / 10 этаж
Монолит
- Показать контакты
- Добавить в избранное
59 м2
3 / 10 этаж
Монолит
29 551 500
495 000 /м2
Новостройка,
II-2027
II-2027
