1-к, Севастопольское шоссе, 6а корп. 3 Показать на карте
Алупка
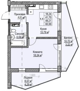
''В продаже Студия, площадью 37.7, под номером 26 в новом Доме ЖК ''Вилла Маяк''.'' ''Вилла Маяк'' - новый жилой комплекс комфорт-класса на территории Большой Ялты, в г. Алупка расположен между двух захватывающих видов на бескрайнее Черное море и горный ландшафт вершины Ай-Петри. В непосредственной близости находится Воронцовский дворец с прилегающей парковой территорией 30 га с крымскими растениями: соснами, бамбуком и ливанским кедром. Сочетание вечнозеленой растительности и целебного морского климата делают проживание и отдых приятным и полезным.Комплекс, состоит из трех малоэтажных домов, паркинга и благоустроенной территории с ландшафтным дизайном. Стильные дома, безопасный двор, великолепные виды на Воронцовский парк делают ''Вилла Маяк'' одним из самых привлекательных объектов для жизни и инвестиций.
37 м2
3 / 4 этаж
Панель
- Показать контакты
- Добавить в избранное
37 м2
3 / 4 этаж
Панель
14 650 000
388 594 /м2
Новостройка,
дом сдан
дом сдан
