Судак
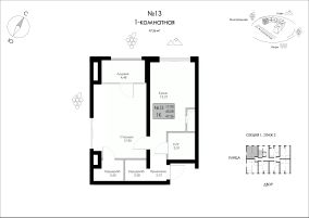
Продается квартира общей площадью 50,36 м2 в комплексе бизнес-класса Долина Роз в г. Судак.Квартира N 1/5-205Видовые характеристики: дворЭтаж: 2 Высота потолков: 3м.Варианты приобретения:— 100% оплата— Беспроцентная рассрочка— Ипотека от ведущих банковПреимущества комплекса:— Панорамные виды на побережье, горы и виноградники,— в 10 минутах от природных и исторических достопримечательностей,Более 40 видов планировочных решений:— Нет квартир-студий,— Квартиры с собственным патио,— Квартиры с лоджией из кухни-гостиной или из спальни,— Пентхаусы с террасами,— Двухуровневые квартиры с террасами,— Квартиры с арочными окнами,— Квартиры с окном в ванной,— Квартиры с высотой потолка до 3.7м,— ФЗ-214.Инфраструктура:— Открытый бассейн с зонами отдыха и шезлонгами,— Собственная традиционно оборудованная баня,— Многофункциональная спортивная площадка и уличный workout,— Велосипедная дорожка по всему периметру жилого комплекса,— Детские площадки с безопасным покрытием,— Прогулочные аллеи с местами для отдыха,— Торговый центр,— Коммерческие помещения,— Келлеры для хранения вещей— Большая открытая парковка,— Закрытая охраняемая территория.SERVICE Аll inclusive от собственной сервисной компании: трансфер до комплекса, подготовка квартир к вашему приезду, аниматоры на детский праздник, клининг-сервис, экскурсии и трансфер по Крыму, прокат спортивного инвентаря и яхт. Предоставление услуг под любой из ваших запросов!Комплекс реализуется по 214-ФЗ. Для записи на просмотр звоните!
50 м2
2 / 8 этаж
- Показать контакты
- Добавить в избранное
50 м2
2 / 8 этаж
13 357 345
265 027 /м2
Новостройка,
I-2027
I-2027
