1-к, Заозерное Показать на карте
Заозерное
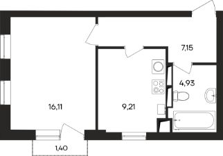
Продаётся 1-комнатная квартира в сданном доме (Корпус 10), срок сдачи: III-кв. 2025, общей площадью 38.8 кв.м., на 3 этаже. Новый жилой комплекс ''Кубики'' от застройщика ''ИнтерСтрой'' расположен по адресу: Россия, Республика Крым, городской округ Евпатория, посёлок городского типа Заозёрное, Олимпийская улица, 2
36 м2
3 / 4 этаж
Монолит
- Показать контакты
- Добавить в избранное
36 м2
3 / 4 этаж
Монолит
11 297 520
312 000 /м2
Новостройка,
дом сдан
дом сдан
