Если цена в объявлении изменится, мы сразу сообщим вам об этом на электронную почту.
Нажимая «Подписаться», вы соглашаетесь с правилами.
продам 2-к, Левитана И., 3д19 616 000 ₽
3 мар
Дата публикации объявления
Обн. 16 апр
Дата обновления объявления
2
Количество просмотров (+ просмотры за сегодня)
Спецпредложение
Турбо x8
320 000 ₽/м²
Чистая продажа
Термин "Чистая продажа" означает, что в квартире никто не прописан или
есть куда выписаться и вывезти вещи. Это лучший вариант для покупателя.
Вероятность срыва сделки минимальна.
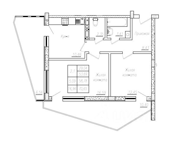
Квартира
Общая площадь61,3 м2
Жилая площадь29 м2
Кухня10,4 м2
Тип собственностисвидетельство о праве собственности
Продаётся 2-комнатная квартира в сданном доме (И. Левитана, 3Д), срок сдачи: IV-кв. 2024, общей площадью 61.3 кв.м., на 3 этаже. Жилой дом от застройщика ''Власта Инвест Крым'' в городе ялта на улице И. Левитана.