Если цена в объявлении изменится, мы сразу сообщим вам об этом на электронную почту.
Нажимая «Подписаться», вы соглашаетесь с правилами.
продам дом, Номана Челебиджихана, 396 500 000 ₽
26 фев
Дата публикации объявления
Обн. 27 фев
Дата обновления объявления
8
Количество просмотров (+ просмотры за сегодня)
31 100 ₽/м²
Чистая продажа
Термин "Чистая продажа" означает, что в квартире никто не прописан или
есть куда выписаться и вывезти вещи. Это лучший вариант для покупателя.
Вероятность срыва сделки минимальна.
Этажей2
Площадь участка9,38 соток
Общая площадь209 м2
ЭлектричествоЕсть
Газоснабжениецентральное
Продаётся загородный дом в Республике Крым, г. Саки, район Аметхан-Султан в 15-ти минутной доступности к морю. Идеальный вариант для большой семьи или семьи с детьми.
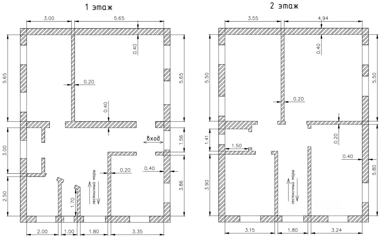
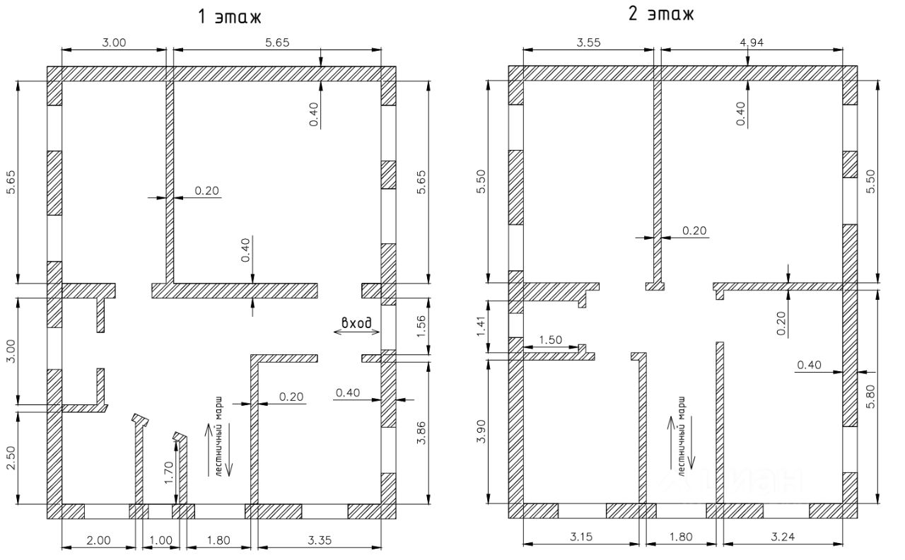
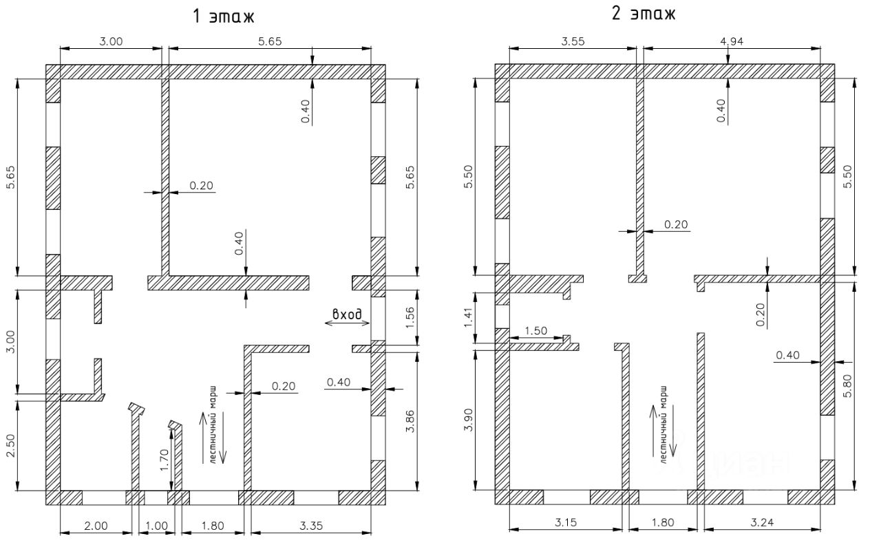
Дом - Капитальное строение 9,75 12,60 м. - Два полноценных этажа высотой по 3 метра из тёплого и экологичного крымского ракушняка. Надёжный фундамент. Черновая отделка — вы сможете реализовать планировку и интерьер полностью под себя. - Дом спроектирован с соблюдением строительных норм и с учётом сейсмических требований региона — надёжность и долговечность заложены в основу. - Большая площадь даёт свободу: просторные спальни, кабинет, игровая, мастерская, гардеробные — пространство позволяет.
Участок - Площадь 9,38 сотки.
Продаётся загородный дом в Республике Крым, г. Саки, район Аметхан-Султан в 15-ти минутной доступности к морю. Идеальный вариант для большой семьи или семьи с детьми.
Дом - Капитальное строение 9,75 12,60 м. - Два полноценных этажа высотой по 3 метра из тёплого и экологичного крымского ракушняка. Надёжный фундамент. Черновая отделка — вы сможете реализовать планировку и интерьер полностью под себя. - Дом спроектирован с соблюдением строительных норм и с учётом сейсмических требований региона — надёжность и долговечность заложены в основу. - Большая площадь даёт свободу: просторные спальни, кабинет, игровая, мастерская, гардеробные — пространство позволяет.
Участок - Площадь 9,38 сотки. - Участок угловой — удобный подъезд и больше ощущения открытого пространства. - По периметру — крепкий забор из крымского ракушняка на ленточном фундаменте, высота 2 м. Приватность обеспечена. - Много места для реализации: сад с деревьями, бассейн, зона барбекю, детская площадка, гараж — участок позволяет создать полноценную загородную территорию. Много неба, света и простора.
Коммуникации - Электричество 22 кВт (трёхфазное) заведено до счетчика (дом), с документами - Вода заведена на участок до счетчика, с документами - Газовая магистраль вдоль забора - По микрорайону проходит оптоволоконный интернет - Улицы освещаются
Расположение Тихий район частной застройки — никаких многоэтажек, только дома и простор. - 10 минут пешком до детского сада - 7 минут пешком до ж/д остановки - До моря — 3 остановки или 15 минут на машине
Район активно развивается. По соседству новые дома, соседи проживают круглогодично.
Кадастровый номер дома: 90:21:010110:1117 Кадастровый номер участка: 90:21:010110:399