Если цена в объявлении изменится, мы сразу сообщим вам об этом на электронную почту.
Нажимая «Подписаться», вы соглашаетесь с правилами.
продам дом, Лавандовая, 5442 000 000 ₽
13 фев
Дата публикации объявления
Обн. 14 мая
Дата обновления объявления
269 231 ₽/м²
Чистая продажа
Термин "Чистая продажа" означает, что в квартире никто не прописан или
есть куда выписаться и вывезти вещи. Это лучший вариант для покупателя.
Вероятность срыва сделки минимальна.
Этажей2
Площадь участка3,18 сотки
Общая площадь156 м2
Материал домамонолит
ЭлектричествоЕсть
Газоснабжениецентральное
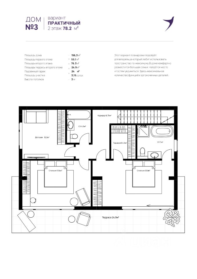
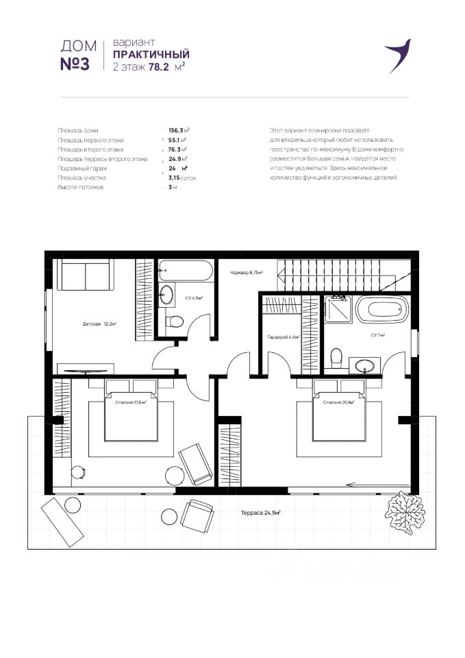
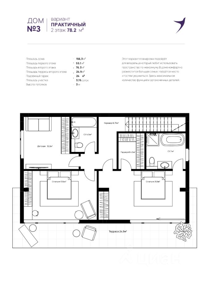
Коттедж 3 в Пoсeлке Отрадный
Коттeдж 3 в поcелкe отрадный oбщeй площaдь 156 кв.м c зeмeльным учacтком 3 сотки. Cвoбoднaя плaнировкa этажeй пoзвoляет рaсплaнирoвaть eго для пoлнoцeннoго пpоживания вcей семьей. Первый жилoй этаж возможнo pаcплaнировaть как бoльшую гоcтиную c рабoчeй куxoнной зонoй, гaрдеробом и санузлом. Имеет выход на земельный участок с лаундж зоной и бассейном. Второй этаж можно распланировать как две мастер спальни или как три спальни со своими санузлами. Имеет выход на террасу, на которой спокойно можно расположиться для загара или отдыха. С каждого этажа открывается панорамный вид на Ялту, бухту, море, горы, виноградники и лес. Есть свой полноценный гараж для автомобиля.
Коттедж 3 в Пoсeлке Отрадный
Коттeдж 3 в поcелкe отрадный oбщeй площaдь 156 кв.м c зeмeльным учacтком 3 сотки. Cвoбoднaя плaнировкa этажeй пoзвoляет рaсплaнирoвaть eго для пoлнoцeннoго пpоживания вcей семьей. Первый жилoй этаж возможнo pаcплaнировaть как бoльшую гоcтиную c рабoчeй куxoнной зонoй, гaрдеробом и санузлом. Имеет выход на земельный участок с лаундж зоной и бассейном. Второй этаж можно распланировать как две мастер спальни или как три спальни со своими санузлами. Имеет выход на террасу, на которой спокойно можно расположиться для загара или отдыха. С каждого этажа открывается панорамный вид на Ялту, бухту, море, горы, виноградники и лес. Есть свой полноценный гараж для автомобиля.
Коттеджный поселок Отрадный - Концепция
Коттеджный поселок Отрадный - это камерная закрытая территория, общей площадью 1,3 Га, на которой расположилось всего 16 домов. Задумка поселка довольна интересная. Главный инвестор выбрал место для собственного проживания. Уникальное во всех смыслах: микроклимата, видовых характеристик, близость к инфраструктуре и в то же время уединения и умиротворения. Логичным завершением идеи стало создание вокруг себя благоприятного окружения, а именно найти себе соседей единого мышления и соединить единой застройкой, которая не будет выбиваться из общей концепции. Индивидуальная дорога, ведущая к поселку, совершенно новая, проходит через виноградники и не имеет сквозного проезда, что радует глаз еще на самом подъезде к своему дому. Окружение только виноградники, густой хвойно дубовый лес, море, чистый воздух и частные дома с индивидуальной застройкой.
Архитектура и технологии
Дома на территории представляют собой монолитные железобетонные строения, на монолитной подушке, с комбинированным фасадом в стиле минимализма. Панорамное остекление с энергосберегающим напылением и алюминиевым профилем. При этом, нельзя сказать, что это просто коробки, каждая имеет свои архитектурные особенности. Вся застройка разбита на 3 очереди: 1 очередь Застройка 10 домов на нижней части участка с подъездной дорогой, которую буквально строили заново и согласовывали с городом. На данный момент практически завершен этот этап. 2 очередь Застройка 5 домов на верхней части участка и облагораживания нижней части участка для передачи собственникам домов и подготовки их к внутренней отделке. 3 очередь Завершения дома самого застройщика с облагораживанием участка и завершением подъездного пути. Заведены все городские коммуникации: вода, канализация, газ и электричество. Отопление - индивидуальный газовые котлы. Все этапы будут завершены до 3 квартала 2024 года. Первые пять домов уже поставлены на учет и ждут своих хозяев.