Проект жилой застройки под МКД с видом на море г. Керчь, Республика Крым — участок 3.3 га, ланшафт: участок ровный.
Кадастровый номер:
90:19:000000:92
есть инвестиционный проект.
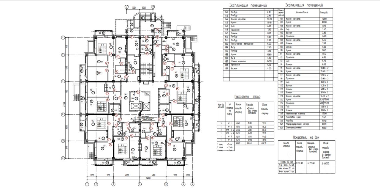
Площадь участка — 33 001 м² • Разрешённая этажность — до 8 этажей, • Назначение: многоэтажная жилая застройка (Ж-3) • Предусмотрена коммерция и благоустройство
• В 150 м — берег моря, яхт-клуб, • Прямой вид на Керченский мост
• Соседство: Парк им. Войкова (реконструкция в 20242025 гг.
Проект жилой застройки под МКД с видом на море г. Керчь, Республика Крым — участок 3.3 га, ланшафт: участок ровный.
Кадастровый номер:
90:19:000000:92
есть инвестиционный проект.
Площадь участка — 33 001 м² • Разрешённая этажность — до 8 этажей, • Назначение: многоэтажная жилая застройка (Ж-3) • Предусмотрена коммерция и благоустройство
• В 150 м — берег моря, яхт-клуб, • Прямой вид на Керченский мост
• Соседство: Парк им. Войкова (реконструкция в 20242025 гг.), • Прямая транспортная доступность
ФИН МОДЕЛЬ: Общая площадь застройки: ~105 000 м²
• Жильё: ~95 000 м²
• Коммерция: ~10 000 м²
• Квартир: ~2 000
• Парковки: ~2 000 мест
• ROI проекта: ~1315%
• Прибыль: ~1,5 млрд ?
Морская панорама и премиальная локация
Утверждённый ГПЗУ, ясный правовой статус
Инвестиционный потенциал комфорт-класса
Конкуренция в Керчи — минимальная
Возможность этапного ввода