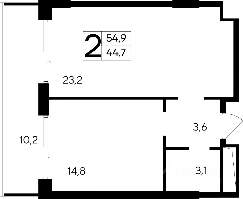
Продаются 2-комнатные апартаменты в строящемся доме (Дом 35 (Этап 1)), срок сдачи: IV-кв. 2028, общей площадью 54.9 кв.м., на 11 этаже. Новый апарт-комплекс ''Ривьера Евпатория'' от застройщика ''ИнтерСтрой'' расположен по адресу: Республика Крым, г. Евпатория, ул. Кирова, 35