Если цена в объявлении изменится, мы сразу сообщим вам об этом на электронную почту.
Нажимая «Подписаться», вы соглашаетесь с правилами.
продам 1-к, Фрунзе, 238 500 000 ₽
22 окт
Дата публикации объявления
Обн. сегодня
Дата обновления объявления
2
Количество просмотров (+ просмотры за сегодня)
Топ
238 764 ₽/м²
Чистая продажа
Термин "Чистая продажа" означает, что в квартире никто не прописан или
есть куда выписаться и вывезти вещи. Это лучший вариант для покупателя.
Вероятность срыва сделки минимальна.
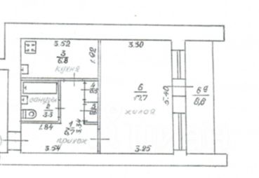
Продается однокомнатная квартира в Центре города по улице Фрунзе 23. Дом построен в 1990 г по индивидуальному проэкту, большие лестничные клетки и коридор. В доме новый лифт. В квартире сделан косметический ремонт. Квартира находится на 3-тьем этаже 9-ти этажного жилого дома. Общая площадь квартиры (без учета лоджии) 35.6 кв.м. Лоджия очень большая 6.6 кв.м., можно сделать еще одну комнату) Окна выходят во двор, середина дома. Стороны света: юго-запад. Окно на кухне стеклопакет и на лоджии поменяны окна. Пластиковые трубы. Установлены счетчики учета на газ, воду, электроэнергию. На горячую воду стоит бойлер+централизованная горячая вода. Установлен кондиционер в комнате. Встроенный кухонный ряд. Встроенный шкаф в прихожей. Квартира продается с мебелью и техникой.
Продается однокомнатная квартира в Центре города по улице Фрунзе 23. Дом построен в 1990 г по индивидуальному проэкту, большие лестничные клетки и коридор. В доме новый лифт. В квартире сделан косметический ремонт. Квартира находится на 3-тьем этаже 9-ти этажного жилого дома. Общая площадь квартиры (без учета лоджии) 35.6 кв.м. Лоджия очень большая 6.6 кв.м., можно сделать еще одну комнату) Окна выходят во двор, середина дома. Стороны света: юго-запад. Окно на кухне стеклопакет и на лоджии поменяны окна. Пластиковые трубы. Установлены счетчики учета на газ, воду, электроэнергию. На горячую воду стоит бойлер+централизованная горячая вода. Установлен кондиционер в комнате. Встроенный кухонный ряд. Встроенный шкаф в прихожей. Квартира продается с мебелью и техникой. Состояние ''заходи и живи''. Хорошее месторасположение. Рядом школа 2, садик, магазины, супермаркеты, аптеки, вокзалы, общественный транспорт. До моря 15 минут пешком. Документы готовы РФ. Звоните!)