Если цена в объявлении изменится, мы сразу сообщим вам об этом на электронную почту.
Нажимая «Подписаться», вы соглашаетесь с правилами.
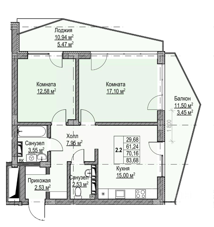
продам 2-к, Левитана И., 3а32 273 600 ₽
9 сен
Дата публикации объявления
Обн. сегодня
Дата обновления объявления
Спецпредложение
Турбо x8
460 000 ₽/м²
Чистая продажа
Термин "Чистая продажа" означает, что в квартире никто не прописан или
есть куда выписаться и вывезти вещи. Это лучший вариант для покупателя.
Вероятность срыва сделки минимальна.
Продаётся 2-комнатная квартира в строящемся доме (Дом 3А), срок сдачи: II-кв. 2027, общей площадью 70.16 кв.м., на 4 этаже. Жилой дом от застройщика ''Власта Инвест Крым'' в городе ялта на улице И. Левитана.