Если цена в объявлении изменится, мы сразу сообщим вам об этом на электронную почту.
Нажимая «Подписаться», вы соглашаетесь с правилами.
продам 2-к, Левитана И., 3д16 578 000 ₽
9 сен
Дата публикации объявления
Обн. вчера
Дата обновления объявления
1
Количество просмотров (+ просмотры за сегодня)
Спецпредложение
Турбо x8
270 000 ₽/м²
Чистая продажа
Термин "Чистая продажа" означает, что в квартире никто не прописан или
есть куда выписаться и вывезти вещи. Это лучший вариант для покупателя.
Вероятность срыва сделки минимальна.
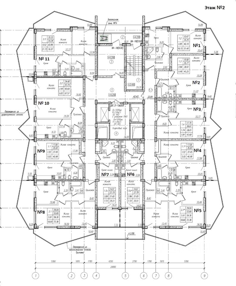
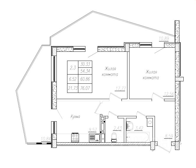
Квартира
Общая площадь61,4 м2
Жилая площадь30,3 м2
Кухня9,6 м2
Тип собственностисвидетельство о праве собственности
Продаётся 2-комнатная квартира в сданном доме (И. Левитана, 3Д), срок сдачи: IV-кв. 2024, общей площадью 61.4 кв.м., на 2 этаже. Жилой дом от застройщика ''Власта Инвест Крым'' в городе ялта на улице И. Левитана.