Если цена в объявлении изменится, мы сразу сообщим вам об этом на электронную почту.
Нажимая «Подписаться», вы соглашаетесь с правилами.
продам 2-к, Левитана И., 3а33 676 800 ₽
9 сен
Дата публикации объявления
Обн. сегодня
Дата обновления объявления
1
Количество просмотров (+ просмотры за сегодня)
Спецпредложение
Турбо x8
480 000 ₽/м²
Чистая продажа
Термин "Чистая продажа" означает, что в квартире никто не прописан или
есть куда выписаться и вывезти вещи. Это лучший вариант для покупателя.
Вероятность срыва сделки минимальна.
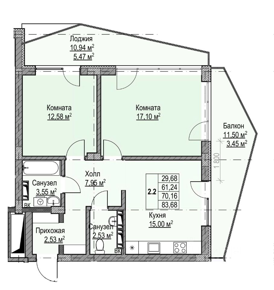
Продаётся 2-комнатная квартира в строящемся доме (Дом 3А), срок сдачи: II-кв. 2027, общей площадью 70.16 кв.м., на 6 этаже. Жилой дом от застройщика ''Власта Инвест Крым'' в городе ялта на улице И. Левитана.