Апартамент находится всего в восьми минутах ходьбы (600 метров) от благоустроенных и чистых пляжей.
В непосредственной близости от апартамента есть всё необходимое для отдыха: продуктовые магазины, разнообразные кафе, остановка общественного транспорта и знаменитый памятник садово-парковой архитектуры Крыма — парк Чаир.
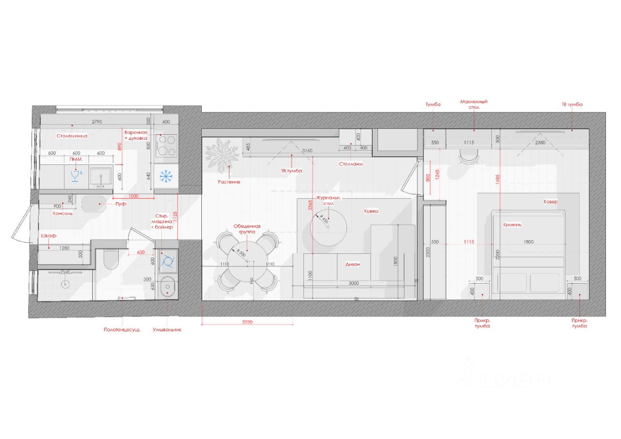
Апартамент был отремонтирован и подготовлен к чистовой отделке. Имеется дизайн-проект. Это отличный вариант как для постоянного проживания, так и для сдачи в аренду.

















