Если цена в объявлении изменится, мы сразу сообщим вам об этом на электронную почту.
Нажимая «Подписаться», вы соглашаетесь с правилами.
продам 1-к, Партенит Парк ЖК8 726 043 ₽
5 авг
Дата публикации объявления
Обн. вчера
Дата обновления объявления
5
Количество просмотров (+ просмотры за сегодня)
Спецпредложение
Турбо x8
258 473 ₽/м²
Чистая продажа
Термин "Чистая продажа" означает, что в квартире никто не прописан или
есть куда выписаться и вывезти вещи. Это лучший вариант для покупателя.
Вероятность срыва сделки минимальна.
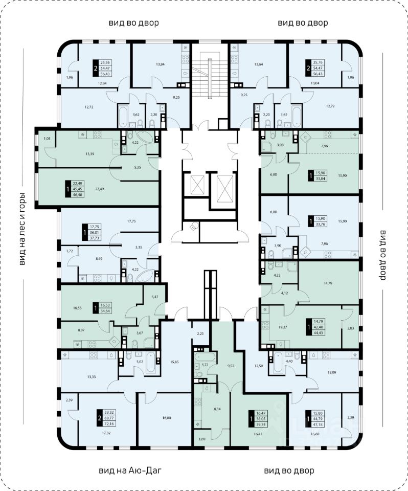
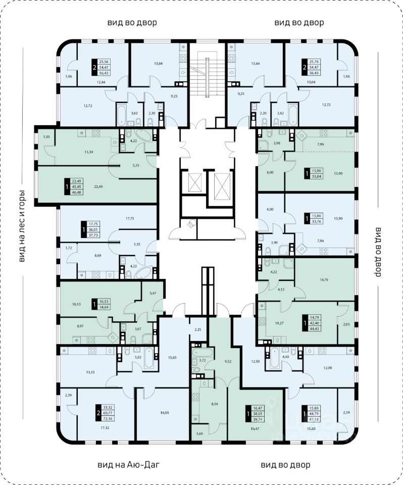
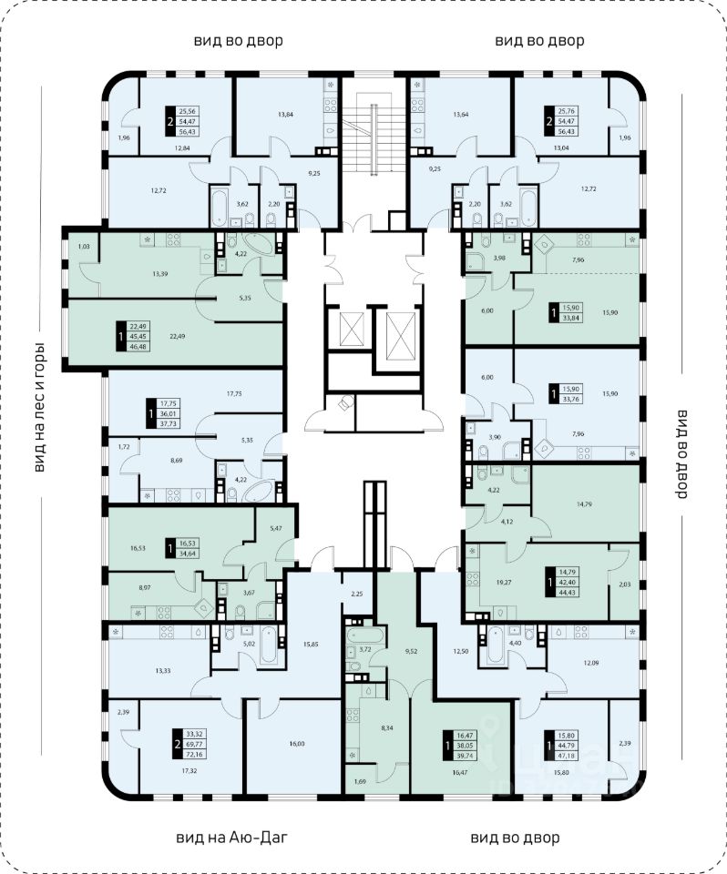
Квартира
Общая площадь33,76 м2
Жилая площадь15,9 м2
Кухня8 м2
Тип квартирыстудия
Тип собственностидоговор долевого участия
Дом
Срок сдачи3 кв. 2026 г.
Этаж3 из 16
Материал домакирпич - монолит
Продаётся студия в строящемся доме (Корпус 4), срок сдачи: III-кв. 2026, общей площадью 33.76 кв.м., на 3 этаже. Жилой комплекс ''Партенит Парк'' в поселке городского типа Партенит городского округа Алушта в республике Крым.