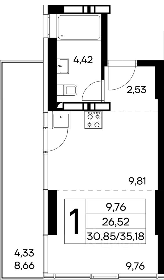
продам 1-к, Семидворье9 657 900 ₽

26 июля 2025
Обн. вчера
315 000 ₽/м²
  • Чистая продажа