Если цена в объявлении изменится, мы сразу сообщим вам об этом на электронную почту.
Нажимая «Подписаться», вы соглашаетесь с правилами.
продам дом, Уютное14 000 000 ₽
23 июля 2025
Дата публикации объявления
Обн. 27 апр
Дата обновления объявления
4
Количество просмотров (+ просмотры за сегодня)
105 263 ₽/м²
Чистая продажа
Термин "Чистая продажа" означает, что в квартире никто не прописан или
есть куда выписаться и вывезти вещи. Это лучший вариант для покупателя.
Вероятность срыва сделки минимальна.
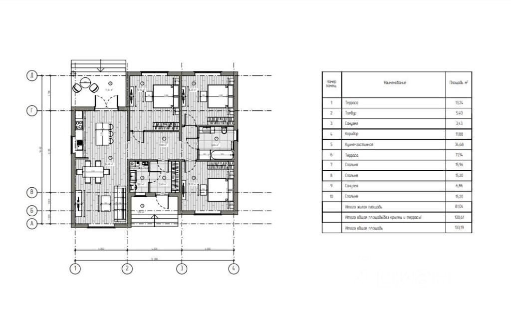
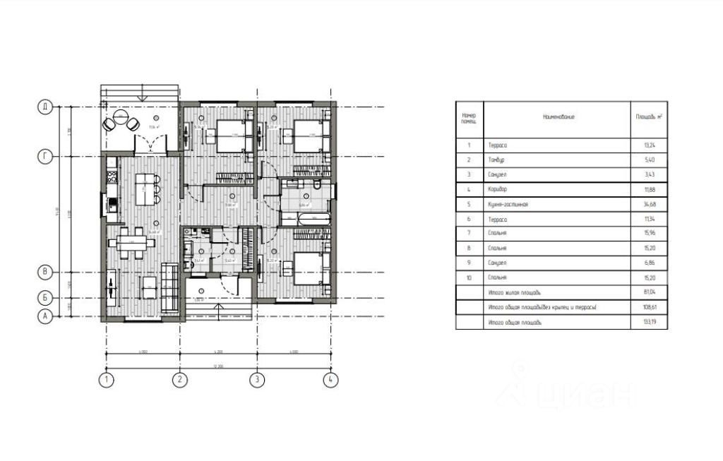
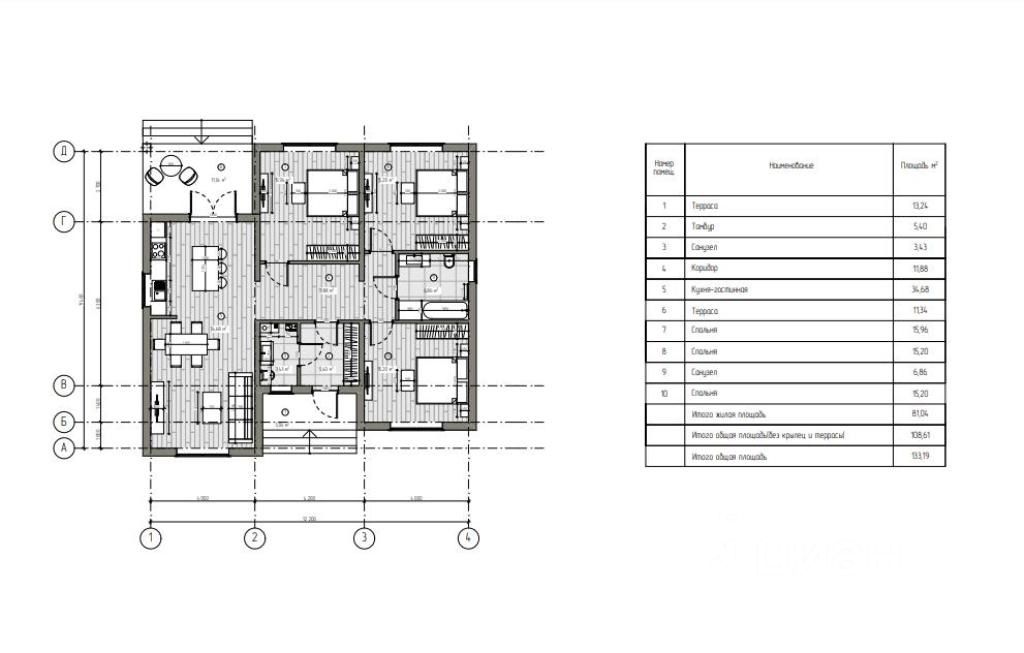
Этажей1
Площадь участка6 соток
Общая площадь133 м2
ЭлектричествоЕсть
Газоснабжениенет
Эксклюзивное предложение!
Просторный дом недалеко от моря в Евпатории Ваша мечта о собственном уголке на берегу Черного моря!
Описание: Вы мечтаете о собственном доме в живописном уголке Крыма? Представляем вашему вниманию роскошный дом в Евпатории, где каждый день будет наполнен комфортом и умиротворением.
Особенности дома:
- Общая площадь: 133,19 м2, жилая:46,36м2.
- Участок: 6 соток ИЖС
Документы РФ полностью готовы к сделке.
- Количество этажей: 1
- Спальни: 3 (15,96м2, 15,20м2, и 15,20м2)
- Ванная комната: 1 (6,86м2).
-Техническое помещение котельная: 3,43м2.
- Просторная кухня - гостиная с выходом на террасу (34,68м2)
- Терраса с видом во двор.
Эксклюзивное предложение!
Просторный дом недалеко от моря в Евпатории Ваша мечта о собственном уголке на берегу Черного моря!
Описание: Вы мечтаете о собственном доме в живописном уголке Крыма? Представляем вашему вниманию роскошный дом в Евпатории, где каждый день будет наполнен комфортом и умиротворением.
Особенности дома:
- Общая площадь: 133,19 м2, жилая:46,36м2.
- Участок: 6 соток ИЖС
Документы РФ полностью готовы к сделке.
- Количество этажей: 1
- Спальни: 3 (15,96м2, 15,20м2, и 15,20м2)
- Ванная комната: 1 (6,86м2).
-Техническое помещение котельная: 3,43м2.
- Просторная кухня - гостиная с выходом на террасу (34,68м2)
- Цоколь ж/б, колонны - ж/б, стены газобетон толщиной 300мм, смонтирован на клей, утеплён минеральной ватой 50 мм., наружная отделка фасада декоративная штукатурка, окна теплый трехслойный мультифункциональный стеклопакет, кровля - метало черепица, цвет графит, матовая. При строительстве использовались качественные материалы.
Расположение: Дом находится в тихом и уютном районе Евпатории, всего в 15 минутах ходьбы от пляжа. Рядом строится торговый центр, школа и детский сад. Центр Спорта Эволюция (спортивные сооружения, парковая территория детские игровые площадки школа серфинга (летом) экскурсионные программы анимация для детей зал для игр в бильярд паркинг на территории лечебное отделение собственный пляж киноконцертный зал) в прямой видимости.
Это не просто покупка недвижимости это инвестиция в ваше будущее и благополучие вашей семьи!
Не упустите шанс стать владельцем этого изысканного дома. Свяжитесь с нами сегодня для организации просмотра!