Если цена в объявлении изменится, мы сразу сообщим вам об этом на электронную почту.
Нажимая «Подписаться», вы соглашаетесь с правилами.
продам 2-к, Мира, 1110 500 000 ₽
27 мая 2025
Дата публикации объявления
Обн. вчера
Дата обновления объявления
3
Количество просмотров (+ просмотры за сегодня)
164 063 ₽/м²
Чистая продажа
Термин "Чистая продажа" означает, что в квартире никто не прописан или
есть куда выписаться и вывезти вещи. Это лучший вариант для покупателя.
Вероятность срыва сделки минимальна.
Просторная двухкомнатная квартира, готовая под чистовую отделку в Гаспре, рядом с Ялтой Идеальный вариант для комфортного проживания или инвестиций в недвижимость у моря. Вы получаете новую квартиру по цене 137 тыс/ м2, остаётся только выбрать цвет стен и пола, который будет вас радовать каждый день, а не раздражать чужими дизайнерскими идеями. Затраты на чистовую отделку 10 тыс/ м2 и уже через пару недель вы сможете наслаждаться жизнью у моря, восхищаясь видом из окон своей квартиры!
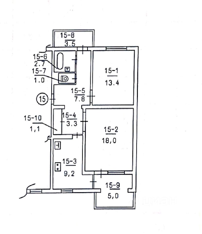
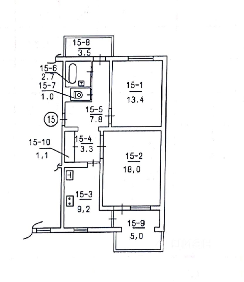
Характеристики: Площадь: 64 м² общая с балконом и лоджией, 56/ 31,4/9,2 удобная и просторная планировка, комнаты изолированы.
Просторная двухкомнатная квартира, готовая под чистовую отделку в Гаспре, рядом с Ялтой Идеальный вариант для комфортного проживания или инвестиций в недвижимость у моря. Вы получаете новую квартиру по цене 137 тыс/ м2, остаётся только выбрать цвет стен и пола, который будет вас радовать каждый день, а не раздражать чужими дизайнерскими идеями. Затраты на чистовую отделку 10 тыс/ м2 и уже через пару недель вы сможете наслаждаться жизнью у моря, восхищаясь видом из окон своей квартиры!
Характеристики: Площадь: 64 м² общая с балконом и лоджией, 56/ 31,4/9,2 удобная и просторная планировка, комнаты изолированы. Ремонт: выполнены все черновые работы качественными материалами: новая стяжка, выравнены и оштукатурены стены, что сэкономит Ваши нервы и время Коммуникации: полностью заменены (электрика, сантехника, отопление) — никаких дополнительных вложений! Комнаты: светлые и просторные: кухня 9,2, гостиная 18, спальня 13,4, санузел раздельный, в коридоре место под гардероб. Вид: живописные окрестности, горы и море в шаговой доступности. Из панорамных окон гостиной вид на море, который не оставит Вас равнодушным.
Инфраструктура: В шаговой доступности магазины, школы, детские сады, кафе. Ласточкино гнездо, Царская тропа, Воронцовский и Ливадийский дворцы, всё вокруг пропитано историей. Чистый, зеленый район, свежий морской воздух: жить тут это значит сохранить здоровье и молодость на долгие годы Удобная транспортная доступность по Южнобережному шоссе: До Ялты- 10 мин До Севастополя - 1,5ч, До Симферополя -2 ч. Звоните прямо сейчас! Оперативный показ и быстрый выход на сделку!