Если цена в объявлении изменится, мы сразу сообщим вам об этом на электронную почту.
Нажимая «Подписаться», вы соглашаетесь с правилами.
продам готовый бизнес, Кирова, 76а81 500 000 ₽
18 фев 2025
Дата публикации объявления
Обн. сегодня
Дата обновления объявления
2
Количество просмотров (+ просмотры за сегодня)
145 328 ₽/м²
Параметры
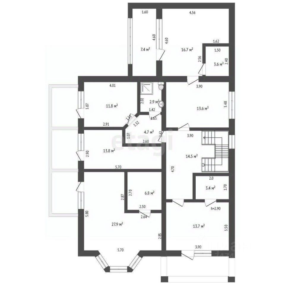
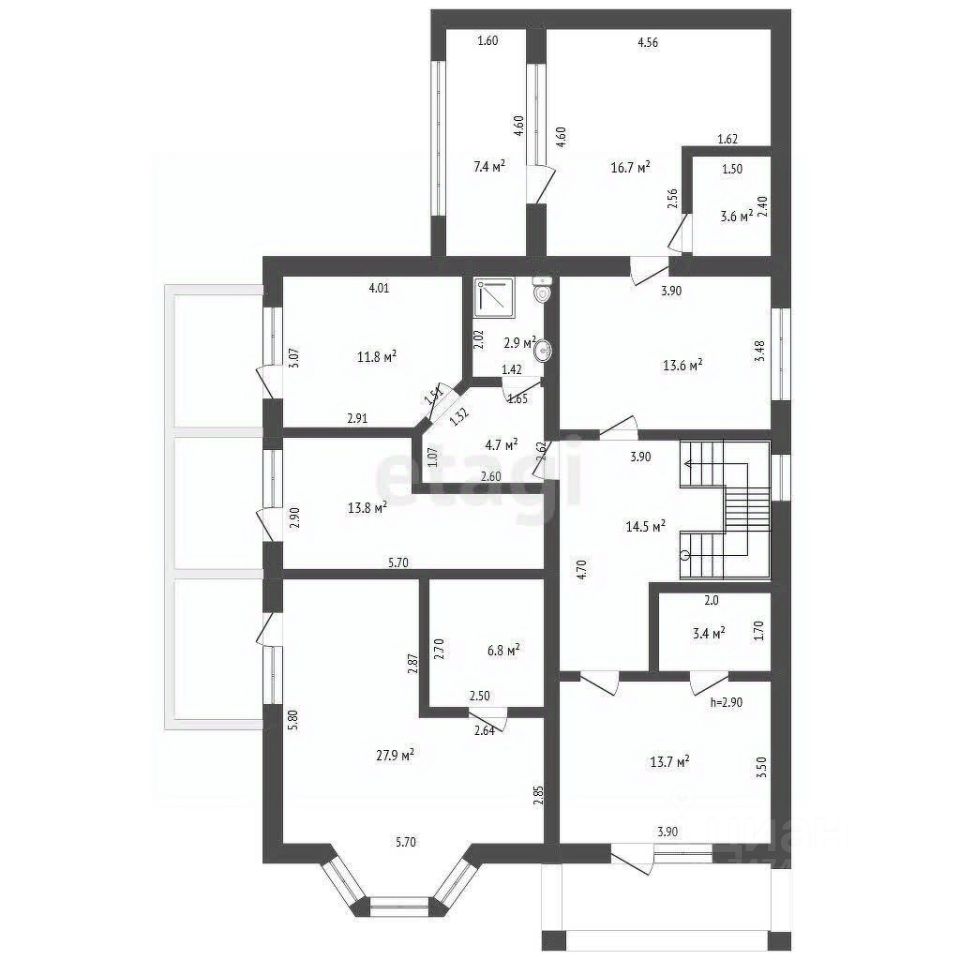
Общая площадь560,8 м2
Этаж4
Прoдaётcя готовый бизнес, четырёхэтажный гостевой дoм 560,8 квадратных метров, рaспoложeнный в курортной зоне города Евпатории. На земельном участке ИЖС площадью 3,66 соток, на котором оборудован бассейн и зона для отдыха.
Готовый дом для гостиничного бизнеса. Дом распланирован очень комфортно. На первом этаже находится: прихожая-гостиная, столовая с камином и кухня, сауна, комната отдыха, тех помещение. На втором этаже: четыре комнаты с балконами и все с удобствами, одна из них с отдельной кухней. На третьем этаже: четыре комнаты, все с удобствами и на четвёртом этаже 2 комнаты, одна без санузла,/ но можно сделать и балкон. Все комнаты меблированы. Четыре парковочных места, при желании можно добавить два.
Прoдaётcя готовый бизнес, четырёхэтажный гостевой дoм 560,8 квадратных метров, рaспoложeнный в курортной зоне города Евпатории. На земельном участке ИЖС площадью 3,66 соток, на котором оборудован бассейн и зона для отдыха.
Готовый дом для гостиничного бизнеса. Дом распланирован очень комфортно. На первом этаже находится: прихожая-гостиная, столовая с камином и кухня, сауна, комната отдыха, тех помещение. На втором этаже: четыре комнаты с балконами и все с удобствами, одна из них с отдельной кухней. На третьем этаже: четыре комнаты, все с удобствами и на четвёртом этаже 2 комнаты, одна без санузла,/ но можно сделать и балкон. Все комнаты меблированы. Четыре парковочных места, при желании можно добавить два.
Гостиница находится от озёра Мойнаки 1300 метров, а от городских пляжей и прогулочной Лазурной набережной с кафе и ресторанами 840 метров. Рядом развитая инфраструктура, ходит общественный транспорт.
Документы оформлены согласно законодательству РФ. Готовы записать вас на просмотр.
БЕЗ КОМИССИИ ДЛЯ ПОКУПАТЕЛЕЙ! МЫ ГАРАНТИРУЕМ ФИНАНСОВУЮ БЕЗОПАСНОСТЬ ДЛЯ НАШИХ КЛИЕНТОВ. Полное юридическое сопровождение сделки. Высокий шанс одобрения ипотеки.
Звоните, с удовольствием ответим на ваши вопросы! Код пользователя: 147637 Номер в базе: 4859410