Дом, Строительная Показать на карте
Крымское
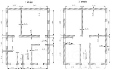
Продается дом в селе Крымское, Сакский район!В доме 3 жилых комнаты, кухня, санузел. Есть место для мастерской, гараж. Немного устав от домашних дел, вы с радостью сев в свой автомобиль преодолеете всего 32 км, окажетесь на берегу Черного моря.Летом двор утопает в зелени, цветут розы, плодовые деревья будут радовать вас урожаем.В с. Крымское есть все необходимое для жизни. Школа на 450 учеников, детский сад на 100 мест. Дворец культуры 500 мест.До железнодорожной станции Яркое 1.5 км. 3 остановки и пляж.Дополнительно оплачивается комиссия покупателем 2.5%, но не менее 70 000 рублей.Расстояние до г. Саки 26 км, 47км до г. Евпатория, до аэропорта г. Симферополь 39 км.При звонке сообщите, пожалуйста, номер объекта 4292, чтобы мы могли предоставить вам интересующую информацию оперативно.
96 м2
1 этаж
- Показать контакты
- Добавить в избранное
96 м2
1 этаж
7 000 000
72 690 /м2
