Универсальное помещение
Гагарина, 40а Показать на карте
Гагарина, 40а Показать на карте
Первомайское пгт
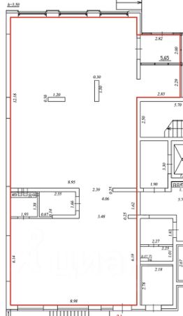
Объект 8775. Нежилое здание 87,4 м2, земля собственность 100м2, продается полностьюоборудованный магазин, который располагается вПервомайском районе, пгт Первомайское, ул Гагарина, д 40а.Хороший торг и срочная продажа!Продажа полностью оборудованного и рабочего магазина продукты, хоз и промтовары, строительные материалы и бытовая химия.Возможные видыдеятельности: отличный вариант для торговли: супермаркета, торговлипродовольственными и непродовольственными товарами, бытовой химией,строительно-отделочными материалами, обоями, пекарня хлебобулочных изделий идругие виды деятельности.Параметры объекта:- Адрес: пгт Первомайское ул Гагарина д 40а- Площадь магазина: 87,4 м²- Площадь зем. уч.: 100 м2- Высота потолка: 2 м- Планировка: зальная- Этажность: 1- Готовность объекта: с ремонтом- Отдельный входТехническиехарактеристики:- Мощность: 7 кВт- Вентиляция: принудительная- Кондиционирование: есть- Отопление: автономное- Санузел: да- Парковка: возле магазина.Позвоните нам, чтобы узнать вседетали!Инфраструктура: Магазин находится в частном секторе, на первой линии главной улицы района.Развитая инфраструктура. Высокий пешеходный и автомобильный трафик.Дополнительнаяинформация: Все документы РФ, проверены нашими юристами и готовы к сделке. Полное сопровождение, и гарантия чистоты сделки.Позвоните нам, чтобы назначитьпросмотр!
87 м2
- Показать контакты
- Добавить в избранное
87 м2
5 000 000
57 208 /м2
