2-к, Батурина Показать на карте
Центральный
Симферополь
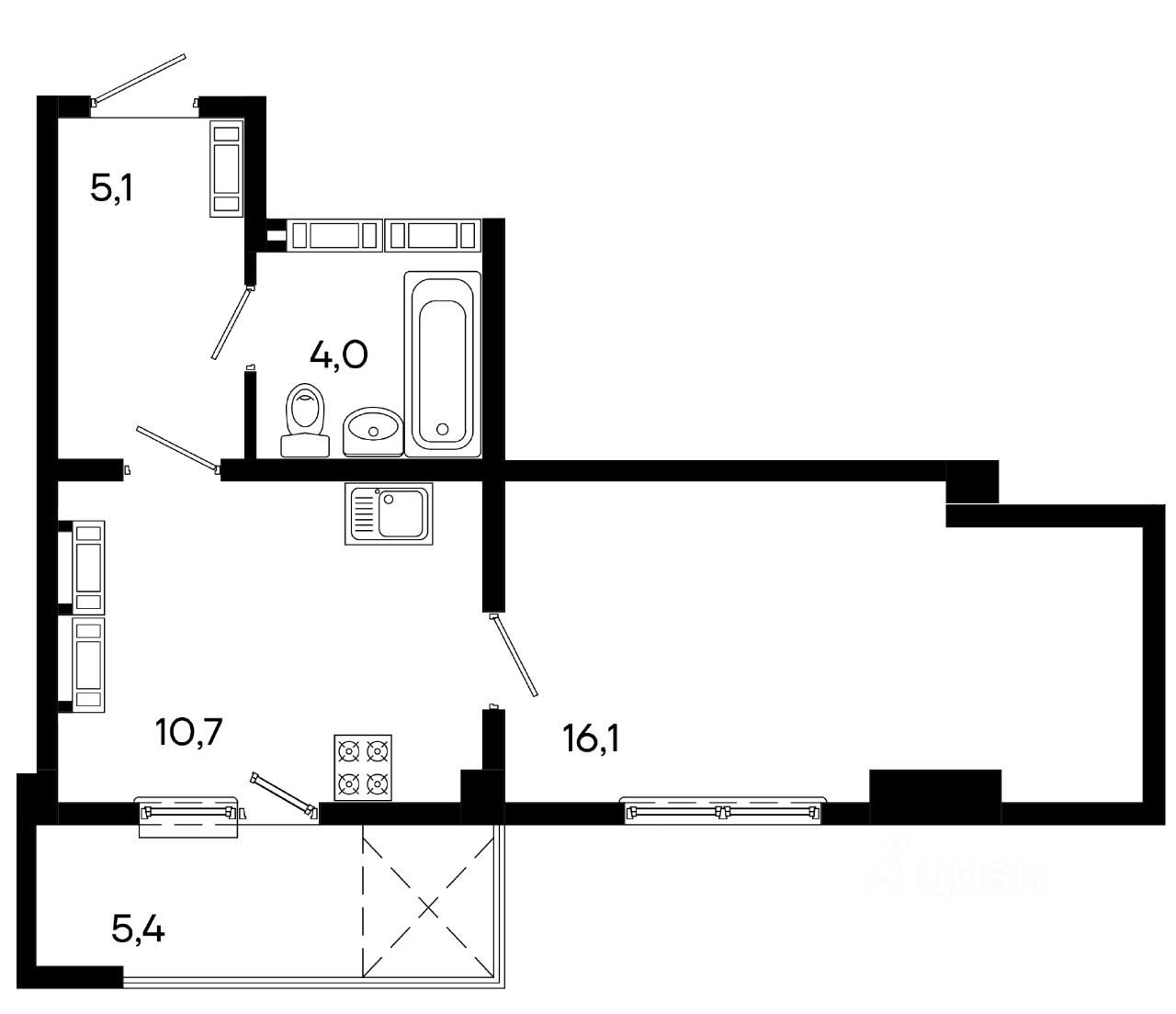
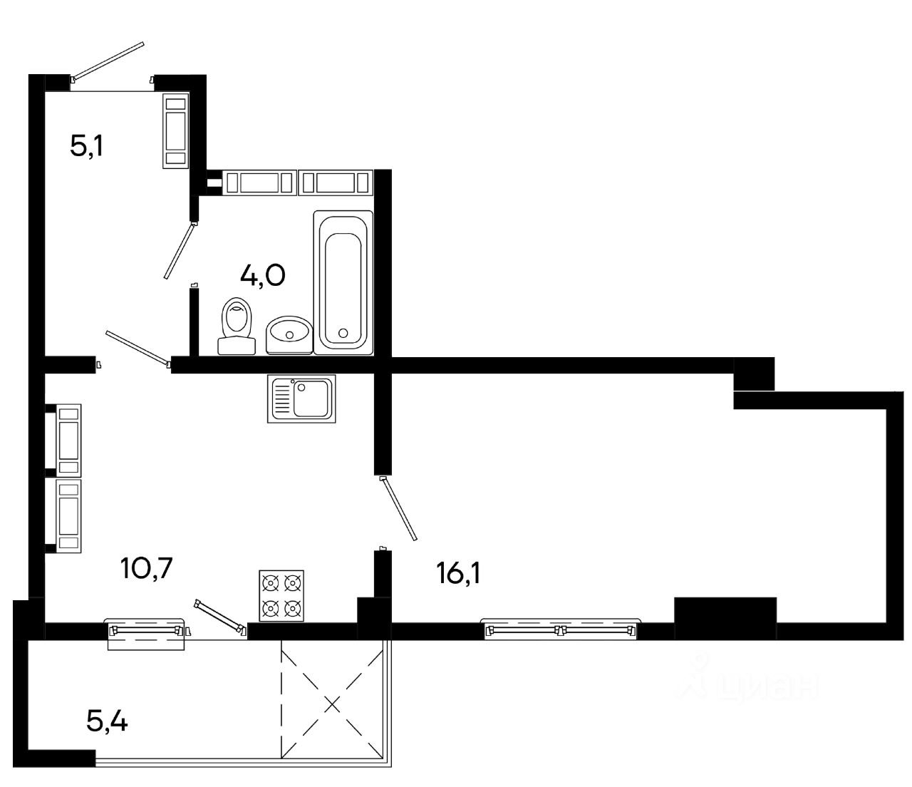
Продается 2-комн. квартира с предчистовой отделкой в ЖМ ''Город Мира'' на 1 этаже. Общая площадь: 60.43 кв.м., жилая: 28.51 кв.м., площадь просторной кухни-столовой: 14.86 кв.м. Квартира - распашонка, без проходных комнат, окна выходят на paзные стороны дома. В квартире один совмещенный санузел. Высота потолков 2.7 м. Квартиры в ЖК ''Город Мира'' ваш комфорт начинается здесь! ''Город Мира'' это масштабный жилой комплекс, созданный для тех, кто ценит комфорт, безопасность и гармонию с природой. Здесь продумана каждая деталь: от удобной инфраструктуры до эргономичных планировок квартир. В 2024 году микрорайон ''Город Мира'' победил в номинации ''Лучший экологический проект года в сфере строительства'' по версии премии Crimea Urban Awards. Почему выбирают наш комплекс: - Зеленый оазис живите среди природы в черте города.- Всё под рукой 2 детских сада, магазины, фитнес, медицина. - Безопасность: закрытая территория с видеонаблюдением. Наши квартиры: - Просторные планировки с кладовыми. - Лоджии с остеклением.- Автономное отопление: платите только за реальное потребление. - Предчистовая отделка, включает стяжку пола, без штукатурки стен. - Консьерж-сервис и подземный паркинг. Инфраструктура комплекса: - Детские и спортивные площадки. - Зоны отдыха с беседками. - Фитнес-клубы и салоны красоты. - Будущая школа на территории, уже функционируют два детских сада. Выгодные условия покупки: - Ипотека от 5,5%, военная ипотека от 5,5%. - Рассрочка. - Материнский капитал на первоначальный взнос. Квартира находится в корпусе 5_31. Дом монолитный, одноподъездный, высотой 9 этажей. В подъезде 1 грузовой лифт. Окончание строительства - 4 квартал 2026 года. Оформление сделки по договору долевого участия. #Z7lsg8
60 м2
1 / 9 этаж
Монолит
- Показать контакты
- Добавить в избранное
60 м2
1 / 9 этаж
Монолит
9 700 000
160 516 /м2
Новостройка,
IV-2026
IV-2026
