2-к, Семидворье Показать на карте
Семидворье
ЖК ''СТАХЕЕВ'' — премиальный курортный квартал в Алуште, 300 м до моря!Алушта, Южный берег Крыма в окружении гор и реликтового леса вблизи Национального парка. 300 метров до мелкогалечных пляжей с кристально чистой водой. Современные квартиры с видом на море и панорамными террасами.Архитектура в стиле Ривьеры, вдохновлённая природой Крыма.''СТАХЕЕВ'' квартал, который живет по законам пятизвездочного курорта - это Ваш идеальный отдых в любое время года. Инфраструктура 5 на территории:????Инфинити-бассейны с подогревом и джакузипанорамный SPA и медцентр восстановления????Фитнес-зал, вертикальный паркЛаунж-зоны, рестораны, магазиныДетские и спортивные площадкиBBQ-зоны и зоны отдыхаПобедитель Urban Awards 2024 — лучший комплекс на побережье!Прогнозная доходность свыше 20% годовых Пассивный доход: сдача в управление Документы: ФЗ-214, эскроу-счетаСдача — 3 квартал 2028 годаПервоначальный взнос - 30%. Остаток - равными поквартальными платежами до IV квартала 2027 года!Звоните — вышлем планировки, цены и условия!
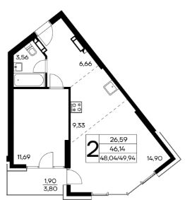
41 м2
1 / 4 этаж
Кирпич - монолит
- Показать контакты
- Добавить в избранное
41 м2
1 / 4 этаж
Кирпич - монолит
17 922 980
432 400 /м2
Новостройка,
III-2028
III-2028
