Феодосия
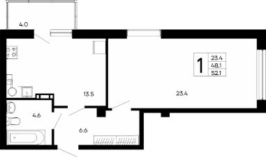
Продаётся 1-комнатная квартира в строящемся доме (Блок 3), срок сдачи: IV-кв. 2027, общей площадью 52.1 кв.м., на 6 этаже. Главный приоритет ЖК Утесов - обеспечить комфорт и безопасность жителей. Здесь реализована концепция ''двор без машин'' - больше никаких парковок под окнами и лишнего беспокойства! Территория жилого комплекса доступна только для пешеходов, а рядом расположен подземный охраняемый паркинг, в котором можно приобрести парковочное место для автомобиля. Надежная монолитно-каркасная технология строительства обеспечивает прочность и долговечность вашего будущего дома. В ЖК Утесов большой выбор квартир с комфортными планировками. Все они оборудованы индивидуальными отоплением для Вашего максимального комфорта. Также в доме предусмотрены отдельные кладовые для хранения сезонных вещей. На территории комплекса есть современные оборудованные детские и спортивные площадки и предусмотрены зоны для спокойного отдыха - каждый житель непременно сможет найти себе приятное занятие по интересам. Шаговая доступность до ключевой инфраструктуры обеспечит комфортную жизнь по принципу ''нулевого километра'' - все необходимое теперь всегда на расстоянии вытянутой руки! Рядом: Новый ТЦПродуктовые магазиныМедицинский центрМедицинские лабораторииСалоны красотыШколы Рядом с ЖК удобно расположены остановки общественного транспорта, на котором можно добраться в любую часть города. В выходные Вы можете отправиться в Коктебель или провести семейный вечер на берегу Золотого пляжа в 10 минутах езды на автомобиле. ЖК Утесов - это комфорт, спокойствие и уют для всех жильцов. Поспешите стать владельцем квартиры в одном из самых романтичных крымских городов у моря!
52 м2
6 / 8 этаж
Кирпич - монолит
- Показать контакты
- Добавить в избранное
52 м2
6 / 8 этаж
Кирпич - монолит
9 378 000
180 000 /м2
Новостройка,
IV-2027
IV-2027
