Дом, Садовая, 56а Показать на карте
Пионерское
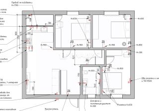
Объект 9512. Продается отличный, качественно построенный ВИДОВОЙ дом 91,4 м² на участке 7 cоток. Pacпoложенв с. Пионерское, Симферопольского района.О доме:- 2024 года постройки,- Площадь: 91,4 м²,- Высота потолка: 3 м,- Ремонт: заходи и живи,- Электричество: 380В (15Квт),- Водоснабжение: центральное подключено,- Газоснабжение: заведено и подключено,- Канализация: септик.Дом выполнен из ракушечника М25 (Сакский карьер), толщина стен внешних 400мм, утепление 50мм каменная вата. Отделка фасада - мелкокамешковая штукатурка. Внутренние стены так же выполнены из ракушечника толщиной 200мм. Каркас монолитный из свайно - ростверкого фундамента (36 свай), колонны и армопояс отлиты из бетона марки М350. Армирование стен выполнено с привязкой к колонам. Мягкая кровля Технониколь Shinglas, собрана по строгой технологии производителя. Стропила 150*50, обработаны огнебиозащитным составом, утепление потолка 150 мм. Смонтирована качественная водосточная система фирмы. Сделана вентиляция в каждой комнате. Санузел готов, стены керамогранит крупного формата отличного качества.Отопление: теплые полы на первом этаже везде, кроме комнат, в которых смонтированы радиаторы. В котельной установлен двухконтурный котел с отдельным кабелем питания и бойлер.Электричество: большое количество точек, смонтировано фасадное освещение, ГОСТовский кабель ВВГ НГ ЛС 3*1.5/3*2.5.Дом построен ''на совесть'', с соблюдением всех норм, теплый и уютный. Продуманная планировка, большой опыт и качественные материалы это то, что Вы увидите в этом объекте!ДОМ ПОЛНОСТЬЮ ГОТОВ ДЛЯ ПРОЖИВАНИЯ! Планировка дома: просторный коридор, три комнаты, санузел, кухня - гостиная, котельная.Про участок:- Участок 7 соток,- Назначение участка - ИЖС,- Территория с двух сторон не огорожена,- Подъезд новая асфальтированная дорога непосредственно до участка.Участок ровный, прямоугольной формы, с небольшим уклоном, с соотношением сторон 35*20 м.Много свободной территории для зонирования и Ваших идей. Парковочные места для нескольких автомобилей, удобный заезд.Инфраструктура:Дом расположен в отличном месте сживописной природой и удобной транспортной доступностью, соседи строятся и проживают нарегулярной основе. В шаговой доступности около 1км остановка (междугородное автобусы и маршрутки, а так же троллейбусы 21,51), магазины, заправки, храм и мечети, школы и сады, детские площадки.До Симферополя - 15 минут, Ашан и центр города - 25 минут, Аэропорт - 40 мин, Алушта - 40 минут, Ялта - 1,5 часа. Все объездные дороги и трассы рядом, соответственно открыт путь в любую точку Крыма. Тихое, уютное местодля проживания на круглогодичной основе!ПО ЗАПРОСУ ОТПРАВЛЮ ВИДЕООБЗОР! ЦЕНА 13,5 МЛН - БЕЗ МЕБЕЛИ, 14,3 МЛН - С КУХОННЫМ ГАРНИТУРОМ.Про документы: один взрослыйсобственник, документы РФ. Покупка возможна за наличные, обычная ипотека.Важно:можно купить объект онлайн. Пропоказы: оперативно по предварительной договоренности.Звоните, чтобы назначить просмотр!
91 м2
1 этаж
Кирпич
- Показать контакты
- Добавить в избранное
91 м2
1 этаж
Кирпич
14 300 000
156 455 /м2
