4-к, Комарова, 18 Показать на карте
Керчь
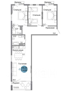
Код объекта: 1868766.Продается 4-к. квартира в частном секторе в ЦЕНТРЕ города! В центральной части города, в престижном районе частного сектора (р-н Паспортного стола), продается просторна 4к квартира на земле. Удобное расположение: Тихий частный сектор, но в самом центре все инфраструктуры рядом. Земельный участок: Возможность завести огород, разбить сад или просто отдыхать на своей земле. На участке уже растет плодоносный гранат. Общий вход во двор, но есть возможность сделать полностью отдельный, собственный вход — вы получите изолированное жилье. Вода, свет, канализация уже подведены. Также имеется техническая возможность подключения газа для комфортного круглогодичного проживанияКвартира отлично подходит для семейного проживания или для тех, кто хочет жить в центре в своем доме (по сути, это отдельный мини-дом на земле).Любые вопросы и детали по телефону. Звоните, чтобы договориться и посмотреть на объект лично.
49 м2
1 / 1 этаж
Кирпич
- Показать контакты
- Добавить в избранное
49 м2
1 / 1 этаж
Кирпич
4 200 000
85 020 /м2
