logo
N1.RU — новая улучшенная версия Е1.Недвижимость
Чтобы вернуться на старый сайт Е1.Недвижимость, перейдите по ссылке в нижней части сайта N1.RU
  • Продажа
  • Аренда
  • Новостройки
  • Журнал
  • Компании
  • Шаблоны документов
  • Налоговый вычет
  • Еще
  • Личный кабинет
    • Регистрация на Циан
    • Симферополь
  • Добавить объявление
Тип недвижимости
Симферополь
Начните вводить или выберите объект в выпадающем списке
  • Район и микрорайон
Количество комнат
Цена
  1. Недвижимость в Симферополе
  2. Продажа
  3. Квартиры
  4. 4302 объявления

Продажа двухкомнатных квартир в Симферополе

  • Новостройки2 623
  • Вторичка1 679
  • Без посредников149
За все время
Сортировка по умолчанию
СпискомСписком
ТаблицейТаблицей
На картеНа карте
Открыть поиск по карте

По вашему запросу объявлений не найдено

1/5
2-к, Севастопольская, 41 Показать на карте
Центральный
Симферополь
Продаётся 2-комнатная квартира в строящемся доме (Корпус 1), срок сдачи: III-кв. 2026, общей площадью 79.3 кв.м., на 2 этаже. Клубный дом ''Моне'' от группы компаний ''ИнтерСтрой'' Образ клубного дома ''Моне'' в сердце крымской столицы вдохновлен творчеством гениального основоположника импрессионизма, живописца Клода Моне. Будучи необычайно талантливым художником, он работал в особом стиле, главная цель которого передать впечатление, характер, атмосферу... Локация клубного дома ''Моне'' - удивительна. Рядом находится живописное озеро. Прогулки здесь позволят резидентам насладиться красотой природы, расслабиться, вдохновиться прекрасными пейзажами, словно сошедшими с картин Клода Моне. Клубный дом ''Моне'' отличается многофункциональностью, стильным архитектурным обликом. Он станет архитектурной доминантой города и его украшением. Объект имеет великолепное расположение - это центральная часть столицы Крыма, где есть абсолютно вся инфраструктура. Монолитно-каркасный 16-этажный дом выполнен в современном стиле. Фасад из керамогранита светлых тонов с витражными системами остекления подчеркивает непринуждённый и гармоничный внешний вид здания. В клубном доме комфорт-класса представлены наиболее востребованные планировки квартир: - компактные студии от 34,9 м - универсальные однокомнатные от 38,9 м - удобные двухкомнатные от 64,6 м - просторные трёхкомнатные - 87,7 м Из окон откроются панорамные виды на городские пейзажи, парковую зону, озеро. Дом отделен от окружающей застройки стилобатной частью, что вместе с небольшим количеством квартир и локацией у озера, создает особенную атмосферу и обеспечивает оазис спокойствия загородного дома в самой центральной части города... - закрытая территория - приватность, безопасность и Ваш комфорт - охраняемый паркинг, в котором жильцы могут приобрести машиноместо для своего автомобиля - места для мототранспорта, велосипедов и самокатов - современная спортивная площадка - яркая детская игровая зона - дизайнерские холлы - система умный дом - уютный, благоустроенный двор - ландшафтное озеленение территории На первом этаже предусмотрены встроенные коммерческие помещения. В шаговой доступности находится всё необходимое для комфортной жизни: - остановки общественного транспорта и отделения банков - два торговых центра, супермаркеты, магазины, кафе, и кинотеатр - фермерские лавки - детские сады и школы - аптеки и медицинский центр - спортивная школа - досуговый клуб - конный клуб - парк имени Тренева Объект расположен в центральном районе города с великолепной транспортной развязкой. От клубного дома ''Моне'' удобно добираться как в центральную часть, так и на выезд из города.
79 м2
2 / 16 этаж
Монолит
  • Показать контакты
  • Добавить в избранное
79 м2
2 / 16 этаж
Монолит
14 353 300 
181 000 /м2
Новостройка,
III-2026
1/5
2-к, Ялта 
Ялта
Продаётся 2-комнатная квартира в строящемся доме (Дом 1), срок сдачи: IV-кв. 2027, общей площадью 71.73 кв.м., на 18 этаже. Новый жилой комплекс ''Ай-Петри'' от застройщика ''Интерстрой'' расположен по адресу Республика Крым, Ялта, улица Кирова
71 м2
18 / 19 этаж
Монолит
  • Показать контакты
  • Добавить в избранное
71 м2
18 / 19 этаж
Монолит
17 958 660 
250 365 /м2
Новостройка,
IV-2027
1/15
2-к, Олимпийская, 2 корп. 2 Показать на карте
Заозерное
Продаётся 2-комнатная квартира в сданном доме (Корпус 2), срок сдачи: III-кв. 2025, общей площадью 52.41 кв.м., на 2 этаже. Новый жилой комплекс ''Кубики'' от застройщика ''ИнтерСтрой'' расположен по адресу: Россия, Республика Крым, городской округ Евпатория, посёлок городского типа Заозёрное, Олимпийская улица, 2
52 м2
2 / 4 этаж
Монолит
  • Показать контакты
  • Добавить в избранное
52 м2
2 / 4 этаж
Монолит
14 727 210 
281 000 /м2
Новостройка,
дом сдан
1/6
2-к, Багликова, 27 корп. 7 Показать на карте
Алушта
Продаётся 2-комнатная квартира в сданном доме (Багликова, 27/8 (Корпус 8)), срок сдачи: I-кв. 2026, общей площадью 58.25 кв.м., на 2 этаже. Жилой комплекс ''На Фонтанке'' в городе Алушта на улице Багликова.
58 м2
2 / 8 этаж
  • Показать контакты
  • Добавить в избранное
58 м2
2 / 8 этаж
17 097 390 
293 517 /м2
Новостройка,
дом сдан
1/15
2-к, Олимпийская, 2 корп. 2 Показать на карте
Заозерное
Продаётся 2-комнатная квартира в сданном доме (Корпус 2), срок сдачи: III-кв. 2025, общей площадью 52.41 кв.м., на 2 этаже. Новый жилой комплекс ''Кубики'' от застройщика ''ИнтерСтрой'' расположен по адресу: Россия, Республика Крым, городской округ Евпатория, посёлок городского типа Заозёрное, Олимпийская улица, 2
52 м2
2 / 4 этаж
Монолит
  • Показать контакты
  • Добавить в избранное
52 м2
2 / 4 этаж
Монолит
14 727 210 
281 000 /м2
Новостройка,
дом сдан
1/18
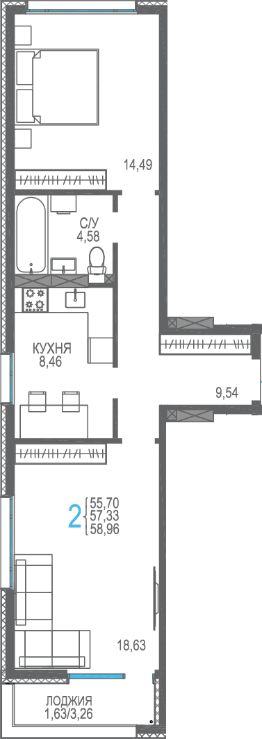
2-к, Прибрежное Показать на карте
Прибрежное
Продаётся 2-комнатная квартира в сданном доме (Секция 2), срок сдачи: IV-кв. 2024, общей площадью 58.96 кв.м., на 3 этаже. Жилой комплекс Розовое озеро расположен на западном побережье Крыма между городами Саки и Евпатория и входит в состав курортного комплекса Прибрежный. Экологически чистое место находится на косе между Чёрным морем и розовым озером Сасык-Сиваш в непосредственной близости к Сакским лечебным грязевым лиманам. Проект включает в себя современные квартиры в ЖК Розовое озеро и комплекс апартаментов Ола-апарт в прибрежной зоне с полным спектром курортной инфраструктуры. КОМФОРТНЫЕ ОБЩЕСТВЕННЫЕ ЗОНЫ ОТДЫХА Внутренние пространства дворов ЖК приватны и безопасны. Можно с комфортом провести время в тенистых беседках или прогуляться по променадной площади с фонтаном. Мы позаботились и о наших маленьких жильцах, специально для них будут построены современные игровые комплексы. Уличный стрит-ритейл насыщает жизнь в жилом комплексе в течение дня. Кафе и рестораны могут размещать посадочные места вдоль фасадов, привлекая посетителей. Благоустройство является важным элементом комфортной среды для отдыха, поэтому в ЖК предусмотрено комплексное озеленение. АРХИТЕКТУРНАЯ КОНЦЕПЦИЯ Сочетание разных типов фасадов и переменная этажность зданий создают уникальный образ каждой улицы. Остекление выполнено в алюминиевом профиле. Квартальная застройка комплекса защищает внутренние дворы от случайных гостей и делает их более уютными. Став резидентом КК Прибрежный, Вы приобретаете не просто ''квадратные метры'', а особый образ жизни.
58 м2
3 / 8 этаж
  • Показать контакты
  • Добавить в избранное
58 м2
3 / 8 этаж
11 497 200 
195 000 /м2
Новостройка,
дом сдан
1/6
2-к, Багликова, 27 корп. 7 Показать на карте
Алушта
Продаётся 2-комнатная квартира в сданном доме (Багликова, 27/8 (Корпус 8)), срок сдачи: I-кв. 2026, общей площадью 58.25 кв.м., на 2 этаже. Жилой комплекс ''На Фонтанке'' в городе Алушта на улице Багликова.
58 м2
2 / 8 этаж
  • Показать контакты
  • Добавить в избранное
58 м2
2 / 8 этаж
17 097 390 
293 517 /м2
Новостройка,
дом сдан
1/13
2-к, Ялта 
Ялта
Продаётся 2-комнатная квартира в сданном доме (Бакунинский проезд, 13 (Дом 1)), срок сдачи: II-кв. 2025, общей площадью 68.49 кв.м., на 14 этаже. Жилой комплекс ''Бакунинский'' в городе Ялта Республики Крым на улице Бакунинский проезд.
68 м2
14 / 16 этаж
Монолит
  • Показать контакты
  • Добавить в избранное
68 м2
14 / 16 этаж
Монолит
17 500 000 
255 512 /м2
Новостройка,
дом сдан
1/4
2-к, Судак 
Судак
Продаётся 2-комнатная квартира в строящемся доме (Дом 1), срок сдачи: IV-кв. 2028, общей площадью 51.41 кв.м., на 3 этаже. ''Новый Судак'' - кластер в Кварцевой долине Энергия кварца. Спокойствие гор. Ритм моря. Здесь начинается другая жизнь - спокойная, осознанная, наполненная светом, воздухом и внутренним равновесием. ''Новый Судак'' - первый в Судаке прогрессивный кластер, созданный для резидентов, которые ценят свой ритм, выбирают эстетику пространства и гармонию с природой.
51 м2
3 / 9 этаж
Кирпич - монолит
  • Показать контакты
  • Добавить в избранное
51 м2
3 / 9 этаж
Кирпич - монолит
10 343 460 
201 000 /м2
Новостройка,
IV-2028
1/4
2-к, Евпатория 
Евпатория
Продаётся 2-комнатная квартира в строящемся доме (Дом 2), срок сдачи: IV-кв. 2028, общей площадью 56.94 кв.м., на 7 этаже. Новый жилой комплекс ''Сезоны'' от застройщика ''ИнтерСтрой'' расположен по адресу: Республика Крым, Евпатория, проспект Победы
56 м2
7 / 8 этаж
  • Показать контакты
  • Добавить в избранное
56 м2
7 / 8 этаж
9 679 800 
170 000 /м2
Новостройка,
IV-2028
1/5
2-к, Ялта 
Ялта
Продаётся 2-комнатная квартира в строящемся доме (Дом 1), срок сдачи: IV-кв. 2027, общей площадью 71.73 кв.м., на 19 этаже. Новый жилой комплекс ''Ай-Петри'' от застройщика ''Интерстрой'' расположен по адресу Республика Крым, Ялта, улица Кирова
71 м2
19 / 19 этаж
Монолит
  • Показать контакты
  • Добавить в избранное
71 м2
19 / 19 этаж
Монолит
18 317 310 
255 365 /м2
Новостройка,
IV-2027
1/16
2-к квартира 
Киевский
Симферополь
Жилой комплекс 'Клевер 3.0' — это современное пространство для жизни, где сочетаются стиль, удобство и продуманная инфраструктура. Удачное расположение возле Объездной обеспечивает отличную транспортную доступность без пробок.Проект включает в себя две элегантные 16-этажные башни в стиле европейского модернизма, объединённые уютным закрытым двором и большим мультимодальным пространством для отдыха, игр и спорта на стилобате.Доступны планировки от однокомнатных до трехкомнатных квартир, с кухнями-гостиными, гостевыми санузлами и т.д. Отделка квартир - предчистовая, выполняется дополнительная шумоизоляция всех помещений. Забронируйте квартиру уже сегодня — выберите качество, комфорт и уверенность в будущем!Архитектура ЖК 'Клевер 3.0' отличается яркой современной архитектурой, дополняя эстетику ЖК 'Клевер' и 'Клевер 2.0' по соседству, и формируя единую экосистему района. Внутри - уютное лобби с авторским дизайном, колясочными и гостевыми санузлами. Благоустройство Двор Клевер 3.0 - это закрытое пространство площадью более 4 000 м2 как для активного, так и для спокойного отдыха жителей всех возрастов. Зеленые холмы, батуты, тренажеры, качели, прогулочные и велодорожки, богатое разнообразие зелени, зона барбекю - всё для того, чтобы наслаждаться отдыхом в своем дворе. Дополнительная безопасность - видеонаблюдение 24/7.Окружение и досуг Предусмотрен собственный стрит-ритейл непосредственно у дома, также доступна новая инфраструктура города по соседству: торговый центр и супермаркеты, салоны красоты, кафе и рестораны, бытовые сервисы и банки, спортивные залы, детские сады.Паркинг Для жителей будет доступен двухуровневый подземный паркинг. Возможна покупка в ипотеку на выгодных условиях. Записывайтесь на экскурсию!
55 м2
7 / 16 этаж
  • Показать контакты
  • Добавить в избранное
55 м2
7 / 16 этаж
9 001 120 
161 600 /м2
Новостройка,
II-2028
1/4
2-к, Судак 
Судак
Продаётся 2-комнатная квартира в строящемся доме (Дом 1), срок сдачи: IV-кв. 2028, общей площадью 51.2 кв.м., на 9 этаже. ''Новый Судак'' - кластер в Кварцевой долине Энергия кварца. Спокойствие гор. Ритм моря. Здесь начинается другая жизнь - спокойная, осознанная, наполненная светом, воздухом и внутренним равновесием. ''Новый Судак'' - первый в Судаке прогрессивный кластер, созданный для резидентов, которые ценят свой ритм, выбирают эстетику пространства и гармонию с природой.
51 м2
9 / 9 этаж
  • Показать контакты
  • Добавить в избранное
51 м2
9 / 9 этаж
10 598 400 
207 000 /м2
Новостройка,
IV-2028
1/5
2-к, Севастопольская, 41 Показать на карте
Центральный
Симферополь
Продаётся 2-комнатная квартира в строящемся доме (Корпус 1), срок сдачи: III-кв. 2026, общей площадью 79.1 кв.м., на 9 этаже. Клубный дом ''Моне'' от группы компаний ''ИнтерСтрой'' Образ клубного дома ''Моне'' в сердце крымской столицы вдохновлен творчеством гениального основоположника импрессионизма, живописца Клода Моне. Будучи необычайно талантливым художником, он работал в особом стиле, главная цель которого передать впечатление, характер, атмосферу... Локация клубного дома ''Моне'' - удивительна. Рядом находится живописное озеро. Прогулки здесь позволят резидентам насладиться красотой природы, расслабиться, вдохновиться прекрасными пейзажами, словно сошедшими с картин Клода Моне. Клубный дом ''Моне'' отличается многофункциональностью, стильным архитектурным обликом. Он станет архитектурной доминантой города и его украшением. Объект имеет великолепное расположение - это центральная часть столицы Крыма, где есть абсолютно вся инфраструктура. Монолитно-каркасный 16-этажный дом выполнен в современном стиле. Фасад из керамогранита светлых тонов с витражными системами остекления подчеркивает непринуждённый и гармоничный внешний вид здания. В клубном доме комфорт-класса представлены наиболее востребованные планировки квартир: - компактные студии от 34,9 м - универсальные однокомнатные от 38,9 м - удобные двухкомнатные от 64,6 м - просторные трёхкомнатные - 87,7 м Из окон откроются панорамные виды на городские пейзажи, парковую зону, озеро. Дом отделен от окружающей застройки стилобатной частью, что вместе с небольшим количеством квартир и локацией у озера, создает особенную атмосферу и обеспечивает оазис спокойствия загородного дома в самой центральной части города... - закрытая территория - приватность, безопасность и Ваш комфорт - охраняемый паркинг, в котором жильцы могут приобрести машиноместо для своего автомобиля - места для мототранспорта, велосипедов и самокатов - современная спортивная площадка - яркая детская игровая зона - дизайнерские холлы - система умный дом - уютный, благоустроенный двор - ландшафтное озеленение территории На первом этаже предусмотрены встроенные коммерческие помещения. В шаговой доступности находится всё необходимое для комфортной жизни: - остановки общественного транспорта и отделения банков - два торговых центра, супермаркеты, магазины, кафе, и кинотеатр - фермерские лавки - детские сады и школы - аптеки и медицинский центр - спортивная школа - досуговый клуб - конный клуб - парк имени Тренева Объект расположен в центральном районе города с великолепной транспортной развязкой. От клубного дома ''Моне'' удобно добираться как в центральную часть, так и на выезд из города.
79 м2
9 / 16 этаж
Монолит
  • Показать контакты
  • Добавить в избранное
79 м2
9 / 16 этаж
Монолит
15 067 000 
190 000 /м2
Новостройка,
III-2026
1/5
2-к, Севастопольская, 41 Показать на карте
Центральный
Симферополь
Продаётся 2-комнатная квартира в строящемся доме (Корпус 1), срок сдачи: III-кв. 2026, общей площадью 79.3 кв.м., на 4 этаже. Клубный дом ''Моне'' от группы компаний ''ИнтерСтрой'' Образ клубного дома ''Моне'' в сердце крымской столицы вдохновлен творчеством гениального основоположника импрессионизма, живописца Клода Моне. Будучи необычайно талантливым художником, он работал в особом стиле, главная цель которого передать впечатление, характер, атмосферу... Локация клубного дома ''Моне'' - удивительна. Рядом находится живописное озеро. Прогулки здесь позволят резидентам насладиться красотой природы, расслабиться, вдохновиться прекрасными пейзажами, словно сошедшими с картин Клода Моне. Клубный дом ''Моне'' отличается многофункциональностью, стильным архитектурным обликом. Он станет архитектурной доминантой города и его украшением. Объект имеет великолепное расположение - это центральная часть столицы Крыма, где есть абсолютно вся инфраструктура. Монолитно-каркасный 16-этажный дом выполнен в современном стиле. Фасад из керамогранита светлых тонов с витражными системами остекления подчеркивает непринуждённый и гармоничный внешний вид здания. В клубном доме комфорт-класса представлены наиболее востребованные планировки квартир: - компактные студии от 34,9 м - универсальные однокомнатные от 38,9 м - удобные двухкомнатные от 64,6 м - просторные трёхкомнатные - 87,7 м Из окон откроются панорамные виды на городские пейзажи, парковую зону, озеро. Дом отделен от окружающей застройки стилобатной частью, что вместе с небольшим количеством квартир и локацией у озера, создает особенную атмосферу и обеспечивает оазис спокойствия загородного дома в самой центральной части города... - закрытая территория - приватность, безопасность и Ваш комфорт - охраняемый паркинг, в котором жильцы могут приобрести машиноместо для своего автомобиля - места для мототранспорта, велосипедов и самокатов - современная спортивная площадка - яркая детская игровая зона - дизайнерские холлы - система умный дом - уютный, благоустроенный двор - ландшафтное озеленение территории На первом этаже предусмотрены встроенные коммерческие помещения. В шаговой доступности находится всё необходимое для комфортной жизни: - остановки общественного транспорта и отделения банков - два торговых центра, супермаркеты, магазины, кафе, и кинотеатр - фермерские лавки - детские сады и школы - аптеки и медицинский центр - спортивная школа - досуговый клуб - конный клуб - парк имени Тренева Объект расположен в центральном районе города с великолепной транспортной развязкой. От клубного дома ''Моне'' удобно добираться как в центральную часть, так и на выезд из города.
79 м2
4 / 16 этаж
Монолит
  • Показать контакты
  • Добавить в избранное
79 м2
4 / 16 этаж
Монолит
14 353 300 
181 000 /м2
Новостройка,
III-2026
1/4
2-к, 51-й Армии, 126 Показать на карте
Киевский
Симферополь
Продаётся 2-комнатная квартира в строящемся доме (Дом 124 (2 этап)), срок сдачи: IV-кв. 2027, общей площадью 54.5 кв.м., на 8 этаже. ЖК ''БОТАНИКА'' - это новый объект в тихом центре Симферополя. Комфорт проживания и развитая инфраструктура идеально сочетаются с прекрасной экологией и спокойным ритмом микрорайона. ПРОСТРАНСТВО ДЛЯ ЖИЗНИ В основе проекта лежит разумный подход к организации пространства внутри дома и за его пределами. Планировки в ЖК ''Ботаника'' органичны и удобны. Проектом предусмотрены одно- и двухкомнатные квартиры с остекленными балконами и лоджиями. Внутренняя среда комплекса организована по всем современным стандартам. Во дворе появятся спортивные и игровые площадки с новейшим оборудованием, зоны отдыха и озеленения. ИНФРАСТРУКТУРА На территории района расположены учреждения образования, клиническая больница, крупный рынок, торговые объекты, банки, салоны красоты и фитнес- центры. Удобная дорожная развязка и развитая сеть городских маршрутов позволяет за считанные минуты добраться в любую часть города (ж/д и автовокзала, выставочных залов, бизнес-объектов, центральных улиц и площадей) на любом виде транспорта. ЭКОЛОГИЯ КРЫМА Для прогулочных маршрутов жителей ''Ботаники'' доступны излюбленные места отдыха симферопольцев: Гагаринский парк с Чистыми прудами, Ботанический сад Таврического университета, детский парк с уникальными старыми деревьями, мини-зоопарком, юношеской обсерваторией, развивающими кружками. Доступность природных объектов и проживание в самом крупном развитом районе Симферополя делают комплекс ''Ботаника'' идеальным выбором для тех, кто ищет баланс между неповторимой крымской экологией и городским комфортом.
54 м2
8 / 9 этаж
  • Показать контакты
  • Добавить в избранное
54 м2
8 / 9 этаж
10 191 500 
187 000 /м2
Новостройка,
IV-2027
1/8
2-к, Виноградная, 101 ст1 Показать на карте
Ливадия
САМОЕ ВЫГОДНОЕ ПРЕДЛОЖЕНИЕ С ЛУЧШИМ ВИДОМ15 250 000 рубУспеваем забронировать до поднятия цены !!! Вид о котором вы мечтали:Море, Горы, Ялта, Парк Самая комфортная Юго-Восточная сторона Идеальная планировка Панорамный 19эт 55м² Шикарный балкон для релаксаВозможность создать авторский интерьер премиум-класса Идеальная инфраструктура: крупнейший в Ялте закрытый бассейн 50кв м открытый бассейн и SРА-центр 400 м² спортивный зал детская игровая комната рестораны, кафе и лаунжи прогулочные зоны до пляжа — 3 минуты пешком. до Приморского парка — 10 минут вдоль моря. до Набережной Ленина — 20 минутКомфорт и безопасность • закрытая охраняемая территория• подземный и свободный паркинг• видеонаблюдение Прекрасно подходит: для комфортного отдыха у моря для повседневной жизни, как в мечтах как инвестиция, с высоком ростом цены для сдачи в аренду
55 м2
19 / 20 этаж
Монолит
  • Показать контакты
  • Добавить в избранное
55 м2
19 / 20 этаж
Монолит
15 250 000 
275 271 /м2
1/16
2-к квартира 
Киевский
Симферополь
Жилой комплекс 'Клевер 3.0' — это современное пространство для жизни, где сочетаются стиль, удобство и продуманная инфраструктура. Удачное расположение возле Объездной обеспечивает отличную транспортную доступность без пробок.Проект включает в себя две элегантные 16-этажные башни в стиле европейского модернизма, объединённые уютным закрытым двором и большим мультимодальным пространством для отдыха, игр и спорта на стилобате.Доступны планировки от однокомнатных до трехкомнатных квартир, с кухнями-гостиными, гостевыми санузлами и т.д. Отделка квартир - предчистовая, выполняется дополнительная шумоизоляция всех помещений. Забронируйте квартиру уже сегодня — выберите качество, комфорт и уверенность в будущем!Архитектура ЖК 'Клевер 3.0' отличается яркой современной архитектурой, дополняя эстетику ЖК 'Клевер' и 'Клевер 2.0' по соседству, и формируя единую экосистему района. Внутри - уютное лобби с авторским дизайном, колясочными и гостевыми санузлами. Благоустройство Двор Клевер 3.0 - это закрытое пространство площадью более 4 000 м2 как для активного, так и для спокойного отдыха жителей всех возрастов. Зеленые холмы, батуты, тренажеры, качели, прогулочные и велодорожки, богатое разнообразие зелени, зона барбекю - всё для того, чтобы наслаждаться отдыхом в своем дворе. Дополнительная безопасность - видеонаблюдение 24/7.Окружение и досуг Предусмотрен собственный стрит-ритейл непосредственно у дома, также доступна новая инфраструктура города по соседству: торговый центр и супермаркеты, салоны красоты, кафе и рестораны, бытовые сервисы и банки, спортивные залы, детские сады.Паркинг Для жителей будет доступен двухуровневый подземный паркинг. Возможна покупка в ипотеку на выгодных условиях. Записывайтесь на экскурсию!
55 м2
3 / 16 этаж
Кирпич - монолит
  • Показать контакты
  • Добавить в избранное
55 м2
3 / 16 этаж
Кирпич - монолит
8 952 640 
161 600 /м2
Новостройка,
II-2028
1/5
2-к, Ялта 
Ялта
Продаётся 2-комнатная квартира в строящемся доме (Дом 1), срок сдачи: IV-кв. 2027, общей площадью 71.73 кв.м., на 13 этаже. Новый жилой комплекс ''Ай-Петри'' от застройщика ''Интерстрой'' расположен по адресу Республика Крым, Ялта, улица Кирова
71 м2
13 / 19 этаж
Монолит
  • Показать контакты
  • Добавить в избранное
71 м2
13 / 19 этаж
Монолит
19 751 910 
275 365 /м2
Новостройка,
IV-2027
1/4
2-к, Евпатория 
Евпатория
Продаётся 2-комнатная квартира в строящемся доме (Дом 2), срок сдачи: IV-кв. 2028, общей площадью 56.94 кв.м., на 1 этаже. Новый жилой комплекс ''Сезоны'' от застройщика ''ИнтерСтрой'' расположен по адресу: Республика Крым, Евпатория, проспект Победы
57 м2
1 / 8 этаж
Кирпич - монолит
  • Показать контакты
  • Добавить в избранное
57 м2
1 / 8 этаж
Кирпич - монолит
9 729 100 
170 000 /м2
Новостройка,
IV-2028
1/21
2-к, Севастопольское шоссе, 6а корп. 2 Показать на карте
Алупка
Объект 10357. Квартира в жилом комплекс комфорт-класса на территории Большой Ялты, в г. Алупка с видом на Черное море и горный ландшафт вершины Ай-Петри. Цена Застройщика! Без переплат и комиссий для покупателя.Сочетание вечнозеленой растительности и целебного морского климата делают проживание и отдых приятным и полезным. Комплекс состоит из трех малоэтажных домов, паркинга и благоустроенной территории с ландшафтным дизайном. Стильные дома, безопасный двор, великолепные виды на Воронцовский парк делают ЖК одним из самых привлекательных объектов для жизни и инвестиций.Находится вблизи трех важных транспортных артерий: Южнобережное, Севастопольское и Алупкинское шоссе. Удобный выезд к Южнобережному шоссе обеспечивает превосходную мобильность жителям комплекса.Придомовая территория оборудована игровыми площадками для детей и местами отдыха с беседками. Закрытый двор без машин позволят детям безопасно проводить время на свежем воздухе. Во всех квартирах имеются большие террасы с великолепным видом на Черное море или горную местность.Квартиры сдаются с предчистовой отделкой White box. Выполнены все грязные, то есть шумные и пыльные работы в квартире: штукатурка и шпаклевка межкомнатных стен, полная разводка электричества до мест установки устройств, гидро-изоляцию ''мокрых'' зон и стяжка пола. Остается только выбрать, чем выложить пол, цвет для покраски стен и установить сантехнику.Дом сдан декабрь 2024 годПро квартиру:- Этаж/этажность 4/4- Площадь 91.8 м2- Комнаты площадью 21,1 м2 и 16,1 м2- Кухня-студия площадью 17,9 м2- С/у площадью 5,8 м2 и 2,8 м2- Коридор площадью 6,9 м2- Лоджия - 11,5 м2 и 6,9 м2- Отопление и горячая вода - Бойлер- Есть пассажирский лифт- Высота потолка 3мВозможна покупка за наличный расчет, ипотечные программы и действует рассрочка! С нами Вы получите полное юридическое сопровождение и прозрачность на всех этапах сделки. Ваши деньги и интересы под защитой!Другие планировки по запросуВы для нас Приоритетный клиент.Судовольствием расскажу подробнее и помогу приобрести квартиру по лучшимусловиям.
91 м2
4 / 4 этаж
Кирпич - монолит
  • Показать контакты
  • Добавить в избранное
91 м2
4 / 4 этаж
Кирпич - монолит
28 650 000 
312 092 /м2
Новостройка,
дом сдан
1/4
2-к, 51-й Армии, 126 Показать на карте
Киевский
Симферополь
Продаётся 2-комнатная квартира в строящемся доме (Дом 124 (2 этап)), срок сдачи: IV-кв. 2027, общей площадью 54.5 кв.м., на 8 этаже. ЖК ''БОТАНИКА'' - это новый объект в тихом центре Симферополя. Комфорт проживания и развитая инфраструктура идеально сочетаются с прекрасной экологией и спокойным ритмом микрорайона. ПРОСТРАНСТВО ДЛЯ ЖИЗНИ В основе проекта лежит разумный подход к организации пространства внутри дома и за его пределами. Планировки в ЖК ''Ботаника'' органичны и удобны. Проектом предусмотрены одно- и двухкомнатные квартиры с остекленными балконами и лоджиями. Внутренняя среда комплекса организована по всем современным стандартам. Во дворе появятся спортивные и игровые площадки с новейшим оборудованием, зоны отдыха и озеленения. ИНФРАСТРУКТУРА На территории района расположены учреждения образования, клиническая больница, крупный рынок, торговые объекты, банки, салоны красоты и фитнес- центры. Удобная дорожная развязка и развитая сеть городских маршрутов позволяет за считанные минуты добраться в любую часть города (ж/д и автовокзала, выставочных залов, бизнес-объектов, центральных улиц и площадей) на любом виде транспорта. ЭКОЛОГИЯ КРЫМА Для прогулочных маршрутов жителей ''Ботаники'' доступны излюбленные места отдыха симферопольцев: Гагаринский парк с Чистыми прудами, Ботанический сад Таврического университета, детский парк с уникальными старыми деревьями, мини-зоопарком, юношеской обсерваторией, развивающими кружками. Доступность природных объектов и проживание в самом крупном развитом районе Симферополя делают комплекс ''Ботаника'' идеальным выбором для тех, кто ищет баланс между неповторимой крымской экологией и городским комфортом.
54 м2
8 / 9 этаж
Кирпич - монолит
  • Показать контакты
  • Добавить в избранное
54 м2
8 / 9 этаж
Кирпич - монолит
10 191 500 
187 000 /м2
Новостройка,
IV-2027
1/4
2-к, Евпатория 
Евпатория
Продаётся 2-комнатная квартира в строящемся доме (Дом 2), срок сдачи: IV-кв. 2028, общей площадью 56.94 кв.м., на 8 этаже. Новый жилой комплекс ''Сезоны'' от застройщика ''ИнтерСтрой'' расположен по адресу: Республика Крым, Евпатория, проспект Победы
56 м2
8 / 8 этаж
Кирпич - монолит
  • Показать контакты
  • Добавить в избранное
56 м2
8 / 8 этаж
Кирпич - монолит
9 679 800 
170 000 /м2
Новостройка,
IV-2028
1/2
2-к, Симферопольское шоссе, 48 корп. 1 Показать на карте
Феодосия
Продаётся 2-комнатная квартира в сданном доме (Симферопольское шоссе, 48к1 (Дом 48)), срок сдачи: IV-кв. 2024, общей площадью 58 кв.м., на 4 этаже. Главный приоритет ЖК Утесов - обеспечить комфорт и безопасность жителей. Здесь реализована концепция ''двор без машин'' - больше никаких парковок под окнами и лишнего беспокойства! Территория жилого комплекса доступна только для пешеходов, а рядом расположен подземный охраняемый паркинг, в котором можно приобрести парковочное место для автомобиля. Надежная монолитно-каркасная технология строительства обеспечивает прочность и долговечность вашего будущего дома. В ЖК Утесов большой выбор квартир с комфортными планировками. Все они оборудованы индивидуальными отоплением для Вашего максимального комфорта. Также в доме предусмотрены отдельные кладовые для хранения сезонных вещей. На территории комплекса есть современные оборудованные детские и спортивные площадки и предусмотрены зоны для спокойного отдыха - каждый житель непременно сможет найти себе приятное занятие по интересам. Шаговая доступность до ключевой инфраструктуры обеспечит комфортную жизнь по принципу ''нулевого километра'' - все необходимое теперь всегда на расстоянии вытянутой руки! Рядом: Новый ТЦПродуктовые магазиныМедицинский центрМедицинские лабораторииСалоны красотыШколы Рядом с ЖК удобно расположены остановки общественного транспорта, на котором можно добраться в любую часть города. В выходные Вы можете отправиться в Коктебель или провести семейный вечер на берегу Золотого пляжа в 10 минутах езды на автомобиле. ЖК Утесов - это комфорт, спокойствие и уют для всех жильцов. Поспешите стать владельцем квартиры в одном из самых романтичных крымских городов у моря!
58 м2
4 / 8 этаж
Кирпич - монолит
  • Показать контакты
  • Добавить в избранное
58 м2
4 / 8 этаж
Кирпич - монолит
10 150 000 
175 000 /м2
Новостройка,
дом сдан
1/7
2-к, Балаклавская, 10 Показать на карте
Центральный
Симферополь
Продаётся 2-комнатная квартира в строящемся доме (Дом 2), срок сдачи: II-кв. 2026, общей площадью 67.3 кв.м., на 8 этаже. ЖК Поэма - это территория вдохновения и творческих идейЗдесь Вы ощутите внутреннюю свободу, простор для новых планов и реализации возможностей, став автором своей собственной поэмы.Объект комфорт-класса великолепно расположен в центре Симферополя на улице Трубаченко. Два монолитно-каркасных дома возводятся в сдержанном, изысканном стиле, сочетая в себе эстетику и надёжность.Большие площади остекления подчёркивают современную архитектуру здания. Собственная крышная котельная и актуальные технические решения обеспечат будущим собственникам исключительный комфорт.Территория дома благоустроена по самым актуальным стандартам:закрытый дворвидеодомофоны с функцией распознавания лицпомещение для размещения консьерж-сервиса, который позаботится о комфорте, безопасности проживающих, уюте и чистотеландшафтное озеленение с редкими видами растений и системой автополивадетская площадка с инновационным оборудованиемсовременный воркаут и зона для занятий йогойlounge - зона с гамакамихоллы с ремонтом по индивидуальному дизайнерскому проектуместа для стоянки велосипедов и колясок (во дворе)система видеонаблюдениявыделенная зона для парковки транспортных средств площадью более 2200 кв. м. с возможностью выезда на ул. Трубаченко и ул. Крымских Партизан.В жилом комплексе Поэма Вы сможете наслаждаться потрясающими видами на город, живописными рассветами и незабываемыми закатами прямо из окна своей квартиры.Локация объекта привлекает также и развитой инфраструктурой. Это район с транспортной доступностью по всем направлениям. Поблизости расположены супермаркеты, торговые центры, банки, детские сады и школы, спортивный клуб, аптеки, химчистка, кафе и рестораны.В нескольких минутах ходьбы парк им. Шевченко - один из старейших в Симферополе. Это любимое место отдыха для многих поколений, где приятно проводить время в гармонии с природой.Жилой комплекс Поэма - свободный ритм, достижимая высота.
67 м2
8 / 16 этаж
Кирпич - монолит
  • Показать контакты
  • Добавить в избранное
67 м2
8 / 16 этаж
Кирпич - монолит
10 693 970 
158 900 /м2
Новостройка,
II-2026
  • 1
  • 2
  • 3
  • 4
  • 5
  • Следующая
Распечатать
Продажа двухкомнатных квартир в Симферополе
  • по районам
  • Железнодорожный
  • Киевский
  • Центральный

Вместе с этим также ищут:

Продажа квартир в Симферополе Продажа однокомнатных квартир в Симферополе Продажа комнат в Симферополе Продажа гаражей в Симферополе Продажа вторички - квартиры в Симферополе Квартиры в новостройках в Симферополе

🏠 Как купить двухкомнатную квартиру в Симферополе на N1?

  • ✔ В поисках объявления о продаже или покупке квартир в Симферополе?
  • ✔ На N1 размещены 4,30 тыс квартир
  • ✔ Чтобы купить или продать недвижимость, воспользуйтесь формой поиска, фильтрами или быстрыми ссылками.

💸 Сколько стоит двухкомнатная квартира в Симферополе?

  • 🟢 Средняя цена продажи двухкомнатных квартир - 15,87 млн ₽
  • 🟢 Минимальная стоимость за 1 м2: 254,98 тыс ₽

📚 Какая площадь двухкомнатных квартир?

  • Наибольшая площадь: 337 м²
  • Минимальная площадь: 20 м²