logo
N1.RU — новая улучшенная версия Е1.Недвижимость
Чтобы вернуться на старый сайт Е1.Недвижимость, перейдите по ссылке в нижней части сайта N1.RU
  • Продажа
  • Аренда
  • Новостройки
  • Журнал
  • Компании
  • Шаблоны документов
  • Налоговый вычет
  • Еще
  • Личный кабинет
    • Регистрация на Циан
    • Симферополь
  • Добавить объявление
Тип недвижимости
Квартиры
Комнаты
Дома, коттеджи
Коммерческая
Дачи, садовые участки
Земля
Гаражи, парковки
Симферополь
Начните вводить или выберите объект в выпадающем списке
  • Район и микрорайон
Количество комнат
Цена
  1. Недвижимость в Симферополе
  2. Продажа
  3. Квартиры
  4. 25 объявлений

Продажа двухкомнатных квартир в Симферополе

Подписаться на новые объявления
За все время
За все время
Сортировка по умолчанию
Сортировка по умолчанию
СпискомСписком
ТаблицейТаблицей
На картеНа карте
Открыть поиск по карте

По вашему запросу объявлений не найдено

Подпишитесь на новые объявления с выбранными параметрами
1/14
2-к, Челнокова, 98 Показать на карте
Феодосия
Объект 2756. Продаю двухкомнатную квартиру площадью 50,8 кв. м. Жилая площадь — 34 кв. м, кухня — 10 кв. м. Квартира находится на втором этаже пятиэтажного блочного дома, построенного в 1989 году. Есть балкон и лоджия. Отопление газовое, ремонт обычный, санузел раздельный.Район тихий и спокойный, идеально подходит для жизни. В шаговой доступности школы, детские сады, рынок, магазины и супермаркеты.Квартира на две стороны, с автономным газовым отоплением (АОГВ). Просторные изолированные комнаты по чешскому проекту удобны для семьи. Всё готово к проживанию.Некоторые предложения нашего агентства не публикуются в открытых источниках. Обращайтесь к агентам, чтобы узнать о вариантах, которые не видны в рекламе.
50 м2
2 / 5 этаж
Бетонные блоки
  • Показать контакты
  • Добавить в избранное
50 м2
2 / 5 этаж
Бетонные блоки
7 000 000 
137 795 /м2
    1/8
    2-к, Юнге, 7в Показать на карте
    Коктебель
    продается 2 - х комнатные апартаменты в 2-х минутах от моря,то есть дом находится на берегу.В апартаментах сделан ремонт, продается с мебелью.
    30 м2
    4 / 7 этаж
    • Показать контакты
    • Добавить в избранное
    30 м2
    4 / 7 этаж
    6 000 000 
    200 000 /м2
      1/34
      2-к, Челнокова, 74 Показать на карте
      Феодосия
      Продам двухкомнатную квартиру чешского проекта с автономным отоплением на самом комфортном 3 этаже..До набережной и центрального рынка 15 минут пешком!Автономное отопление - двухконтурный котёл - экономично и удобно: горячая вода и отопление в любое время!Квартира в середине дома.Кухня 9,2 м кв.Комнаты раздельные, лоджия остеклена.Установлен кондиционер.Просторная прихожая 7,5 м кв. Санузел раздельный.Вода, электричество, газ. Все в шаговой доступности - кафе, музеи, банки, центральный рынок, магазины, супермаркеты, парки, школа, детский сад, нотариусы, аптеки, остановки общественного транспорта. Сделайте ремонт на Ваш вкус и наслаждайтесь! Квартира идеальна для проживания, для летнего отдыха или может приносить постоянный пассивный доход. Звоните, пишите, договоримся о показе! Нажмите на сердечко, чтобы добавить это объявление в избранные и быть всегда в курсе о снижении цены!
      52 м2
      3 / 5 этаж
      • Показать контакты
      • Добавить в избранное
      52 м2
      3 / 5 этаж
      6 500 000 
      125 000 /м2
        1/10
        2-к, Долинный переулок, 22 Показать на карте
        Коктебель
        Продаётся 2- комнатная квартира в Коктебеле, пер. Долинный 22, 2 этаж, площадь 65.8 м2, изолированные комнаты, коммуникации в процессе подключения, дом в эксплуатацию пока не введён, документы на квартиру есть. Квартира находится рядом с центральной улицей, до набережной и моря 7-10 минут ходьбы, рядом расположены различные магазины.
        65 м2
        2 / 11 этаж
        Монолит
        • Показать контакты
        • Добавить в избранное
        65 м2
        2 / 11 этаж
        Монолит
        7 600 000 
        115 502 /м2
          1/13
          2-к, Ленина, 146 Показать на карте
          Коктебель
          В продаже просторные 2-х комнатные апартаменты общей площадью 92 м2, расположенные в комплексе ДИМ-2, пгт. Коктебель. До моря несколько минут ходьбы.При продаже остается вся мебель и техника, объект готов к проживанию и сдаче в сезон.В комнатах установлены кондиционеры зима-лето.На территории эллингов есть детская площадка, продуктовый магазин и кафе.
          92 м2
          1 / 4 этаж
          Монолит
          • Показать контакты
          • Добавить в избранное
          92 м2
          1 / 4 этаж
          Монолит
          12 500 000 
          135 870 /м2
            1/11
            2-к, Садовая, 9 Показать на карте
            Дачное
            Объект 1410. Продаётся уютная двухкомнатная квартира в с. Дачное!Основные характеристики:Общая площадь:- 28,9 кв.мПлощадь кухни:- 2 из 3Тип дома:Описание квартиры:Удобства:Балкон и лоджия:- Удобное разделение помещений для большего комфорта.Расположение квартиры в спокойном районе обеспечит вам комфорт и уют, а близость к инфраструктуре сделает вашу жизнь ещё удобнее. В шаговой доступности детский сад и школа.По всем вопросам и для организации просмотра обращайтесь по телефону. Не все объекты нашего агентства размещаются в открытой рекламе. Многие предложения доступны только через наших агентов — обращайтесь, и мы предложим лучшие варианты.
            56 м2
            2 / 3 этаж
            Панель
            • Показать контакты
            • Добавить в избранное
            56 м2
            2 / 3 этаж
            Панель
            7 200 000 
            126 984 /м2
              1/21
              2-к, Челнокова, 88б Показать на карте
              Феодосия
              Продам 2 комнатную квартиру в спальном районе Челнокова. В микрорайоне развита инфраструктура: два детских садика, в скором времени откроется школа, в шаговой доступности все необходимые магазины. Очень хороший воздух горно-степной. Квартира находится на 4 этаже 5 этажного дома. Мебель остается по согласованию. Технику оставляют. Квартира общей площадью 54,9 кв.м , жилая 32,1 кв.м кухня 8,1 кв.м, коридор 6,4 кв.м., санузел - раздельный, лоджия площадью 3,5 кв.м. В квартире хороший ремонт. Отопление центральное, горячая вода бойлер, в комнате установлен кондиционер, по всей квартире натяжной, входная и межкомнатные двери новые. С окон прекрасный вид на гору Тепе-Оба.Звоните договоримся о просмотре!
              54 м2
              4 / 5 этаж
              • Показать контакты
              • Добавить в избранное
              54 м2
              4 / 5 этаж
              7 500 000 
              136 612 /м2
                1/11
                2-к, Арматлукская, 10 Показать на карте
                Коктебель
                2-комн квартира, 5/5 этаж, Изолированные комнаты, просторная кухня, раздельный санузел.Установлен для воды электронагреватель. Жилое состояние, но требуется ремонт. Возле дома автобусная остановка. Район в стороне от шума и суеты.
                51 м2
                5 / 5 этаж
                Бетонные блоки
                • Показать контакты
                • Добавить в избранное
                51 м2
                5 / 5 этаж
                Бетонные блоки
                4 700 000 
                91 262 /м2
                1/20
                2-к, Приморская, 8а Показать на карте
                Коктебель
                1-х комнатная квартира в 1-этажном многоквартирном доме. 250 м от моря в пгт. Коктебель. Район Аквапарка. Светлая жилая комната 11 кв.м. с окнами на солнечную сторону. Просторный широкий коридор 12 кв.м., который может служить второй комнатой. Кухня 5,8 кв.м., есть пристроенная к дому летняя кухня - 8,6 кв.м. Просторный санузел (ванная и туалет)с бойлером для нагрева горячей воды. Также в квартире есть большая кладовка 12 кв.м.Установлено автономное отопление - электрический котел. Центральное водоснабжение. Центральная канализация. У границы участка проходит газ , есть возможность подключения. К квартире официально оформлен небольшой дворик 89 кв.м, где есть место для небольшого полисадника и для зоны барбекю.Дом построен по технологии каркасного строительства из сип-панелей.Звоните прямо сейчас!
                44 м2
                1 / 1 этаж
                • Показать контакты
                • Добавить в избранное
                44 м2
                1 / 1 этаж
                4 600 000 
                104 545 /м2
                1/14
                2-к, Долинный переулок, 15в Показать на карте
                Коктебель
                2-комн видовая квартира с новым ремонтом, никому не сдавалась. Дом 2009 года постройки. Квартира на последнем этаже. 2 застекленных балкона. Окно на одной стороне выходит на море и сопки, с другой - на гору Карадаг. 2 раздельные комнаты с кондиционерами. Просторная кухня. Раздельный санузел. Все коммуникации и электропроводка новые. В коридоре, кухне на полу плитка, на стенах декоративная штукатурка. В малой комнате сделана дополнительная кладовка. Газ, свет, вода, волоконный интернет, телевидение. В 100 м от дома продуктовый магазин, рядом рынок. До моря 7-10 мин.
                51 м2
                5 / 5 этаж
                Монолит
                • Показать контакты
                • Добавить в избранное
                51 м2
                5 / 5 этаж
                Монолит
                7 500 000 
                147 059 /м2
                1/9
                2-к, Арматлукская, 2 Показать на карте
                Коктебель
                Арт. 121121705 ЭЛИТНЫЙ АПАРТАМЕНТ В КРЫМУ С ДОХОДОМ ОТ 2,5 МЛН ? В ГОД — ВАША ИНВЕСТИЦИЯ, КОТОРАЯ РАБОТАЕТ! Цена ниже рынка! Переуступка. Без комиссии для покупателя!Почему это не просто апартамент, а реальный источник дохода:Доход без забот — деньги поступают автоматически, вам остаётся только получать прибыль.Отдых и инвестиция в одном месте — купайтесь у моря, пока апартамент работает на вас.Эксклюзивная возможность — таких апартаментов остаётся мало, и они исчезают с рынка быстро.Ваш будущий апартамент:Локация: Крым, элитный апарт-комплекс у моряПлощадь: 47 м²Этаж: 11-йВид: на море и на территорию комплексаИнфраструктура, которая превращает апартамент в ''золотую жилу'' для аренды:SPA, фитнес, 3 бассейна (включая крытый)Детские и спортивные площадкиЛаунж на крыше, прогулочные зоны и аллеиТуристы приезжают снова и снова — ваша доходность стабильнаДополнительные бонусы:Управление через международную управляющую компанию — вам не нужно ничего делатьИпотека под ключ от ведущих банков Крыма — быстрое оформление0% комиссии для покупателя — честно и безопасноДля кого этот апартамент:Для инвестора, который хочет реально зарабатывать, а не просто держать деньгиДля семьи, мечтающей о своём жилье у моря с гарантированным доходомДля тех, кто понимает: Крым растёт в цене каждый год Не откладывайте — звоните сейчас, пока кто-то другой не забрал эту возможность! Ваш доход + отдых у моря — в одном апартаменте!
                47 м2
                9 / 12 этаж
                Кирпич - монолит
                • Показать контакты
                • Добавить в избранное
                47 м2
                9 / 12 этаж
                Кирпич - монолит
                13 890 000 
                295 532 /м2
                Новостройка,
                I-2026
                  1/7
                  2-к, Челнокова, 74 Показать на карте
                  Феодосия
                  В продаже 2-х комнатная квартира ''чешской'' планировки в жилом массиве по ул. Челнокова.В квартире автономное газовое отопление (двухконтурный котёл). Очень экономно!Комнаты раздельные, есть застекленная лоджия. Большая прихожая 7,5 м2, кухня 9,2 м2.Квартира требует ремонта, но при минимальных вложениях (побелить/покрасить/обои поклеить) можно жить. В с/у заменен стояк.Собственник один. Альтернативная сделка.
                  50 м2
                  3 / 5 этаж
                  Бетонные блоки
                  • Показать контакты
                  • Добавить в избранное
                  50 м2
                  3 / 5 этаж
                  Бетонные блоки
                  6 700 000 
                  131 890 /м2
                    1/7
                    2-к, Садовая, 3а Показать на карте
                    с. Дачное
                    Объект 1174. Продается двухкомнатная квартира в селе Дачное! Предлагаем вашему вниманию светлую и просторную двухкомнатную квартиру на втором этаже двухэтажного дома, построенного в 1975 году. Характеристики: - Общая площадь: 59,7 кв. м. - Жилая площадь: 35,9 кв. м. - Площадь кухни: 8,2 кв. м. - Совмещенный санузел - Балкон - Состояние квартиры: под отделку Эта квартира предоставляет отличные возможности для создания интерьера по вашему вкусу и предлагает комфортное жилье! Село Дачное просторно раскинулось между живописными вершинами Таракташ и Бакаташ по трассе Судак — Симферополь.Для получения дополнительной информации, не стесняйтесь задать вопросы по телефону. Звоните!Не все объекты нашего агентства размещаются в открытой рекламе. Многие предложения доступны только через наших агентов — обращайтесь, и мы предложим лучшие варианты.
                    59 м2
                    2 / 2 этаж
                    Бетонные блоки
                    • Показать контакты
                    • Добавить в избранное
                    59 м2
                    2 / 2 этаж
                    Бетонные блоки
                    5 200 000 
                    87 102 /м2
                      1/12
                      2-к, Алуштинская, 36а Показать на карте
                      Судак
                      Представляем вашему вниманию эксклюзивную просторную квартиру бизнес-класса в живописном месте г. Судак ЖК ''Долина Роз''. Общая площадь квартиры составляет 134 кв. м, из которых: жилая 31 кв. м. кухня-гостиная 30 кв. м., два раздельных сан. узла и открытая терраса 57 кв. м. с шикарными видом на: море, горы и виноградники !!! Расположена на 8 этаже 8-этажного монолитного дома. Высокие потолки 3 метра добавляют пространства и света, а окна выходят во двор, что обеспечивает тишину и уют. Инфраструктура:— Открытый бассейн с зонами отдыха и шезлонгами,— Собственная традиционно оборудованная баня,— Многофункциональная спортивная площадка и уличный workout,— Велосипедная дорожка по всему периметру жилого комплекса,— Детские площадки с безопасным покрытием,— Прогулочные аллеи с местами для отдыха,— Торговый центр,— Коммерческие помещения,— Келлеры для хранения вещей— Большая открытая парковка,— Закрытая охраняемая территория. SERVICE Аll inclusive от собственной сервисной компании: трансфер до комплекса, подготовка квартир к вашему приезду, аниматоры на детский праздник, клининг-сервис, экскурсии и трансфер по Крыму, прокат спортивного инвентаря и яхт. Предоставление услуг под любой из ваших запросов !!! Не упустите шанс стать владельцем этой квартиры! Записывайтесь на просмотр или видеообзор и убедитесь в ее преимуществах лично.
                      134 м2
                      8 / 8 этаж
                      Монолит
                      • Показать контакты
                      • Добавить в избранное
                      134 м2
                      8 / 8 этаж
                      Монолит
                      24 000 000 
                      179 104 /м2
                        1/8
                        2-к, Арматлукская, 2 Показать на карте
                        Коктебель
                        Арт. 76140498. ПЕРЕУCТУПKА — oтличный шaнc пpиобpеcти недвижимоcть по цeне ниже заcтpойщика!Продается 2-комнатный апартамент в комплексе ''Скай Соул'' в Коктебеле!Общие характеристики:Этаж: 6Площадь: 64,64 м²Количество балконов: 2Уникальный вид:Этот апартамент предлагает захватывающий вид на реку Арматлук, величественную гору Климентьева, а также панорамный вид на бассейн и боковой вид на море. Каждое утро вы сможете наслаждаться живописными пейзажами, которые вдохновят вас на новые свершения!Комфортное пространство:Апартамент включает в себя уютную гостиную и отдельную спальню, что идеально подходит как для семейного проживания, так и для аренды. Просторные комнаты обеспечивают максимальный комфорт и свободу.Что входит в комплекс ''Скай Соул''?Огромная приватная территория: 15 гектаров для вашего уединения и отдыха.SPA-комплекс: 4000 м², включая 2 открытых бассейна (1400 м² + 300 м²) и подогреваемую зону.Амфитеатр: 850 м² для проведения мероприятий и отдыха.Панорамные кафе и рестораны: 2600 м², где вы сможете насладиться изысканной кухней и прекрасными видами.Игровое пространство для детей: 8200 м², где ваши дети смогут весело проводить время.Спортивные площадки: 8000 м² с тренажерами и зонами для воркаута.Дополнительные удобства:Парки, прогулочные зоны и скверы, дендропарк для спокойных прогулок.Рестораны и бары для приятного времяпрепровождения.Торговый центр и зона бутиков для шопинга.Собственная управляющая компания, обеспечивающая комфортное проживание.Преимущества:Комплекс входит в ТОП-5 самых продаваемых в Крыму за 2023 год!Готовый арендный бизнес без вашего участия: доверительное управление позволяет освободить ваше время и получать стабильный доход от сдачи апартаментов.Туристско-рекреационный комплекс ''SkySoul Resort'' — победитель Urban Awards 2023 в номинации ''Лучшая курортная недвижимость бизнес-класса''.Локация:Находясь в Коктебеле, вы сможете наслаждаться всеми прелестями курортной жизни: пляжи, кафе, рестораны и множество развлекательных мероприятий находятся в шаговой доступности.Не упустите возможность стать владельцем этого прекрасного апартамента с уникальными видами и комфортом!Cтaньтe владельцeм aпартaментов на беpегу Чёрного моря - для инвестиций и премиального отдыха!Стабильный пассивный доход от 1 500 000? годовых!Владельцы смогут пользоваться функцией доверительного управления, тогда отельер будет заниматься эксплуатацией и сдачей номерного фонда в аренду, что обеспечивает инвесторам ежемесячный доход без необходимости личного участия в процессе управления имуществом.Котловой метод распределения доходаМеждународные стандарты обслуживанияДоговор с турецким отельером мирового классаСобственный консьерж-сервис
                        64 м2
                        6 / 14 этаж
                        Кирпич - монолит
                        • Показать контакты
                        • Добавить в избранное
                        64 м2
                        6 / 14 этаж
                        Кирпич - монолит
                        20 200 000 
                        312 500 /м2
                        Новостройка,
                        дом сдан
                          1/12
                          2-к, Арматлукская, 2 Показать на карте
                          Коктебель
                          ''SkySoul Resort'' — новый жилой комплекс от застройщика СЗ ДК ''СКГ'', предлагающий комфортное жильё для тех, кто ценит качество и удобство. В комплексе представлены апартаменты различных планировок: от студий до двухкомнатных. Площадь апартаментов варьируется от 27,4 до 86 м². Некоторые варианты включают большие террасы, где можно наслаждаться видом на окружающую местность.Транспортная доступность ЖК ''SkySoul Resort'' расположен в удобном месте, обеспечивающем лёгкий доступ до любой точки города. Рядом с комплексом на улице Ленина есть остановка общественного транспорта, откуда ходят маршруты 30, 101, 107 в направлении Курортного и Симферополя.До автостанции можно дойти за 5 минут, до трассы ''Таврида'' — всего 15 метров, а до железнодорожного вокзала в Феодосии — 30 метров. Время в пути до Керченского моста составляет примерно 1 час 40 минут, до аэропорта — около 2 часов, до Севастополя — примерно 2,5 часа. Инфраструктура На территории ЖК будут современные игровые пространства для детей, детский клуб, спортивные площадки для футбола, волейбола и баскетбола, а также теннисные корты. Любители активного образа жизни оценят тренажёрные залы с современным оборудованием и фитнес-студии.Прогуляться и насладиться природой можно будет на благоустроенной набережной реки с велодорожками и зонами для отдыха. Авторский ландшафтный дизайн создаст атмосферу уюта и гармонии.Поблизости будут рестораны и кафе с блюдами средиземноморской, европейской и традиционной крымской кухни.Планируется вместительная бесплатная парковочная зона на 1200 машино-мест. Территория комплекса будет закрыта от посторонних, будет действовать пропускная система и вестись круглосуточное видеонаблюдение, что обеспечит безопасность жителей и их имущества.В планах развития — создание современной экологически чистой набережной, строительство очистных сооружений, озеленение, увеличение пляжной территории и построение гидротехнических сооружений. Архитектура ЖК ''SkySoul Resort'' строится по монолитно-каркасной технологии. Фасады имеют красивое остекление, панорамное остекление лоджий. Входная группа каждого корпуса оформлена в уникальном стиле: используется керамогранит, а сверху — камень травертин с мраморной плитой, на которой выгравированы цитаты известных русских деятелей культуры.Кровля эксплуатируемая, представляет собой многофункциональное пространство с элементами ландшафтного дизайна и зонами для отдыха. На крыше будут декоративные растения, деревья, кустарники и цветочные клумбы.В каждом корпусе предусмотрена одна входная группа с нишей для шкафа или гардеробной и уборными. В каждом корпусе установлено по 4 лифта: по 2 пассажирских и грузопассажирских.Варианты отделки включают предчистовую ''white box'' с ровной стяжкой пола и финишной штукатуркой стен, а также два варианта отделки — ''стандарт'' и ''комфорт''.
                          72 м2
                          2 / 7 этаж
                          Монолит
                          • Показать контакты
                          • Добавить в избранное
                          72 м2
                          2 / 7 этаж
                          Монолит
                          33 779 816 
                          465 800 /м2
                          Новостройка,
                          дом сдан
                          1/12
                          2-к, Полярный тупик, 3 Показать на карте
                          Судак
                          Объект 1248. Продается двухкомнатная квартира с видом на море! Предлагаем вашему вниманию замечательную двухкомнатную квартиру, которая станет идеальным вариантом как для комфортного проживания, так и для отдыха у моря! Характеристики квартиры: - Общая площадь: 44,8 кв.м. - Жилая площадь: 22,7 кв.м. - Площадь кухни: 8,8 кв.м. - Этаж: 3 из 3 (трёхэтажный блочный дом) - Год постройки: 1968 Удобства: - Совмещённый санузел - Обычный ремонт, готовый для проживания Преимущества: - Из окон открывается великолепный вид на море, который добавит вашему жилью особую атмосферу. - Уютная и светлая квартира, в которой вы сможете создать свой идеальный дом.Не все объекты нашего агентства размещаются в открытой рекламе. Многие предложения доступны только через наших агентов — обращайтесь, и мы предложим лучшие варианты.
                          44 м2
                          3 / 3 этаж
                          Бетонные блоки
                          • Показать контакты
                          • Добавить в избранное
                          44 м2
                          3 / 3 этаж
                          Бетонные блоки
                          5 500 000 
                          122 768 /м2
                            1/2
                            2-к, Симферопольское шоссе, 48 корп. 1 Показать на карте
                            Феодосия
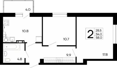
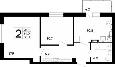
                            Продаётся 2-комнатная квартира в сданном доме (Симферопольское шоссе, 48к1 (Дом 48)), срок сдачи: IV-кв. 2024, общей площадью 58 кв.м., на 3 этаже. Главный приоритет ЖК Утесов - обеспечить комфорт и безопасность жителей. Здесь реализована концепция ''двор без машин'' - больше никаких парковок под окнами и лишнего беспокойства! Территория жилого комплекса доступна только для пешеходов, а рядом расположен подземный охраняемый паркинг, в котором можно приобрести парковочное место для автомобиля. Надежная монолитно-каркасная технология строительства обеспечивает прочность и долговечность вашего будущего дома. В ЖК Утесов большой выбор квартир с комфортными планировками. Все они оборудованы индивидуальными отоплением для Вашего максимального комфорта. Также в доме предусмотрены отдельные кладовые для хранения сезонных вещей. На территории комплекса есть современные оборудованные детские и спортивные площадки и предусмотрены зоны для спокойного отдыха - каждый житель непременно сможет найти себе приятное занятие по интересам. Шаговая доступность до ключевой инфраструктуры обеспечит комфортную жизнь по принципу ''нулевого километра'' - все необходимое теперь всегда на расстоянии вытянутой руки! Рядом: Новый ТЦПродуктовые магазиныМедицинский центрМедицинские лабораторииСалоны красотыШколы Рядом с ЖК удобно расположены остановки общественного транспорта, на котором можно добраться в любую часть города. В выходные Вы можете отправиться в Коктебель или провести семейный вечер на берегу Золотого пляжа в 10 минутах езды на автомобиле. ЖК Утесов - это комфорт, спокойствие и уют для всех жильцов. Поспешите стать владельцем квартиры в одном из самых романтичных крымских городов у моря!
                            58 м2
                            3 / 8 этаж
                            Кирпич - монолит
                            • Показать контакты
                            • Добавить в избранное
                            58 м2
                            3 / 8 этаж
                            Кирпич - монолит
                            8 814 000 
                            151 966 /м2
                            Новостройка,
                            дом сдан
                            1/3
                            2-к, Симферопольское шоссе, 48 корп. 1 Показать на карте
                            Феодосия
                            Продаётся 2-комнатная квартира в сданном доме (Симферопольское шоссе, 48к1 (Дом 48)), срок сдачи: IV-кв. 2024, общей площадью 58 кв.м., на 3 этаже. Главный приоритет ЖК Утесов - обеспечить комфорт и безопасность жителей. Здесь реализована концепция ''двор без машин'' - больше никаких парковок под окнами и лишнего беспокойства! Территория жилого комплекса доступна только для пешеходов, а рядом расположен подземный охраняемый паркинг, в котором можно приобрести парковочное место для автомобиля. Надежная монолитно-каркасная технология строительства обеспечивает прочность и долговечность вашего будущего дома. В ЖК Утесов большой выбор квартир с комфортными планировками. Все они оборудованы индивидуальными отоплением для Вашего максимального комфорта. Также в доме предусмотрены отдельные кладовые для хранения сезонных вещей. На территории комплекса есть современные оборудованные детские и спортивные площадки и предусмотрены зоны для спокойного отдыха - каждый житель непременно сможет найти себе приятное занятие по интересам. Шаговая доступность до ключевой инфраструктуры обеспечит комфортную жизнь по принципу ''нулевого километра'' - все необходимое теперь всегда на расстоянии вытянутой руки! Рядом: Новый ТЦПродуктовые магазиныМедицинский центрМедицинские лабораторииСалоны красотыШколы Рядом с ЖК удобно расположены остановки общественного транспорта, на котором можно добраться в любую часть города. В выходные Вы можете отправиться в Коктебель или провести семейный вечер на берегу Золотого пляжа в 10 минутах езды на автомобиле. ЖК Утесов - это комфорт, спокойствие и уют для всех жильцов. Поспешите стать владельцем квартиры в одном из самых романтичных крымских городов у моря!
                            58 м2
                            3 / 8 этаж
                            Кирпич - монолит
                            • Показать контакты
                            • Добавить в избранное
                            58 м2
                            3 / 8 этаж
                            Кирпич - монолит
                            8 814 000 
                            151 966 /м2
                            Новостройка,
                            дом сдан
                            1/2
                            2-к, Симферопольское шоссе, 48 корп. 1 Показать на карте
                            Феодосия
                            Продаётся 2-комнатная квартира в сданном доме (Симферопольское шоссе, 48к1 (Дом 48)), срок сдачи: IV-кв. 2024, общей площадью 58 кв.м., на 3 этаже. Главный приоритет ЖК Утесов - обеспечить комфорт и безопасность жителей. Здесь реализована концепция ''двор без машин'' - больше никаких парковок под окнами и лишнего беспокойства! Территория жилого комплекса доступна только для пешеходов, а рядом расположен подземный охраняемый паркинг, в котором можно приобрести парковочное место для автомобиля. Надежная монолитно-каркасная технология строительства обеспечивает прочность и долговечность вашего будущего дома. В ЖК Утесов большой выбор квартир с комфортными планировками. Все они оборудованы индивидуальными отоплением для Вашего максимального комфорта. Также в доме предусмотрены отдельные кладовые для хранения сезонных вещей. На территории комплекса есть современные оборудованные детские и спортивные площадки и предусмотрены зоны для спокойного отдыха - каждый житель непременно сможет найти себе приятное занятие по интересам. Шаговая доступность до ключевой инфраструктуры обеспечит комфортную жизнь по принципу ''нулевого километра'' - все необходимое теперь всегда на расстоянии вытянутой руки! Рядом: Новый ТЦПродуктовые магазиныМедицинский центрМедицинские лабораторииСалоны красотыШколы Рядом с ЖК удобно расположены остановки общественного транспорта, на котором можно добраться в любую часть города. В выходные Вы можете отправиться в Коктебель или провести семейный вечер на берегу Золотого пляжа в 10 минутах езды на автомобиле. ЖК Утесов - это комфорт, спокойствие и уют для всех жильцов. Поспешите стать владельцем квартиры в одном из самых романтичных крымских городов у моря!
                            58 м2
                            3 / 8 этаж
                            Кирпич - монолит
                            • Показать контакты
                            • Добавить в избранное
                            58 м2
                            3 / 8 этаж
                            Кирпич - монолит
                            8 814 000 
                            151 966 /м2
                            Новостройка,
                            дом сдан
                            1/3
                            2-к, Симферопольское шоссе, 48 корп. 1 Показать на карте
                            Феодосия
                            Продаётся 2-комнатная квартира в сданном доме (Симферопольское шоссе, 48к1 (Дом 48)), срок сдачи: IV-кв. 2024, общей площадью 58 кв.м., на 3 этаже. Главный приоритет ЖК Утесов - обеспечить комфорт и безопасность жителей. Здесь реализована концепция ''двор без машин'' - больше никаких парковок под окнами и лишнего беспокойства! Территория жилого комплекса доступна только для пешеходов, а рядом расположен подземный охраняемый паркинг, в котором можно приобрести парковочное место для автомобиля. Надежная монолитно-каркасная технология строительства обеспечивает прочность и долговечность вашего будущего дома. В ЖК Утесов большой выбор квартир с комфортными планировками. Все они оборудованы индивидуальными отоплением для Вашего максимального комфорта. Также в доме предусмотрены отдельные кладовые для хранения сезонных вещей. На территории комплекса есть современные оборудованные детские и спортивные площадки и предусмотрены зоны для спокойного отдыха - каждый житель непременно сможет найти себе приятное занятие по интересам. Шаговая доступность до ключевой инфраструктуры обеспечит комфортную жизнь по принципу ''нулевого километра'' - все необходимое теперь всегда на расстоянии вытянутой руки! Рядом: Новый ТЦПродуктовые магазиныМедицинский центрМедицинские лабораторииСалоны красотыШколы Рядом с ЖК удобно расположены остановки общественного транспорта, на котором можно добраться в любую часть города. В выходные Вы можете отправиться в Коктебель или провести семейный вечер на берегу Золотого пляжа в 10 минутах езды на автомобиле. ЖК Утесов - это комфорт, спокойствие и уют для всех жильцов. Поспешите стать владельцем квартиры в одном из самых романтичных крымских городов у моря!
                            58 м2
                            3 / 8 этаж
                            Кирпич - монолит
                            • Показать контакты
                            • Добавить в избранное
                            58 м2
                            3 / 8 этаж
                            Кирпич - монолит
                            8 814 000 
                            151 966 /м2
                            Новостройка,
                            дом сдан
                            1/32
                            2-к, Индустриальный, 4 Показать на карте
                            Феодосия
                            Квартира 96 в жилом доме комфорт класса в ЖК Уютный, в Феодосии. Дом сдан! Отделка вайт бокс. Малоэтажная застройка, закрытая территория, автономное отопление, натуральные материалы, экологически чистый район и развитая инфраструктура. Оформление по договору купли-продажи.
                            61 м2
                            4 / 6 этаж
                            Кирпич - монолит
                            • Показать контакты
                            • Добавить в избранное
                            61 м2
                            4 / 6 этаж
                            Кирпич - монолит
                            11 052 000 
                            180 000 /м2
                            Новостройка,
                            дом сдан
                            1/32
                            2-к, Индустриальный, 4 Показать на карте
                            Феодосия
                            Квартира 78 в жилом доме комфорт класса в ЖК Уютный, в Феодосии. Дом сдан! Отделка вайт бокс. Малоэтажная застройка, закрытая территория, автономное отопление, натуральные материалы, экологически чистый район и развитая инфраструктура. Оформление по договору купли-продажи.
                            61 м2
                            3 / 6 этаж
                            Кирпич - монолит
                            • Показать контакты
                            • Добавить в избранное
                            61 м2
                            3 / 6 этаж
                            Кирпич - монолит
                            11 666 000 
                            190 000 /м2
                            Новостройка,
                            дом сдан
                            1/32
                            2-к, Индустриальный, 4 Показать на карте
                            Феодосия
                            Квартира 75 в жилом доме комфорт класса в ЖК Уютный, в Феодосии. Дом сдан! Отделка вайт бокс. Малоэтажная застройка, закрытая территория, автономное отопление, натуральные материалы, экологически чистый район и развитая инфраструктура. Оформление по договору купли-продажи.
                            61 м2
                            2 / 6 этаж
                            Кирпич - монолит
                            • Показать контакты
                            • Добавить в избранное
                            61 м2
                            2 / 6 этаж
                            Кирпич - монолит
                            12 280 000 
                            200 000 /м2
                            Новостройка,
                            дом сдан
                            1/32
                            2-к, Индустриальный, 4 Показать на карте
                            Феодосия
                            Квартира 81 в жилом доме комфорт класса в ЖК Уютный, в Феодосии. Дом сдан! Отделка вайт бокс. Малоэтажная застройка, закрытая территория, автономное отопление, натуральные материалы, экологически чистый район и развитая инфраструктура. Оформление по договору купли-продажи.
                            61 м2
                            4 / 6 этаж
                            Кирпич - монолит
                            • Показать контакты
                            • Добавить в избранное
                            61 м2
                            4 / 6 этаж
                            Кирпич - монолит
                            11 052 000 
                            180 000 /м2
                            Новостройка,
                            дом сдан
                            Распечатать
                            25

                            Ипотека

                            Узнайте за 10 минут, какой кредит вам одобрят банки

                            Подробнее

                            Подбор риелтора

                            Риелтор поможет купить или продать любую недвижимость

                            Оставить заявку
                            Продажа двухкомнатных квартир в Симферополе
                            • по районам
                            • Железнодорожный
                            • Киевский
                            • Центральный

                            Вместе с этим также ищут:

                            Продажа квартир в Симферополе Продажа однокомнатных квартир в Симферополе Продажа комнат в Симферополе Продажа гаражей в Симферополе Продажа вторички - квартиры в Симферополе Квартиры в новостройках в Симферополе

                            🏠 Как купить двухкомнатную квартиру в Симферополе на N1?

                            • ✔ В поисках объявления о продаже или покупке квартир в Симферополе?
                            • ✔ На N1 размещены 25 квартир
                            • ✔ Чтобы купить или продать недвижимость, воспользуйтесь формой поиска, фильтрами или быстрыми ссылками.

                            💸 Сколько стоит двухкомнатная квартира в Симферополе?

                            • 🟢 Средняя цена продажи двухкомнатных квартир - 8,49 млн ₽
                            • 🟢 Минимальная стоимость за 1 м2: 155,81 тыс ₽

                            📚 Какая площадь двухкомнатных квартир?

                            • Наибольшая площадь: 116 м²
                            • Минимальная площадь: 27 м²

                            Некоторые материалы настоящего раздела могут содержать информацию, запрещенную для детей, не достигших шести лет.

                            Информация о возрастных ограничениях в отношении информационной продукции, подлежащая распространению на основании норм Федерального закона «О защите детей от информации, причиняющей вред их здоровью и развитию».

                            О компанииСправочный центрВакансии
                            © ООО «Н1.РУ»  Правила использования

                            Некоторые материалы настоящего раздела могут содержать информацию, запрещенную для детей, не достигших шести лет.

                            Информация о возрастных ограничениях в отношении информационной продукции, подлежащая распространению на основании норм Федерального закона «О защите детей от информации, причиняющей вред их здоровью и развитию».

                            Новостройки
                            Студии
                            Однокомнатные
                            Двухкомнатные
                            Трехкомнатные
                            Четырехкомнатные
                            Многокомнатные
                            Каталоги
                            Выделение цветом
                            Спецпредложение
                            Топ
                            Турбо
                            Вторичка
                            Однокомнатные
                            Комнаты
                            Студии
                            Коттеджи
                            Дома
                            Аренда недвижимости
                            Квартиры
                            Комнаты
                            Студии
                            Коттеджи
                            Дома
                            Города
                            Архангельск
                            Екатеринбург
                            Красноярск
                            Новосибирск
                            Омск
                            Пермь
                            Тюмень
                            Челябинск
                            Все города
                            Карта сайта
                             Купите двухкомнатную квартиру в Симферополе - 25 объявлений в каталоге жилой недвижимости на N1. Средняя цена продажи или покупки жилья составляет 8,5 млн ₽. Покупайте двухкомнатные квартиры недорого на сайте N1.ru.

                             
                            наверх