1-к, Пограничный переулок, 7 Показать на карте
Семидворье
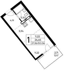
Продаётся студия в строящемся доме (Корпус 2), срок сдачи: IV-кв. 2024, общей площадью 25.44 кв.м., на 4 этаже. Наш комплекс - это рай для детей. Мы предусмотрели активности для детей разных возрастов. Курорт ''Лучистое'' - это место, где максимально комфортно и не принуждённо будет развиваться творческая личность Вашего малыша! Пока дети развлекаются, взрослые могут спокойно насладиться атмосферой. К Вашим услугам аква- зоны и банный комплекс. Ресторанный сектор обслужит Вас в любом удобном для Вас месте: у бассейна, дома, во дворе в тени крымских сосен или на смотровой площадке. Оборудованные беседки- барбекю располагают к душевному вечернему времяпровождению с крымским авторским вином. Все элементы нашего комплекса способствуют оздоровлению Вас и Вашей семьи. Просто гуляя по хвойному парку, вы погружаетесь в климатолечение. Совершая пробежки по горным терренкурам, не принуждённо привыкаете к увеличению физических нагрузок. А если дождливая погода, позаниматься фитнесом можно в спортзале. Ну а наш йога-центр с видом на крымские горы - это ''изюминка'' нашего комплекса.
25 м2
4 / 16 этаж
Кирпич - монолит
- Показать контакты
- Добавить в избранное
25 м2
4 / 16 этаж
Кирпич - монолит
9 991 705
392 756 /м2
Новостройка,
дом сдан
дом сдан
