logo
N1.RU — новая улучшенная версия Е1.Недвижимость
Чтобы вернуться на старый сайт Е1.Недвижимость, перейдите по ссылке в нижней части сайта N1.RU
  • Продажа
  • Аренда
  • Новостройки
  • Журнал
  • Компании
  • Шаблоны документов
  • Налоговый вычет
  • Еще
  • Личный кабинет
    • Регистрация на Циан
    • Симферополь
  • Добавить объявление
Тип недвижимости
Симферополь
Начните вводить или выберите объект в выпадающем списке
  • Район и микрорайон
Количество комнат
Цена
  1. Недвижимость в Симферополе
  2. Продажа
  3. Квартиры
  4. 338 объявлений

Продажа однокомнатных квартир в Симферополе

  • Новостройки267
  • Вторичка71
  • Без посредников3
За все время
Сортировка по умолчанию
СпискомСписком
ТаблицейТаблицей
На картеНа карте
Открыть поиск по карте

По вашему запросу объявлений не найдено

1/17
1-к, Прибрежное Показать на карте
Прибрежное
Продаётся студия в сданном доме (Секция 2), срок сдачи: IV-кв. 2024, общей площадью 56.49 кв.м., на 5 этаже. Жилой комплекс Розовое озеро расположен на западном побережье Крыма между городами Саки и Евпатория и входит в состав курортного комплекса Прибрежный. Экологически чистое место находится на косе между Чёрным морем и розовым озером Сасык-Сиваш в непосредственной близости к Сакским лечебным грязевым лиманам. Проект включает в себя современные квартиры в ЖК Розовое озеро и комплекс апартаментов Ола-апарт в прибрежной зоне с полным спектром курортной инфраструктуры. КОМФОРТНЫЕ ОБЩЕСТВЕННЫЕ ЗОНЫ ОТДЫХА Внутренние пространства дворов ЖК приватны и безопасны. Можно с комфортом провести время в тенистых беседках или прогуляться по променадной площади с фонтаном. Мы позаботились и о наших маленьких жильцах, специально для них будут построены современные игровые комплексы. Уличный стрит-ритейл насыщает жизнь в жилом комплексе в течение дня. Кафе и рестораны могут размещать посадочные места вдоль фасадов, привлекая посетителей. Благоустройство является важным элементом комфортной среды для отдыха, поэтому в ЖК предусмотрено комплексное озеленение. АРХИТЕКТУРНАЯ КОНЦЕПЦИЯ Сочетание разных типов фасадов и переменная этажность зданий создают уникальный образ каждой улицы. Остекление выполнено в алюминиевом профиле. Квартальная застройка комплекса защищает внутренние дворы от случайных гостей и делает их более уютными. Став резидентом КК Прибрежный, Вы приобретаете не просто ''квадратные метры'', а особый образ жизни.
56 м2
5 / 8 этаж
  • Показать контакты
  • Добавить в избранное
56 м2
5 / 8 этаж
10 959 060 
194 000 /м2
Новостройка,
дом сдан
1/11
1-к, Прибрежное Показать на карте
Прибрежное
Объект 9151. Продаетсяоднокомнатный апартамент в Евпатории. Ввод объекта в эксплуатацию запланирован на 4 квартал 2027 года.Важно: на часть суммы возможна рассрочка до 4 квартала 2027 года.Позвонитенам, чтобы узнать все детали!Про апартамент:- Этаж/этажность 4/13- Площадь 46 м2- Комнат 1, площадью 25 м2- Кухня площадью 10 м2- С/у совмещенный- Балкон 10 м2Про инфраструктуру:Курортный комплекс ''КВАРТАЛ ПРАЙМ'' собоймонолитно-кирпичное здание.В комплексе представлены различные варианты апартаментов: от компактных студийдо просторных многокомнатных планировок. Апартаменты идут без внутреннейотделки, предоставляя жильцам возможность реализовать свои индивидуальныедизайнерские идеи.Комфорт и безопасностьТерритория курортного комплекса находитсяпод охраной и оборудована системой видеонаблюдения. В составе проектапредусмотрен подземный паркинг, что обеспечивает безопасность автомобиля.Окружение и досугВ шаговой доступности от курортногокомплекса расположены учебные заведения. Вблизи функционируют торговые центры,супермаркеты, а также кафе и рестораны. В районе планируется появлениефитнес-центра и других объектов, обеспечивающих досуг жильцов.Позвоните, чтобы назначить просмотр!
46 м2
4 / 13 этаж
Бетонные блоки
  • Показать контакты
  • Добавить в избранное
46 м2
4 / 13 этаж
Бетонные блоки
17 100 000 
371 739 /м2
Новостройка,
IV-2027
1/23
1-к, Набережная, 64 Показать на карте
Прибрежное
Продаётся студия-апартаменты в сданном доме (Набережная, 64), срок сдачи: IV-кв. 2024, общей площадью 43.31 кв.м., на 2 этаже. Комплекс апартаментов ''Ола-апарт'' расположен на западном побережье Крыма между городами Саки и Евпатория и входит в состав курортного комплекса Прибрежный. Экологически чистое место находится на косе между Чёрным морем и розовым озером Сасык-Сиваш в непосредственной близости к Сакским лечебным грязевым лиманам. Проект Прибрежный включает в себя современные квартиры в ЖК Розовое озеро и комплекс апартаментов Ола-апарт с полным спектром курортной инфраструктуры. Сервисный апарт-отель Ола-апарт включает в себя следующий перечень инфраструктуры: бассейн, разделенный на взрослую и детскую зону, а также зону гидромассажаресторан и детское кафетренажерный залдетская зона отдыха - современный детский игровой комплекс не оставит равнодушным Вашего ребенказеленая зона - для взрослых благоустроена парковая зона для отдыха.На территории комплекса планируется построить отель с медицинским центром. Широкий песчано-галечный пляж расположен в 150 метрах от Ола-апарт. Именно качество песка позволило западному побережью Крыма стать, пожалуй, самым известным из отечественных песчаных курортов. Мелкий золотистый песок пляжа идеально подходит не только для отдыха, но и для проведения лечебных процедур. Благодаря комфортному и пологому входу в море, безопасному песчаному дно с мелкой галькой пляж идеален для детей.
43 м2
2 / 10 этаж
  • Показать контакты
  • Добавить в избранное
43 м2
2 / 10 этаж
13 062 355 
301 601 /м2
Новостройка,
дом сдан
1/18
1-к, Прибрежное Показать на карте
Прибрежное
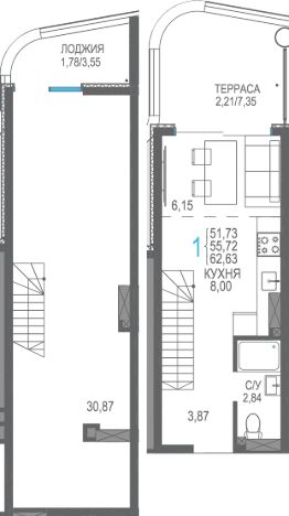
Продаётся 1-комнатная квартира в сданном доме (Секция 6), срок сдачи: IV-кв. 2024, общей площадью 62.63 кв.м., на 9 этаже. Жилой комплекс Розовое озеро расположен на западном побережье Крыма между городами Саки и Евпатория и входит в состав курортного комплекса Прибрежный. Экологически чистое место находится на косе между Чёрным морем и розовым озером Сасык-Сиваш в непосредственной близости к Сакским лечебным грязевым лиманам. Проект включает в себя современные квартиры в ЖК Розовое озеро и комплекс апартаментов Ола-апарт в прибрежной зоне с полным спектром курортной инфраструктуры. КОМФОРТНЫЕ ОБЩЕСТВЕННЫЕ ЗОНЫ ОТДЫХА Внутренние пространства дворов ЖК приватны и безопасны. Можно с комфортом провести время в тенистых беседках или прогуляться по променадной площади с фонтаном. Мы позаботились и о наших маленьких жильцах, специально для них будут построены современные игровые комплексы. Уличный стрит-ритейл насыщает жизнь в жилом комплексе в течение дня. Кафе и рестораны могут размещать посадочные места вдоль фасадов, привлекая посетителей. Благоустройство является важным элементом комфортной среды для отдыха, поэтому в ЖК предусмотрено комплексное озеленение. АРХИТЕКТУРНАЯ КОНЦЕПЦИЯ Сочетание разных типов фасадов и переменная этажность зданий создают уникальный образ каждой улицы. Остекление выполнено в алюминиевом профиле. Квартальная застройка комплекса защищает внутренние дворы от случайных гостей и делает их более уютными. Став резидентом КК Прибрежный, Вы приобретаете не просто ''квадратные метры'', а особый образ жизни.
62 м2
9 / 9 этаж
Кирпич - монолит
  • Показать контакты
  • Добавить в избранное
62 м2
9 / 9 этаж
Кирпич - монолит
10 960 250 
175 000 /м2
Новостройка,
дом сдан
1/8
1-к, Новофедоровка, 1 Показать на карте
Новофедоровка
Ваш уголок у моря. Вдохновение каждый день.Представьте место, где каждое утро наполняется ароматом свежего морского воздуха и звуками волн, а вечер встречает вас нежными красками заката над бескрайним морем. Жилой комплекс ''Морское дыхание'' в посёлке Новофёдоровка, Республика Крым, — это не просто дом, это образ жизни, способный подарить вдохновение каждый день. Здесь совмещается всё, что делает жизнь у моря настоящей мечтой: шаговая доступность до пляжа, уникальная природа и курортный комфорт.---Почему выбирают ''Морское дыхание''?Комплекс спроектирован, чтобы каждая деталь дарила вам уют и удовольствие. Светлые квартиры с прекрасными видами из окон создают атмосферу спокойствия и гармонии. А расположение в тихом районе, рядом с городами Саки и Евпатория, позволяет наслаждаться тишиной и одновременно иметь доступ ко всей необходимой инфраструктуре. Обилие солнца, морской бриз, природные богатства Крыма делают его одним из лучших мест для жизни и отдыха.---Крым. Красота, здоровье, гармония.На расстоянии всего 1 километра от комплекса вы найдёте оборудованный пляж, прозрачное чистое море и новую набережную с живописными видами. Целебный морской воздух, розовые солёные озёра и знаменитые грязевые источники Сак подарят вашему телу здоровье, а душе — спокойствие. В шаговой доступности находятся супермаркеты, школы, детские учреждения и известные санатории, такие как спинальный санаторий имени Бурденко и санаторий Пирогова. Это место располагает к тому, чтобы жить в полной гармонии с природой, заботясь о себе и своих близких.---Мы создаём надёжность.Жилой комплекс ''Морское дыхание'' строится по всем современным стандартам безопасности. Использование эскроу-счетов согласно требованиям ФЗ-214 гарантирует полную защищённость ваших вложений. А такие программы, как семейная ипотека, ипотека для IT-специалистов и использование материнского капитала, делают покупку доступной для каждого. Вы сможете оформить сделку удалённо, просто и удобно.---Идеальное вложение в будущее.Недвижимость в Крыму всегда была востребована и ценилась за свою уникальность, а жилой комплекс ''Морское дыхание'' открывает перед вами сразу два преимущества: это ликвидная инвестиция и уютное место для жизни или отдыха. Невероятные виды, близость моря и развитая инфраструктура создают все условия для комфортной, насыщенной жизни.---Ваш новый дом ждёт вас.Станьте частью уникального проекта, в котором гармония природы и современные технологии соединяются, чтобы подарить вам комфорт и удовольствие от жизни. Выбирайте ''Морское дыхание'' — идеальное место, чтобы жить, отдыхать и становиться счастливее. Срок сдачи объекта — 2026 год. Настало время сделать шаг к своей мечте!
40 м2
7 / 8 этаж
Кирпич - монолит
  • Показать контакты
  • Добавить в избранное
40 м2
7 / 8 этаж
Кирпич - монолит
6 866 160 
168 000 /м2
Новостройка,
дом сдан
1/24
1-к, Набережная, 64 Показать на карте
Прибрежное
Продаётся студия-апартаменты в сданном доме (Набережная, 64), срок сдачи: IV-кв. 2024, общей площадью 90.19 кв.м., на 6 этаже. Комплекс апартаментов ''Ола-апарт'' расположен на западном побережье Крыма между городами Саки и Евпатория и входит в состав курортного комплекса Прибрежный. Экологически чистое место находится на косе между Чёрным морем и розовым озером Сасык-Сиваш в непосредственной близости к Сакским лечебным грязевым лиманам. Проект Прибрежный включает в себя современные квартиры в ЖК Розовое озеро и комплекс апартаментов Ола-апарт с полным спектром курортной инфраструктуры. Сервисный апарт-отель Ола-апарт включает в себя следующий перечень инфраструктуры: бассейн, разделенный на взрослую и детскую зону, а также зону гидромассажаресторан и детское кафетренажерный залдетская зона отдыха - современный детский игровой комплекс не оставит равнодушным Вашего ребенказеленая зона - для взрослых благоустроена парковая зона для отдыха.На территории комплекса планируется построить отель с медицинским центром. Широкий песчано-галечный пляж расположен в 150 метрах от Ола-апарт. Именно качество песка позволило западному побережью Крыма стать, пожалуй, самым известным из отечественных песчаных курортов. Мелкий золотистый песок пляжа идеально подходит не только для отдыха, но и для проведения лечебных процедур. Благодаря комфортному и пологому входу в море, безопасному песчаному дно с мелкой галькой пляж идеален для детей.
93 м2
6 / 10 этаж
Кирпич - монолит
  • Показать контакты
  • Добавить в избранное
93 м2
6 / 10 этаж
Кирпич - монолит
19 915 010 
212 065 /м2
Новостройка,
дом сдан
1/8
1-к, Новофедоровка, 1 Показать на карте
Новофедоровка
Ваш уголок у моря. Вдохновение каждый день.Представьте место, где каждое утро наполняется ароматом свежего морского воздуха и звуками волн, а вечер встречает вас нежными красками заката над бескрайним морем. Жилой комплекс ''Морское дыхание'' в посёлке Новофёдоровка, Республика Крым, — это не просто дом, это образ жизни, способный подарить вдохновение каждый день. Здесь совмещается всё, что делает жизнь у моря настоящей мечтой: шаговая доступность до пляжа, уникальная природа и курортный комфорт.---Почему выбирают ''Морское дыхание''?Комплекс спроектирован, чтобы каждая деталь дарила вам уют и удовольствие. Светлые квартиры с прекрасными видами из окон создают атмосферу спокойствия и гармонии. А расположение в тихом районе, рядом с городами Саки и Евпатория, позволяет наслаждаться тишиной и одновременно иметь доступ ко всей необходимой инфраструктуре. Обилие солнца, морской бриз, природные богатства Крыма делают его одним из лучших мест для жизни и отдыха.---Крым. Красота, здоровье, гармония.На расстоянии всего 1 километра от комплекса вы найдёте оборудованный пляж, прозрачное чистое море и новую набережную с живописными видами. Целебный морской воздух, розовые солёные озёра и знаменитые грязевые источники Сак подарят вашему телу здоровье, а душе — спокойствие. В шаговой доступности находятся супермаркеты, школы, детские учреждения и известные санатории, такие как спинальный санаторий имени Бурденко и санаторий Пирогова. Это место располагает к тому, чтобы жить в полной гармонии с природой, заботясь о себе и своих близких.---Мы создаём надёжность.Жилой комплекс ''Морское дыхание'' строится по всем современным стандартам безопасности. Использование эскроу-счетов согласно требованиям ФЗ-214 гарантирует полную защищённость ваших вложений. А такие программы, как семейная ипотека, ипотека для IT-специалистов и использование материнского капитала, делают покупку доступной для каждого. Вы сможете оформить сделку удалённо, просто и удобно.---Идеальное вложение в будущее.Недвижимость в Крыму всегда была востребована и ценилась за свою уникальность, а жилой комплекс ''Морское дыхание'' открывает перед вами сразу два преимущества: это ликвидная инвестиция и уютное место для жизни или отдыха. Невероятные виды, близость моря и развитая инфраструктура создают все условия для комфортной, насыщенной жизни.---Ваш новый дом ждёт вас.Станьте частью уникального проекта, в котором гармония природы и современные технологии соединяются, чтобы подарить вам комфорт и удовольствие от жизни. Выбирайте ''Морское дыхание'' — идеальное место, чтобы жить, отдыхать и становиться счастливее. Срок сдачи объекта — 2026 год. Настало время сделать шаг к своей мечте!
40 м2
5 / 8 этаж
Кирпич - монолит
  • Показать контакты
  • Добавить в избранное
40 м2
5 / 8 этаж
Кирпич - монолит
7 928 780 
194 000 /м2
Новостройка,
дом сдан
1/24
1-к, Набережная, 64 Показать на карте
Прибрежное
Продаётся студия-апартаменты в сданном доме (Набережная, 64), срок сдачи: IV-кв. 2024, общей площадью 27.63 кв.м., на 3 этаже. Комплекс апартаментов ''Ола-апарт'' расположен на западном побережье Крыма между городами Саки и Евпатория и входит в состав курортного комплекса Прибрежный. Экологически чистое место находится на косе между Чёрным морем и розовым озером Сасык-Сиваш в непосредственной близости к Сакским лечебным грязевым лиманам. Проект Прибрежный включает в себя современные квартиры в ЖК Розовое озеро и комплекс апартаментов Ола-апарт с полным спектром курортной инфраструктуры. Сервисный апарт-отель Ола-апарт включает в себя следующий перечень инфраструктуры: бассейн, разделенный на взрослую и детскую зону, а также зону гидромассажаресторан и детское кафетренажерный залдетская зона отдыха - современный детский игровой комплекс не оставит равнодушным Вашего ребенказеленая зона - для взрослых благоустроена парковая зона для отдыха.На территории комплекса планируется построить отель с медицинским центром. Широкий песчано-галечный пляж расположен в 150 метрах от Ола-апарт. Именно качество песка позволило западному побережью Крыма стать, пожалуй, самым известным из отечественных песчаных курортов. Мелкий золотистый песок пляжа идеально подходит не только для отдыха, но и для проведения лечебных процедур. Благодаря комфортному и пологому входу в море, безопасному песчаному дно с мелкой галькой пляж идеален для детей.
27 м2
3 / 10 этаж
Кирпич - монолит
  • Показать контакты
  • Добавить в избранное
27 м2
3 / 10 этаж
Кирпич - монолит
8 000 000 
289 540 /м2
Новостройка,
дом сдан
1/24
1-к, Набережная, 64 Показать на карте
Прибрежное
Продаётся студия-апартаменты в сданном доме (Набережная, 64), срок сдачи: IV-кв. 2024, общей площадью 27.62 кв.м., на 5 этаже. Комплекс апартаментов ''Ола-апарт'' расположен на западном побережье Крыма между городами Саки и Евпатория и входит в состав курортного комплекса Прибрежный. Экологически чистое место находится на косе между Чёрным морем и розовым озером Сасык-Сиваш в непосредственной близости к Сакским лечебным грязевым лиманам. Проект Прибрежный включает в себя современные квартиры в ЖК Розовое озеро и комплекс апартаментов Ола-апарт с полным спектром курортной инфраструктуры. Сервисный апарт-отель Ола-апарт включает в себя следующий перечень инфраструктуры: бассейн, разделенный на взрослую и детскую зону, а также зону гидромассажаресторан и детское кафетренажерный залдетская зона отдыха - современный детский игровой комплекс не оставит равнодушным Вашего ребенказеленая зона - для взрослых благоустроена парковая зона для отдыха.На территории комплекса планируется построить отель с медицинским центром. Широкий песчано-галечный пляж расположен в 150 метрах от Ола-апарт. Именно качество песка позволило западному побережью Крыма стать, пожалуй, самым известным из отечественных песчаных курортов. Мелкий золотистый песок пляжа идеально подходит не только для отдыха, но и для проведения лечебных процедур. Благодаря комфортному и пологому входу в море, безопасному песчаному дно с мелкой галькой пляж идеален для детей.
27 м2
5 / 10 этаж
Кирпич - монолит
  • Показать контакты
  • Добавить в избранное
27 м2
5 / 10 этаж
Кирпич - монолит
8 022 000 
290 442 /м2
Новостройка,
дом сдан
1/13
1-к, Степная, 1 Показать на карте
Витино
Объект 774. Продается 1-комнатная квартира в с. Витино по ул. Степная д 1. Квартира расположена в 5-ти этажном доме на 4-ом этаже. Площадь зала 18 м2,кухня 6м2, общая площадь 32м2. Санузел совмещенный,горячая вода-бойлер. В квартире выполнен качественный евроремонт,остается полностью вся техника и мебель. Во дворе имеется детская площадка,открытая парковка. Документы РФ,готовы к сделке
32 м2
4 / 5 этаж
Бетонные блоки
  • Показать контакты
  • Добавить в избранное
32 м2
4 / 5 этаж
Бетонные блоки
5 300 000 
165 625 /м2
1/17
1-к, Прибрежное Показать на карте
Прибрежное
Продаётся студия в сданном доме (Секция 7), срок сдачи: IV-кв. 2024, общей площадью 60.61 кв.м., на 1 этаже. Жилой комплекс Розовое озеро расположен на западном побережье Крыма между городами Саки и Евпатория и входит в состав курортного комплекса Прибрежный. Экологически чистое место находится на косе между Чёрным морем и розовым озером Сасык-Сиваш в непосредственной близости к Сакским лечебным грязевым лиманам. Проект включает в себя современные квартиры в ЖК Розовое озеро и комплекс апартаментов Ола-апарт в прибрежной зоне с полным спектром курортной инфраструктуры. КОМФОРТНЫЕ ОБЩЕСТВЕННЫЕ ЗОНЫ ОТДЫХА Внутренние пространства дворов ЖК приватны и безопасны. Можно с комфортом провести время в тенистых беседках или прогуляться по променадной площади с фонтаном. Мы позаботились и о наших маленьких жильцах, специально для них будут построены современные игровые комплексы. Уличный стрит-ритейл насыщает жизнь в жилом комплексе в течение дня. Кафе и рестораны могут размещать посадочные места вдоль фасадов, привлекая посетителей. Благоустройство является важным элементом комфортной среды для отдыха, поэтому в ЖК предусмотрено комплексное озеленение. АРХИТЕКТУРНАЯ КОНЦЕПЦИЯ Сочетание разных типов фасадов и переменная этажность зданий создают уникальный образ каждой улицы. Остекление выполнено в алюминиевом профиле. Квартальная застройка комплекса защищает внутренние дворы от случайных гостей и делает их более уютными. Став резидентом КК Прибрежный, Вы приобретаете не просто ''квадратные метры'', а особый образ жизни.
60 м2
1 / 8 этаж
  • Показать контакты
  • Добавить в избранное
60 м2
1 / 8 этаж
10 606 750 
175 000 /м2
Новостройка,
дом сдан
    1/18
    1-к, Лазурная, 1 корп. 7 Показать на карте
    Прибрежное
    Продаётся студия в сданном доме (Секция 8), срок сдачи: IV-кв. 2024, общей площадью 100.47 кв.м., на 8 этаже. Жилой комплекс Розовое озеро расположен на западном побережье Крыма между городами Саки и Евпатория и входит в состав курортного комплекса Прибрежный. Экологически чистое место находится на косе между Чёрным морем и розовым озером Сасык-Сиваш в непосредственной близости к Сакским лечебным грязевым лиманам. Проект включает в себя современные квартиры в ЖК Розовое озеро и комплекс апартаментов Ола-апарт в прибрежной зоне с полным спектром курортной инфраструктуры. КОМФОРТНЫЕ ОБЩЕСТВЕННЫЕ ЗОНЫ ОТДЫХА Внутренние пространства дворов ЖК приватны и безопасны. Можно с комфортом провести время в тенистых беседках или прогуляться по променадной площади с фонтаном. Мы позаботились и о наших маленьких жильцах, специально для них будут построены современные игровые комплексы. Уличный стрит-ритейл насыщает жизнь в жилом комплексе в течение дня. Кафе и рестораны могут размещать посадочные места вдоль фасадов, привлекая посетителей. Благоустройство является важным элементом комфортной среды для отдыха, поэтому в ЖК предусмотрено комплексное озеленение. АРХИТЕКТУРНАЯ КОНЦЕПЦИЯ Сочетание разных типов фасадов и переменная этажность зданий создают уникальный образ каждой улицы. Остекление выполнено в алюминиевом профиле. Квартальная застройка комплекса защищает внутренние дворы от случайных гостей и делает их более уютными. Став резидентом КК Прибрежный, Вы приобретаете не просто ''квадратные метры'', а особый образ жизни.
    100 м2
    8 / 8 этаж
    • Показать контакты
    • Добавить в избранное
    100 м2
    8 / 8 этаж
    17 079 900 
    170 000 /м2
    Новостройка,
    дом сдан
    1/18
    1-к, Прибрежное Показать на карте
    Прибрежное
    Продаётся студия в сданном доме (Секция 7), срок сдачи: IV-кв. 2024, общей площадью 73.61 кв.м., на 1 этаже. Жилой комплекс Розовое озеро расположен на западном побережье Крыма между городами Саки и Евпатория и входит в состав курортного комплекса Прибрежный. Экологически чистое место находится на косе между Чёрным морем и розовым озером Сасык-Сиваш в непосредственной близости к Сакским лечебным грязевым лиманам. Проект включает в себя современные квартиры в ЖК Розовое озеро и комплекс апартаментов Ола-апарт в прибрежной зоне с полным спектром курортной инфраструктуры. КОМФОРТНЫЕ ОБЩЕСТВЕННЫЕ ЗОНЫ ОТДЫХА Внутренние пространства дворов ЖК приватны и безопасны. Можно с комфортом провести время в тенистых беседках или прогуляться по променадной площади с фонтаном. Мы позаботились и о наших маленьких жильцах, специально для них будут построены современные игровые комплексы. Уличный стрит-ритейл насыщает жизнь в жилом комплексе в течение дня. Кафе и рестораны могут размещать посадочные места вдоль фасадов, привлекая посетителей. Благоустройство является важным элементом комфортной среды для отдыха, поэтому в ЖК предусмотрено комплексное озеленение. АРХИТЕКТУРНАЯ КОНЦЕПЦИЯ Сочетание разных типов фасадов и переменная этажность зданий создают уникальный образ каждой улицы. Остекление выполнено в алюминиевом профиле. Квартальная застройка комплекса защищает внутренние дворы от случайных гостей и делает их более уютными. Став резидентом КК Прибрежный, Вы приобретаете не просто ''квадратные метры'', а особый образ жизни.
    73 м2
    1 / 8 этаж
    • Показать контакты
    • Добавить в избранное
    73 м2
    1 / 8 этаж
    12 292 870 
    167 000 /м2
    Новостройка,
    дом сдан
    1/18
    1-к, Прибрежное Показать на карте
    Прибрежное
    Продаётся 1-комнатная квартира в сданном доме (Секция 6), срок сдачи: IV-кв. 2024, общей площадью 111.25 кв.м., на 9 этаже. Жилой комплекс Розовое озеро расположен на западном побережье Крыма между городами Саки и Евпатория и входит в состав курортного комплекса Прибрежный. Экологически чистое место находится на косе между Чёрным морем и розовым озером Сасык-Сиваш в непосредственной близости к Сакским лечебным грязевым лиманам. Проект включает в себя современные квартиры в ЖК Розовое озеро и комплекс апартаментов Ола-апарт в прибрежной зоне с полным спектром курортной инфраструктуры. КОМФОРТНЫЕ ОБЩЕСТВЕННЫЕ ЗОНЫ ОТДЫХА Внутренние пространства дворов ЖК приватны и безопасны. Можно с комфортом провести время в тенистых беседках или прогуляться по променадной площади с фонтаном. Мы позаботились и о наших маленьких жильцах, специально для них будут построены современные игровые комплексы. Уличный стрит-ритейл насыщает жизнь в жилом комплексе в течение дня. Кафе и рестораны могут размещать посадочные места вдоль фасадов, привлекая посетителей. Благоустройство является важным элементом комфортной среды для отдыха, поэтому в ЖК предусмотрено комплексное озеленение. АРХИТЕКТУРНАЯ КОНЦЕПЦИЯ Сочетание разных типов фасадов и переменная этажность зданий создают уникальный образ каждой улицы. Остекление выполнено в алюминиевом профиле. Квартальная застройка комплекса защищает внутренние дворы от случайных гостей и делает их более уютными. Став резидентом КК Прибрежный, Вы приобретаете не просто ''квадратные метры'', а особый образ жизни.
    111 м2
    9 / 9 этаж
    • Показать контакты
    • Добавить в избранное
    111 м2
    9 / 9 этаж
    20 692 500 
    186 000 /м2
    Новостройка,
    дом сдан
    1/18
    1-к, Лазурная, 1 корп. 7 Показать на карте
    Прибрежное
    Продаётся студия в сданном доме (Секция 8), срок сдачи: IV-кв. 2024, общей площадью 79.38 кв.м., на 1 этаже. Жилой комплекс Розовое озеро расположен на западном побережье Крыма между городами Саки и Евпатория и входит в состав курортного комплекса Прибрежный. Экологически чистое место находится на косе между Чёрным морем и розовым озером Сасык-Сиваш в непосредственной близости к Сакским лечебным грязевым лиманам. Проект включает в себя современные квартиры в ЖК Розовое озеро и комплекс апартаментов Ола-апарт в прибрежной зоне с полным спектром курортной инфраструктуры. КОМФОРТНЫЕ ОБЩЕСТВЕННЫЕ ЗОНЫ ОТДЫХА Внутренние пространства дворов ЖК приватны и безопасны. Можно с комфортом провести время в тенистых беседках или прогуляться по променадной площади с фонтаном. Мы позаботились и о наших маленьких жильцах, специально для них будут построены современные игровые комплексы. Уличный стрит-ритейл насыщает жизнь в жилом комплексе в течение дня. Кафе и рестораны могут размещать посадочные места вдоль фасадов, привлекая посетителей. Благоустройство является важным элементом комфортной среды для отдыха, поэтому в ЖК предусмотрено комплексное озеленение. АРХИТЕКТУРНАЯ КОНЦЕПЦИЯ Сочетание разных типов фасадов и переменная этажность зданий создают уникальный образ каждой улицы. Остекление выполнено в алюминиевом профиле. Квартальная застройка комплекса защищает внутренние дворы от случайных гостей и делает их более уютными. Став резидентом КК Прибрежный, Вы приобретаете не просто ''квадратные метры'', а особый образ жизни.
    79 м2
    1 / 8 этаж
    • Показать контакты
    • Добавить в избранное
    79 м2
    1 / 8 этаж
    13 891 500 
    175 000 /м2
    Новостройка,
    дом сдан
    1/18
    1-к, Лазурная, 1 корп. 7 Показать на карте
    Прибрежное
    Продаётся студия в сданном доме (Секция 8), срок сдачи: IV-кв. 2024, общей площадью 68.22 кв.м., на 8 этаже. Жилой комплекс Розовое озеро расположен на западном побережье Крыма между городами Саки и Евпатория и входит в состав курортного комплекса Прибрежный. Экологически чистое место находится на косе между Чёрным морем и розовым озером Сасык-Сиваш в непосредственной близости к Сакским лечебным грязевым лиманам. Проект включает в себя современные квартиры в ЖК Розовое озеро и комплекс апартаментов Ола-апарт в прибрежной зоне с полным спектром курортной инфраструктуры. КОМФОРТНЫЕ ОБЩЕСТВЕННЫЕ ЗОНЫ ОТДЫХА Внутренние пространства дворов ЖК приватны и безопасны. Можно с комфортом провести время в тенистых беседках или прогуляться по променадной площади с фонтаном. Мы позаботились и о наших маленьких жильцах, специально для них будут построены современные игровые комплексы. Уличный стрит-ритейл насыщает жизнь в жилом комплексе в течение дня. Кафе и рестораны могут размещать посадочные места вдоль фасадов, привлекая посетителей. Благоустройство является важным элементом комфортной среды для отдыха, поэтому в ЖК предусмотрено комплексное озеленение. АРХИТЕКТУРНАЯ КОНЦЕПЦИЯ Сочетание разных типов фасадов и переменная этажность зданий создают уникальный образ каждой улицы. Остекление выполнено в алюминиевом профиле. Квартальная застройка комплекса защищает внутренние дворы от случайных гостей и делает их более уютными. Став резидентом КК Прибрежный, Вы приобретаете не просто ''квадратные метры'', а особый образ жизни.
    68 м2
    8 / 8 этаж
    • Показать контакты
    • Добавить в избранное
    68 м2
    8 / 8 этаж
    12 484 260 
    183 000 /м2
    Новостройка,
    дом сдан
    1/18
    1-к, Прибрежное Показать на карте
    Прибрежное
    Продаётся 1-комнатная квартира в сданном доме (Секция 6), срок сдачи: IV-кв. 2024, общей площадью 111.16 кв.м., на 9 этаже. Жилой комплекс Розовое озеро расположен на западном побережье Крыма между городами Саки и Евпатория и входит в состав курортного комплекса Прибрежный. Экологически чистое место находится на косе между Чёрным морем и розовым озером Сасык-Сиваш в непосредственной близости к Сакским лечебным грязевым лиманам. Проект включает в себя современные квартиры в ЖК Розовое озеро и комплекс апартаментов Ола-апарт в прибрежной зоне с полным спектром курортной инфраструктуры. КОМФОРТНЫЕ ОБЩЕСТВЕННЫЕ ЗОНЫ ОТДЫХА Внутренние пространства дворов ЖК приватны и безопасны. Можно с комфортом провести время в тенистых беседках или прогуляться по променадной площади с фонтаном. Мы позаботились и о наших маленьких жильцах, специально для них будут построены современные игровые комплексы. Уличный стрит-ритейл насыщает жизнь в жилом комплексе в течение дня. Кафе и рестораны могут размещать посадочные места вдоль фасадов, привлекая посетителей. Благоустройство является важным элементом комфортной среды для отдыха, поэтому в ЖК предусмотрено комплексное озеленение. АРХИТЕКТУРНАЯ КОНЦЕПЦИЯ Сочетание разных типов фасадов и переменная этажность зданий создают уникальный образ каждой улицы. Остекление выполнено в алюминиевом профиле. Квартальная застройка комплекса защищает внутренние дворы от случайных гостей и делает их более уютными. Став резидентом КК Прибрежный, Вы приобретаете не просто ''квадратные метры'', а особый образ жизни.
    111 м2
    9 / 9 этаж
    • Показать контакты
    • Добавить в избранное
    111 м2
    9 / 9 этаж
    20 675 760 
    186 000 /м2
    Новостройка,
    дом сдан
    1/18
    1-к, Лазурная, 1 корп. 3 Показать на карте
    Прибрежное
    Продаётся студия в сданном доме (Секция 3), срок сдачи: IV-кв. 2024, общей площадью 121.83 кв.м., на 10 этаже. Жилой комплекс Розовое озеро расположен на западном побережье Крыма между городами Саки и Евпатория и входит в состав курортного комплекса Прибрежный. Экологически чистое место находится на косе между Чёрным морем и розовым озером Сасык-Сиваш в непосредственной близости к Сакским лечебным грязевым лиманам. Проект включает в себя современные квартиры в ЖК Розовое озеро и комплекс апартаментов Ола-апарт в прибрежной зоне с полным спектром курортной инфраструктуры. КОМФОРТНЫЕ ОБЩЕСТВЕННЫЕ ЗОНЫ ОТДЫХА Внутренние пространства дворов ЖК приватны и безопасны. Можно с комфортом провести время в тенистых беседках или прогуляться по променадной площади с фонтаном. Мы позаботились и о наших маленьких жильцах, специально для них будут построены современные игровые комплексы. Уличный стрит-ритейл насыщает жизнь в жилом комплексе в течение дня. Кафе и рестораны могут размещать посадочные места вдоль фасадов, привлекая посетителей. Благоустройство является важным элементом комфортной среды для отдыха, поэтому в ЖК предусмотрено комплексное озеленение. АРХИТЕКТУРНАЯ КОНЦЕПЦИЯ Сочетание разных типов фасадов и переменная этажность зданий создают уникальный образ каждой улицы. Остекление выполнено в алюминиевом профиле. Квартальная застройка комплекса защищает внутренние дворы от случайных гостей и делает их более уютными. Став резидентом КК Прибрежный, Вы приобретаете не просто ''квадратные метры'', а особый образ жизни.
    121 м2
    10 / 10 этаж
    • Показать контакты
    • Добавить в избранное
    121 м2
    10 / 10 этаж
    20 711 100 
    170 000 /м2
    Новостройка,
    дом сдан
    1/18
    1-к, Лазурная, 1 корп. 7 Показать на карте
    Прибрежное
    Продаётся студия в сданном доме (Секция 8), срок сдачи: IV-кв. 2024, общей площадью 69.33 кв.м., на 8 этаже. Жилой комплекс Розовое озеро расположен на западном побережье Крыма между городами Саки и Евпатория и входит в состав курортного комплекса Прибрежный. Экологически чистое место находится на косе между Чёрным морем и розовым озером Сасык-Сиваш в непосредственной близости к Сакским лечебным грязевым лиманам. Проект включает в себя современные квартиры в ЖК Розовое озеро и комплекс апартаментов Ола-апарт в прибрежной зоне с полным спектром курортной инфраструктуры. КОМФОРТНЫЕ ОБЩЕСТВЕННЫЕ ЗОНЫ ОТДЫХА Внутренние пространства дворов ЖК приватны и безопасны. Можно с комфортом провести время в тенистых беседках или прогуляться по променадной площади с фонтаном. Мы позаботились и о наших маленьких жильцах, специально для них будут построены современные игровые комплексы. Уличный стрит-ритейл насыщает жизнь в жилом комплексе в течение дня. Кафе и рестораны могут размещать посадочные места вдоль фасадов, привлекая посетителей. Благоустройство является важным элементом комфортной среды для отдыха, поэтому в ЖК предусмотрено комплексное озеленение. АРХИТЕКТУРНАЯ КОНЦЕПЦИЯ Сочетание разных типов фасадов и переменная этажность зданий создают уникальный образ каждой улицы. Остекление выполнено в алюминиевом профиле. Квартальная застройка комплекса защищает внутренние дворы от случайных гостей и делает их более уютными. Став резидентом КК Прибрежный, Вы приобретаете не просто ''квадратные метры'', а особый образ жизни.
    69 м2
    8 / 8 этаж
    • Показать контакты
    • Добавить в избранное
    69 м2
    8 / 8 этаж
    12 687 390 
    183 000 /м2
    Новостройка,
    дом сдан
    1/18
    1-к, Лазурная, 1 корп. 7 Показать на карте
    Прибрежное
    Продаётся студия в сданном доме (Секция 8), срок сдачи: IV-кв. 2024, общей площадью 59.64 кв.м., на 8 этаже. Жилой комплекс Розовое озеро расположен на западном побережье Крыма между городами Саки и Евпатория и входит в состав курортного комплекса Прибрежный. Экологически чистое место находится на косе между Чёрным морем и розовым озером Сасык-Сиваш в непосредственной близости к Сакским лечебным грязевым лиманам. Проект включает в себя современные квартиры в ЖК Розовое озеро и комплекс апартаментов Ола-апарт в прибрежной зоне с полным спектром курортной инфраструктуры. КОМФОРТНЫЕ ОБЩЕСТВЕННЫЕ ЗОНЫ ОТДЫХА Внутренние пространства дворов ЖК приватны и безопасны. Можно с комфортом провести время в тенистых беседках или прогуляться по променадной площади с фонтаном. Мы позаботились и о наших маленьких жильцах, специально для них будут построены современные игровые комплексы. Уличный стрит-ритейл насыщает жизнь в жилом комплексе в течение дня. Кафе и рестораны могут размещать посадочные места вдоль фасадов, привлекая посетителей. Благоустройство является важным элементом комфортной среды для отдыха, поэтому в ЖК предусмотрено комплексное озеленение. АРХИТЕКТУРНАЯ КОНЦЕПЦИЯ Сочетание разных типов фасадов и переменная этажность зданий создают уникальный образ каждой улицы. Остекление выполнено в алюминиевом профиле. Квартальная застройка комплекса защищает внутренние дворы от случайных гостей и делает их более уютными. Став резидентом КК Прибрежный, Вы приобретаете не просто ''квадратные метры'', а особый образ жизни.
    59 м2
    8 / 8 этаж
    • Показать контакты
    • Добавить в избранное
    59 м2
    8 / 8 этаж
    10 914 120 
    183 000 /м2
    Новостройка,
    дом сдан
    1/18
    1-к, Лазурная, 1 корп. 6 Показать на карте
    Прибрежное
    Продаётся 1-комнатная квартира в сданном доме (Секция 5), срок сдачи: IV-кв. 2024, общей площадью 115.41 кв.м., на 8 этаже. Жилой комплекс Розовое озеро расположен на западном побережье Крыма между городами Саки и Евпатория и входит в состав курортного комплекса Прибрежный. Экологически чистое место находится на косе между Чёрным морем и розовым озером Сасык-Сиваш в непосредственной близости к Сакским лечебным грязевым лиманам. Проект включает в себя современные квартиры в ЖК Розовое озеро и комплекс апартаментов Ола-апарт в прибрежной зоне с полным спектром курортной инфраструктуры. КОМФОРТНЫЕ ОБЩЕСТВЕННЫЕ ЗОНЫ ОТДЫХА Внутренние пространства дворов ЖК приватны и безопасны. Можно с комфортом провести время в тенистых беседках или прогуляться по променадной площади с фонтаном. Мы позаботились и о наших маленьких жильцах, специально для них будут построены современные игровые комплексы. Уличный стрит-ритейл насыщает жизнь в жилом комплексе в течение дня. Кафе и рестораны могут размещать посадочные места вдоль фасадов, привлекая посетителей. Благоустройство является важным элементом комфортной среды для отдыха, поэтому в ЖК предусмотрено комплексное озеленение. АРХИТЕКТУРНАЯ КОНЦЕПЦИЯ Сочетание разных типов фасадов и переменная этажность зданий создают уникальный образ каждой улицы. Остекление выполнено в алюминиевом профиле. Квартальная застройка комплекса защищает внутренние дворы от случайных гостей и делает их более уютными. Став резидентом КК Прибрежный, Вы приобретаете не просто ''квадратные метры'', а особый образ жизни.
    115 м2
    8 / 8 этаж
    • Показать контакты
    • Добавить в избранное
    115 м2
    8 / 8 этаж
    21 466 260 
    186 000 /м2
    Новостройка,
    дом сдан
    1/18
    1-к, Лазурная, 1 корп. 7 Показать на карте
    Прибрежное
    Продаётся студия в сданном доме (Секция 8), срок сдачи: IV-кв. 2024, общей площадью 68.22 кв.м., на 8 этаже. Жилой комплекс Розовое озеро расположен на западном побережье Крыма между городами Саки и Евпатория и входит в состав курортного комплекса Прибрежный. Экологически чистое место находится на косе между Чёрным морем и розовым озером Сасык-Сиваш в непосредственной близости к Сакским лечебным грязевым лиманам. Проект включает в себя современные квартиры в ЖК Розовое озеро и комплекс апартаментов Ола-апарт в прибрежной зоне с полным спектром курортной инфраструктуры. КОМФОРТНЫЕ ОБЩЕСТВЕННЫЕ ЗОНЫ ОТДЫХА Внутренние пространства дворов ЖК приватны и безопасны. Можно с комфортом провести время в тенистых беседках или прогуляться по променадной площади с фонтаном. Мы позаботились и о наших маленьких жильцах, специально для них будут построены современные игровые комплексы. Уличный стрит-ритейл насыщает жизнь в жилом комплексе в течение дня. Кафе и рестораны могут размещать посадочные места вдоль фасадов, привлекая посетителей. Благоустройство является важным элементом комфортной среды для отдыха, поэтому в ЖК предусмотрено комплексное озеленение. АРХИТЕКТУРНАЯ КОНЦЕПЦИЯ Сочетание разных типов фасадов и переменная этажность зданий создают уникальный образ каждой улицы. Остекление выполнено в алюминиевом профиле. Квартальная застройка комплекса защищает внутренние дворы от случайных гостей и делает их более уютными. Став резидентом КК Прибрежный, Вы приобретаете не просто ''квадратные метры'', а особый образ жизни.
    68 м2
    8 / 8 этаж
    • Показать контакты
    • Добавить в избранное
    68 м2
    8 / 8 этаж
    12 484 260 
    183 000 /м2
    Новостройка,
    дом сдан
    1/18
    1-к, Лазурная, 1 корп. 6 Показать на карте
    Прибрежное
    Продаётся 1-комнатная квартира в сданном доме (Секция 5), срок сдачи: IV-кв. 2024, общей площадью 111.92 кв.м., на 8 этаже. Жилой комплекс Розовое озеро расположен на западном побережье Крыма между городами Саки и Евпатория и входит в состав курортного комплекса Прибрежный. Экологически чистое место находится на косе между Чёрным морем и розовым озером Сасык-Сиваш в непосредственной близости к Сакским лечебным грязевым лиманам. Проект включает в себя современные квартиры в ЖК Розовое озеро и комплекс апартаментов Ола-апарт в прибрежной зоне с полным спектром курортной инфраструктуры. КОМФОРТНЫЕ ОБЩЕСТВЕННЫЕ ЗОНЫ ОТДЫХА Внутренние пространства дворов ЖК приватны и безопасны. Можно с комфортом провести время в тенистых беседках или прогуляться по променадной площади с фонтаном. Мы позаботились и о наших маленьких жильцах, специально для них будут построены современные игровые комплексы. Уличный стрит-ритейл насыщает жизнь в жилом комплексе в течение дня. Кафе и рестораны могут размещать посадочные места вдоль фасадов, привлекая посетителей. Благоустройство является важным элементом комфортной среды для отдыха, поэтому в ЖК предусмотрено комплексное озеленение. АРХИТЕКТУРНАЯ КОНЦЕПЦИЯ Сочетание разных типов фасадов и переменная этажность зданий создают уникальный образ каждой улицы. Остекление выполнено в алюминиевом профиле. Квартальная застройка комплекса защищает внутренние дворы от случайных гостей и делает их более уютными. Став резидентом КК Прибрежный, Вы приобретаете не просто ''квадратные метры'', а особый образ жизни.
    111 м2
    8 / 8 этаж
    • Показать контакты
    • Добавить в избранное
    111 м2
    8 / 8 этаж
    20 817 120 
    186 000 /м2
    Новостройка,
    дом сдан
    1/18
    1-к, Лазурная, 1 корп. 7 Показать на карте
    Прибрежное
    Продаётся студия в сданном доме (Секция 8), срок сдачи: IV-кв. 2024, общей площадью 69.33 кв.м., на 8 этаже. Жилой комплекс Розовое озеро расположен на западном побережье Крыма между городами Саки и Евпатория и входит в состав курортного комплекса Прибрежный. Экологически чистое место находится на косе между Чёрным морем и розовым озером Сасык-Сиваш в непосредственной близости к Сакским лечебным грязевым лиманам. Проект включает в себя современные квартиры в ЖК Розовое озеро и комплекс апартаментов Ола-апарт в прибрежной зоне с полным спектром курортной инфраструктуры. КОМФОРТНЫЕ ОБЩЕСТВЕННЫЕ ЗОНЫ ОТДЫХА Внутренние пространства дворов ЖК приватны и безопасны. Можно с комфортом провести время в тенистых беседках или прогуляться по променадной площади с фонтаном. Мы позаботились и о наших маленьких жильцах, специально для них будут построены современные игровые комплексы. Уличный стрит-ритейл насыщает жизнь в жилом комплексе в течение дня. Кафе и рестораны могут размещать посадочные места вдоль фасадов, привлекая посетителей. Благоустройство является важным элементом комфортной среды для отдыха, поэтому в ЖК предусмотрено комплексное озеленение. АРХИТЕКТУРНАЯ КОНЦЕПЦИЯ Сочетание разных типов фасадов и переменная этажность зданий создают уникальный образ каждой улицы. Остекление выполнено в алюминиевом профиле. Квартальная застройка комплекса защищает внутренние дворы от случайных гостей и делает их более уютными. Став резидентом КК Прибрежный, Вы приобретаете не просто ''квадратные метры'', а особый образ жизни.
    69 м2
    8 / 8 этаж
    • Показать контакты
    • Добавить в избранное
    69 м2
    8 / 8 этаж
    12 687 390 
    183 000 /м2
    Новостройка,
    дом сдан
    1/18
    1-к, Лазурная, 1 корп. 6 Показать на карте
    Прибрежное
    Продаётся 1-комнатная квартира в сданном доме (Секция 5), срок сдачи: IV-кв. 2024, общей площадью 104.85 кв.м., на 8 этаже. Жилой комплекс Розовое озеро расположен на западном побережье Крыма между городами Саки и Евпатория и входит в состав курортного комплекса Прибрежный. Экологически чистое место находится на косе между Чёрным морем и розовым озером Сасык-Сиваш в непосредственной близости к Сакским лечебным грязевым лиманам. Проект включает в себя современные квартиры в ЖК Розовое озеро и комплекс апартаментов Ола-апарт в прибрежной зоне с полным спектром курортной инфраструктуры. КОМФОРТНЫЕ ОБЩЕСТВЕННЫЕ ЗОНЫ ОТДЫХА Внутренние пространства дворов ЖК приватны и безопасны. Можно с комфортом провести время в тенистых беседках или прогуляться по променадной площади с фонтаном. Мы позаботились и о наших маленьких жильцах, специально для них будут построены современные игровые комплексы. Уличный стрит-ритейл насыщает жизнь в жилом комплексе в течение дня. Кафе и рестораны могут размещать посадочные места вдоль фасадов, привлекая посетителей. Благоустройство является важным элементом комфортной среды для отдыха, поэтому в ЖК предусмотрено комплексное озеленение. АРХИТЕКТУРНАЯ КОНЦЕПЦИЯ Сочетание разных типов фасадов и переменная этажность зданий создают уникальный образ каждой улицы. Остекление выполнено в алюминиевом профиле. Квартальная застройка комплекса защищает внутренние дворы от случайных гостей и делает их более уютными. Став резидентом КК Прибрежный, Вы приобретаете не просто ''квадратные метры'', а особый образ жизни.
    104 м2
    8 / 8 этаж
    • Показать контакты
    • Добавить в избранное
    104 м2
    8 / 8 этаж
    17 614 800 
    168 000 /м2
    Новостройка,
    дом сдан
    • 1
    • 2
    • 3
    • 4
    • 5
    • Следующая
    Распечатать
    Продажа однокомнатных квартир в Симферополе
    • по районам
    • Железнодорожный
    • Киевский
    • Центральный

    Вместе с этим также ищут:

    Продажа квартир в Симферополе Продажа однокомнатных квартир в Симферополе Продажа комнат в Симферополе Продажа гаражей в Симферополе Продажа вторички - квартиры в Симферополе Квартиры в новостройках в Симферополе

    🏠 Как купить однокомнатную квартиру в Симферополе на N1?

    • ✔ В поисках объявления о продаже или покупке квартир в Симферополе?
    • ✔ На N1 размещены 338 квартир
    • ✔ Чтобы купить или продать недвижимость, воспользуйтесь формой поиска, фильтрами или быстрыми ссылками.

    💸 Сколько стоит однокомнатная квартира в Симферополе?

    • 🟢 Средняя цена продажи однокомнатных квартир - 13,16 млн ₽
    • 🟢 Минимальная стоимость за 1 м2: 206,74 тыс ₽

    📚 Какая площадь однокомнатных квартир?

    • Наибольшая площадь: 182 м²
    • Минимальная площадь: 13 м²